
Ngôi nhà nằm tại khu vực yên tĩnh, xanh mát nên nhìn từ xa đã có thể nhìn thấy khối kiến trúc độc đáo khó bỏ qua.
Từ hình dạng cơ bản như một căn nhà phố thương mại truyền thống, kiến trúc sư đã tạo ra một khoảng trống xuyên suốt trung tâm nhà để phân chia và kết nối các không gian với nhiều khoảng xanh thiên nhiên.

Để làm được điều này kiến trúc sư đã dùng giải pháp chia cắt không gian lớn thành những không gian nhỏ tạo thành rãnh dài nằm trung tâm ngôi nhà. Từ đó ngôi nhà còn tượng trưng cho hình ảnh một khe núi, một dòng suối chảy qua có tác dụng chữa lành bệnh tật, thể chất lẫn tinh thần cho những người sống trong đó.

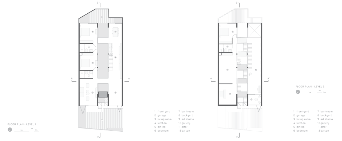
Khu vườn bên dưới, cầu thang phía trên xen kẽ là các chậu trồng cây, tất cả được bố trí trung tâm của ngôi nhà, vì vậy mọi không gian trong nhà đều hướng về. Tầng 1 tập trung dành cho không gian sinh hoạt chung và riêng của gia đình như phòng khách, bếp, bàn ăn và 2 phòng ngủ.

Không gian tràn ngập ánh sáng, lối phân bố khéo léo, thiết kế mở nhưng cũng rất riêng tư và đồng nhất.

Phòng ngủ thiết kế đơn giản nhưng vẫn ấm cúng đặc biệt chỉ có kính bao quanh nên dễ dàng nhìn thấy xung quanh.
Tầng 2 có chức năng chính là không gian trưng bày tranh và xưởng vẽ dành cho khách, học viên và khu vực thờ phía trước. Vì gia chủ là một họa sĩ nên mong muốn kết hợp xưởng vẽ cùng phòng trưng tranh bày tại nhà, do đó các khu vực chức năng của ngôi nhà được cân nhắc kỹ lưỡng hài hòa giữa không gian riêng tư và khu vực cộng đồng mang đến thoải mái cho mọi người.

Khu vực trưng bày tranh được bố trí tại hành lang tầng 2 – nơi có nhiều ánh sáng mặt trời.
Hai khối trên cùng được nối với nhau bằng cây cầu bắc qua khu vườn giữa, khoảng không gian ở giữa này không chỉ mang lại cho ngôi nhà nhiều ánh sáng tự nhiên mà còn cân bằng không khí.

Vật liệu sử dụng chính như bê tông và kính để ngôi nhà đón nhận nhiều ánh sáng tự nhiên và giúp không gian nghệ thuật hài hòa cùng thiên nhiên một cách trọn vẹn.

Ngôi nhà được bố trí hai cầu thang bộ phía trước dành cho khách và học viên còn cầu thang lưu thông chính đặt giữa nhà.

Góc hành lang nhìn xuống tận dụng tối đa nên có thể nhìn thấy nhau từ trong ra ngoài từ trên xuống dưới.
Mặt bằng kiến trúc ngôi nhà 2 tầng dùng kính thay tường gạch có phòng trưng bày tranh và xưởng vẽ tại Huế.

(Nguồn: Nguyen Khai Architects & Associates)
-
Cải tạo căn hộ cũ theo nguyên lý Âm Dương trở nên rộng thoáng không ngờ tại Hà Nội
Căn hộ 2 phòng ngủ được cải tạo thành 1 phòng ngủ với nhiều không gian sống thoải mái, thông thoáng và hài hòa với triết lý Đông Dương nằm tại đường Lý Thường Kiệt, Quận Hoàn Kiếm, Hà Nội.
-
Thị trường nội thất, vật liệu xây dựng sẽ có nhiều thay đổi lớn từ ngày 1/1/2024
Từ ngày 1/1/2024, Thông tư 04/2023/TT-BXD của Bộ Xây dựng về quy chuẩn kỹ thuật quốc gia về sản phẩm, hàng hóa vật liệu xây dựng sẽ bắt đầu có hiệu lực. Trong khi người tiêu dùng sẽ được hưởng lợi từ chính sách này, nhiều doanh nghiệp sẽ phải gấp rút...
-
Hiểm họa vô hình từ đồ gỗ nội thất kém chất lượng
Một trong những nguồn gây ô nhiễm không khí trong nhà lớn nhất là từ đồ nội thất, đặc biệt là nội thất làm từ gỗ công nghiệp kém chất lượng.
-
Đất xéo 6 cạnh vẫn xây được nhà 4 tầng gọn gàng, thông thoáng tại Hà Nội
Trên mảnh đất không vuông vắn xéo 6 cạnh ngôi nhà có quy mô 4 tầng được xây dựng vừa để ở vừa là văn phòng tại quận Long Biên, Hà Nội.
-
Nhà mặt tiền 100m2 có tầm nhìn thẳng ra sông thiết kế hiện đại, đơn giản khiến nhiều người mê
Nhà mặt tiền 100m2 3 tầng với thiết kế thông thoáng, không gian rộng rãi, thoải mái và đầy đủ tiện nghi cho gia đình có 4 thành viên tại khu đô thị hiện đại ở thành phố Vũng Tàu.
-
Cận cảnh ngôi nhà được thiết kế với gần 2.000 cuộn len sợi của vợ chồng 8X
Căn nhà 38m2 tại TP.HCM được vợ chồng Phùng Lê Lan Thanh và Huỳnh Trọng Nghĩa (cùng sinh năm 1989) tự lên ý tưởng thiết kế với hàng nghìn cuộn len đủ màu sắc cùng hàng trăm thú nhồi bông xinh xắn.
