
Qua trao đổi với chủ nhà, có hai vấn đề chính mà kiến trúc sư cần giải quyết đó là phần thực thể và phần hồn của ngôi nhà. Đầu tiên với phần thực thể là giải quyết tập trung nhu cầu sử dụng được phân chia thành 2 không gian rõ rệt:
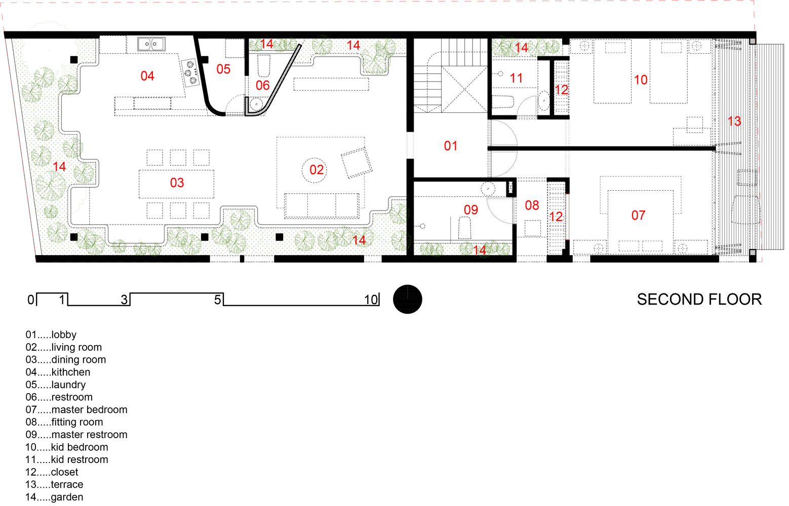
Tầng 1 để kinh doanh gạo, tầng 2 là để ở. Tất cả không gian của tầng 1 bố trí phía trước tiếp cận trực tiếp hướng mặt đường, phát huy tối đa khả năng kinh doanh theo kiểu quan niệm cũ của người Việt là kinh doanh luôn chọn mặt tiền.

Trong khi đó tầng thứ 2 hội đủ công năng của một hộ gia đình, tại đây cũng được phân tách làm hai phần được ngăn chia bởi cầu thang và sảnh.
Lý giải về giải pháp này là do ngôi nhà tiếp xúc với đường lớn thường xuyên có nhiều hoạt động ồn ào và bụi bặm, để khắc phục nhược điểm này kiến trúc sư đã sử dụng gạch bông gió để tạo khu vườn và khoảng trống để lấy ánh sáng mặt trời bên trong.
Phần trước của ngôi nhà không gian sinh hoạt chung gồm là nhà bếp, phòng ăn, phòng khách và phòng vệ sinh kết hợp với phòng giặt. Tất cả các phòng được giới hạn với một khu vườn xanh.
Phía sau là hai phòng ngủ với phòng vệ sinh riêng, cuối nhà là ban công lớn kết nối hai phòng ngủ của ông bà.





Ngay giữa phòng khách và bếp có một vách gỗ lớn ngăn cách phòng vệ sinh và phòng giặt để hạn chế tầm nhìn vào khu vực bếp. Mọi góc trong nhà đều điểm xuyến màu xanh tạo cảm giác thư giãn.
Các không gian từ trước ra sau nhà được đóng mở liên hoàn tạo sự thú vị, tiện lợi, chẳng hạn như mặt tiền ngôi nhà là một khối hộp đóng lại để giảm bụi, tiếng ồn; Không gian chính như nhà bếp, phòng khách và phòng ăn được mở ra một cách thông thoáng, tươi mới; Phòng ngủ là nơi riêng tư nên được đóng kín lại; Ban công ở phía sau nhà được mở ra để kết nối 2 phòng ngủ và kết nối ba thế hệ trong một gia đình.





Còn phần hồn của ngôi nhà thể hiện qua hai giá trị: giá trị thời gian và giá trị tôn giáo. Hiện trạng ngôi nhà trước đây là một ngôi nhà cổ có kết cấu mái gỗ chắc chắn gắn liền với tuổi thơ của gia chủ, vì vậy chủ nhà muốn lưu giữ lại chúng như món quà của thời gian.
Bên cạnh đó, chủ nhà là người Công giáo vì vậy kiến trúc nghiên cứu kĩ để cố gắng thể hiện các chi tiết liên quan đến nhà thờ hoặc cây thánh giá. Trên mảng tường lớn, chúng tôi làm các ô cửa kính màu, khe ánh sáng hình cây thánh giá và các vòm cửa, tất cả khi kết hợp với ánh sáng mặt trời tạo ra hiệu ứng như một không gian tâm linh và huyền bí.

Mặt bằng các tầng ngôi nhà




-
Mẫu nhà 2 tầng nông thôn đơn giản, hiện đại
CafeLand – Với không gian thông thoáng, chi phí vừa phải, kiểu dáng đơn giản nhưng hiện đại, mẫu nhà 2 tầng nông thôn ngày càng được nhiều người lựa chọn.
-
Giải mã ngôi nhà vừa xanh vừa ngập ánh sáng ở Q. Tân Phú
CafeLand - Ngôi nhà với nhiều ánh sáng và cây xanh tọa lạc tại Q, Tân Phú, TP. Hồ Chí Minh.
-
Ngôi nhà MeMo với khu vườn trên cao đa cấp độ
CafeLand - Đội kiến trúc sư BAM! Arquitectura đã thiết kế một ngôi nhà bê tông hiện đại ở San Isidro, Argentina tên là MeMo với lớp áo kiến trúc độc lạ.
-
Nhà Việt nhỏ hẹp tràn ngập cây xanh như công viên trên báo ngoại
CafeLand - Ngôi nhà nằm tại Sài Gòn ở khu đất thiếu cây xanh, hay ngập lụt và ô nhiễm. Chình vì thế các KTS đã mang nhiều cây xanh vào không gian hẹp tựa như công viên nhỏ trong thành phố với mong muốn ý tưởng "tòa nhà xanh" sẽ lan rộng ra thế giới....
-
Biến chiếc xe buýt hết đát thành căn nhà hai tầng
CafeLand - “Đống phế liệu” bỏ đi được rao bán trên mạng với giá 144 triệu đồng, được Adam Collier-Woods ở Brighton (Anh) mua về “tút” lại, biến thành nơi ở giữa rừng cho những du khách thích khám phá trải nghiệm. ...
