
Căn nhà được khởi công xây dựng từ năm 2017, thiết kế cho một gia đình ba người cùng với nhiều đồ đạc.

Chủ nhân căn nhà yêu cầu các thành viên trong gia đình có thể cảm thấy gần nhau bất kể họ ở đâu trong nhà.

Hơn nữa, các phòng riêng không cần thiết bởi vì họ cảm thấy thật cô đơn khi ở trong vào không gian của một người, và không gian lưu trữ cũng không cần thiết vì họ không muốn giấu đồ đạc.

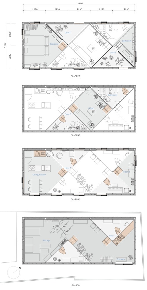
Được xây dựng trong khu vực hạn chế cháy nổ, căn nhà này được thiết kế với khung thép có chiều cao 6,9m, gồm 13 tầng. Bảy tầng trên được treo bằng các thanh thép bán kính 2 cm. Sáu tầng dưới được hỗ trợ bằng các thanh thép vuông có cạnh lớn hơn.

Để đáp ứng được yêu cầu của gia chủ và xây dựng đủ không gian để chứa đựng đồ đạc của họ, các kiến trúc sư của Tato Architects đã đề xuất xây dựng các tầng liên kết với khoảng cách chênh lệch là 70cm.

Không gian các tầng được phân biệt nhờ sự thay đổi của cao độ sàn nhà. Các tầng còn được sử dụng như bàn và kệ.

Các tầng xây dựng thành hai hình xoắn ốc, chúng hợp tại phòng khách và sau đó tách thành hai lần nữa trước khi đến tầng thượng.

Hệ thống cửa sổ được xây dựng đồng nhất với nhau và không can thiệp nhiều vào cấu trúc của ngôi nhà, đảm bảo ngôi nhà có thể thích ứng với sự thay đổi của môi trường.

Chủ nhân căn nhà trồng rất nhiều cây xanh, tạo không gian thoáng mát cho căn nhà.

Không gian phòng tắm thoáng mát với nhiều cây xanh và là nơi duy nhất trong nhà có tường che chắn.


-
Ngắm ngôi nhà thoáng và hiện đại ở Đà Nẵng
CafeLand - Ngôi nhà nằm trong một con hẻm nhỏ ở Thành phố Đà Nẵng với chiều rộng chỉ 4m và chiều dài hơn 25m. Mong muốn của chủ nhà muốn có một không gian sống đầy đủ cho 1 gia đình gồm 4 người như gara để xe, phòng khách, bếp, phòng ăn, phòng học và 3 phòng ngủ riêng.
-
9 mẫu nhà ống 3 tầng hiện đại có gara ô tô tiện lợi
Dưới đây là những mẫu thiết kế nhà ống 3 tầng hiện đại, trẻ trung có gara ô tô tiện lợi.
-
Thổi hồn cho nhà ống 3 tầng với mặt tiền gạch đỏ tại khu đảo VIP ở Đà Nẵng
CafeLand - Ngôi nhà tọa lạc tại khu đảo VIP Hòa Xuân ở Thành phố Đà Nẵng, một khu đô thị được bao bọc bởi 2 dòng sông Cẩm Lệ và Đô Tỏa.
-
10 mẫu nhà ống 3 tầng được ưa chuộng năm 2021
CafeLand – Nhà ống 3 tầng với thiết kế đơn giản, hiện đại, đáp ứng được nhu cầu sinh hoạt và phù hợp với các gia đình có nhiều thành viên.
-
Nhà ống giá rẻ và độc đáo ở Hà Nội
CafeLand - Do tốc độ đô thị hóa quá nhanh, Hà Nội (Việt Nam) đang phải đối mặt với nhiều vấn đề nan giải như kẹt xe, ô nhiễm không khí, thiếu không gian công cộng.
-
Nhà ống 4 tầng lơ lửng như tổ chim tại Quận Bình Thạnh
CafeLand - Công trình giống như nhiều ngôi nhà ống khác ở Sài Gòn. Ngôi nhà này nằm trên một mảnh đất hẹp 4m x 12m trong khu dân cư đông đúc ở Q. Bình Thạnh, Thành phố Hồ Chí Minh.
.jpeg)