
Thông điệp thiết kế là kết hợp giữa văn hóa và sở thích của các nhân viên, pha trộn bởi phong cách thiết kế hiện đại và đương đại, thể hiện qua 3 giá trị.

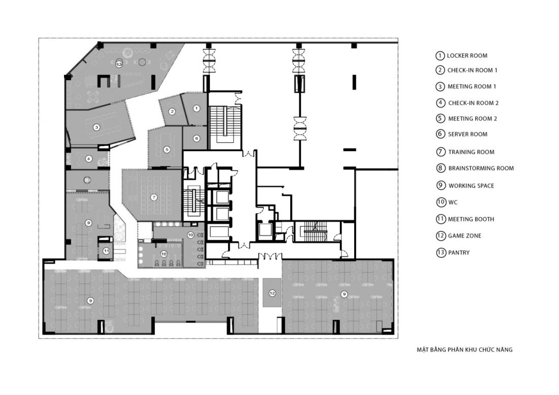
Giá trị thứ 1 – Nhiệt huyết: Về mặt không gian, văn phòng chủ yếu được chia thành 3 phần: Lối vào, khu vực chức năng và không gian làm việc cá nhân với điểm nhấn là gam màu của thương hiệu.

Ba phần này được nối với nhau bằng hành lang hay kiến trúc sư gọi là xương sống của văn phòng. Tại đây cảm xúc của con người sẽ thay đổi theo hướng thắt, mở của không gian.

Giá trị thứ 2 – Sáng tạo: tập trung vào khu vực chức năng gồm phòng họp, khu vực check in, phòng giải trí, thư giãn… Nơi đây không chỉ dành cho nhân viên mà còn phục vụ các cuộc gặp gỡ thân mật với khách hàng và đối tác.

Điểm độc đáo là tất cả các phòng chức năng này đều được đặt tên theo một loại cà phê như Latte, Cold Brew hoặc Espresso.

Ngoài ra, yếu tố trang trí đặc sắc và gây chú ý chính là những họa tiết đồ họa nổi bật ngay lối vào và khu vực chức năng, được lấy ý tưởng từ nét văn hóa truyền thống Việt Nam được thiết kế trên hoa văn thời Lý như hình ảnh con hạc, rồng và mây.

Giá trị thứ 3 – Minh bạch: ngược với các mô hình văn phòng khác, tại đây các không gian làm việc cá nhân đều thông thoáng, gọn gàng và đơn giản với gam màu chủ đạo là trắng và xám, không tường cũng như phòng riêng để nâng cao văn hóa minh bạch của tập thể.

Kiến trúc sư chỉ sử dụng kính là vật liệu chủ đạo cùng decal màu để đảm bảo sự riêng tư cho một số không gian phòng họp, phòng check in.

Qua thiết kế có chủ đích, kiến trúc sư muốn hướng đến một không gian làm việc đồng nhất, đội ngũ năng động, kích thích sự sáng tạo, giúp mọi người luôn có được sự tận hưởng cuộc sống của mình ở công ty và tìm được niềm vui trong công việc.

Bản vẽ văn phòng hiện đại kích thích sự sáng tạo kết hợp giữa những họa tiết thời Lý và gam màu nổi bật tại Hà Nội.
(Nguồn: DPLUS Vietnam)
-
Ngôi nhà hình bát giác đen từ trong ra ngoài 5,8 tỷ đồng ở Mỹ
Ngôi nhà hình hình bát giác 1 tầng đen từ trong ra ngoài nằm trên khu đất hẻo lánh rộng 2.104 m2 tại bang Illinois, Mỹ.
-
Từ văn phòng lý tưởng đến bài toán chi phí: “Mẹo” giúp doanh nghiệp chọn đúng văn phòng ngay từ đầu
Văn phòng ngày nay không chỉ là nơi làm việc mà còn là “điểm chạm cảm xúc” với nhân sự và là biểu tượng thương hiệu của doanh nghiệp. Một không gian đẹp, được trang trí theo mùa lễ hội, không chỉ tạo cảm giác hứng khởi mà còn truyền cảm hứng sáng tạo...
-
Metrolink An Phú – tòa nhà cho thuê văn phòng và thương mại kết nối đa tiện ích
Metrolink An Phú (Cantavil Quận 2) – tòa nhà cho thuê văn phòng và thương mại - tọa lạc tại trung tâm sầm uất nhất thuộc khu Đông TP.HCM, đang thu hút sự quan tâm từ giới doanh nghiệp và dân công sở hiện đại. Không chỉ là tòa nhà văn phòng, Metrolink...
-
Một phân khúc tại Hà Nội mà “cuộc chơi” đang nghiêng về phía khách thuê
Thị trường văn phòng tại Hà Nội đang bước vào một chu kỳ chuyển biến mang tính bước ngoặt: nguồn cung chất lượng cao tăng nhanh, trong khi nhu cầu sử dụng không gian cũng đang thay đổi theo hướng chiến lược và bền vững hơn. Trong bối cảnh đó, các doa...
-
2025 sẽ là năm của khách thuê văn phòng Hà Nội?
Thị trường Hà Nội đã đạt sự đa dạng và phân hóa về vị trí các khu hành chính/văn phòng. Chính bởi vậy, khách thuê có nhiều sự lựa chọn hơn, và các lựa chọn của khách thuê sẽ không bị gói gọn giới hạn tại một khu vực nữa. Điều này đồng nghĩa với việc ...
-
Giá thuê văn phòng TP.HCM dự báo tăng mạnh trong năm 2025
Năm 2025, thị trường văn phòng TP.HCM ghi nhận thêm 165.000 m2 nguồn cung mới từ hai dự án ở cả khu vực trung tâm và ngoài trung tâm. Tăng trưởng giá thuê dự báo tăng mạnh 5% trong năm 2025.
