
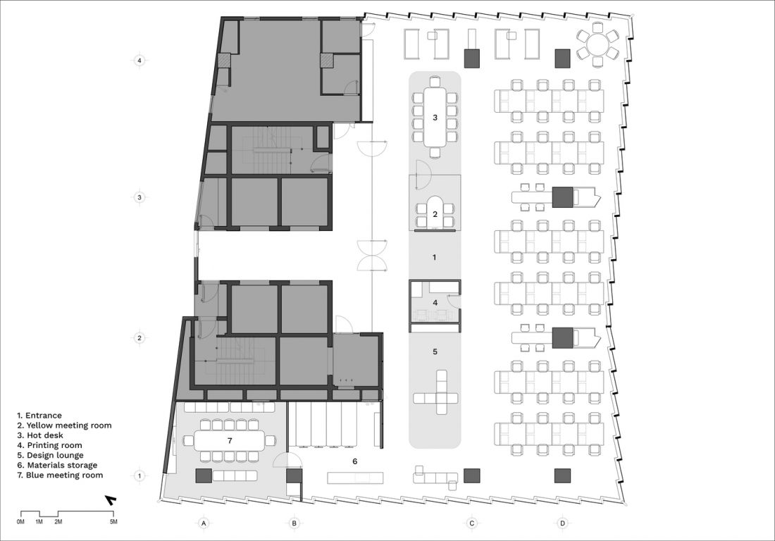
Do nằm tại tầng 2, 3 trong tòa nhà cao nên thách thức đầu tiên thường gặp phải đối với nhiều văn phòng thấp tầng là thiếu ánh sáng và khuất tầm nhìn.

Để giải quyết khuyết điểm này, kiến trúc sư sử dụng thiết kế điều hướng thị giác vào trung tâm văn phòng bằng cách tạo ra ốc đảo tương tác khác nhau. Trong khi đó các khu vực lễ tân, trưng bày, giải trí được tập trung thành một không gian riêng.

Khu vực phòng họp được bố trí biệt lập với nhiều loại phòng khác nhau, với phòng họp tườn kính nhằm đảm bảo luôn nhận được nhiều ánh sáng.

Các bức tường và vách ngăn đều loại bỏ tạo nên văn hóa cởi mở, giao tiếp giữa con người với con người thường xuyên hơn.

Thay vào đó các khối màu, hình dạng hình học nhìn xuyên thấu được sử dụng tại một số không gian có tác dụng vừa phân chia không gian vừa phá vỡ giới hạn tầm nhìn. Cách này phù hợp với phong cách làm việc theo triết lý của công ty là khuyến khích mọi người tương tác và trao đổi liên tục trong công việc.

Một vấn đề khác ở tầng thấp mà kiến trúc sư phải đối mặt là thiếu ánh sáng mặc dù trang bị nguồn sáng gián tiếp. Vì vậy việc lắp đặt hệ thống đèn chiếu sáng công nghệ mới, tích hợp thông minh có thể điều chỉnh cả độ sáng và độ trắng theo môi trường tự nhiên và đồng hồ sinh học của con người.

Theo chuyển động của mặt trời nó giúp cơ thể con người căn bằng lượng hocmoon, tập trung vào buổi sáng và dần dần thư giãn sau giờ làm việc. Hệ thống chiếu sáng này đóng vai trò quan trọng trong giải pháp nội thất như yếu tố thẩm mỹ và công năng.

Các kiến trúc sư cũng dùng nhiều gam màu khác nhau phù hợp cho từng không gian đặc biệt. Điển hình như màu vàng và màu xám đại diện cho sự sáng tạo và chuyên nghiệp, được sử dụng để tạo cho khu vực chung một vẻ năng động hiện đại. Trong khi đó màu xanh lam đậm và xanh lá đại diện cho trí tuệ và sự phát triển được sử dụng với phòng họp.

Bên cạnh thông điệp hướng đến tươi sáng và gọn gàng thì kiến trúc sư cũng quan tâm đến việc làm thế nào để văn phòng như ngôi nhà thứ hai thật thoải mái, thư giãn tinh thần, vì vậy các đường cong được thiết kế nhằm làm dịu các chi tiết cứng cáp, cây xanh được đặt khắp văn phòng và tại bàn làm việc.

Bản vẽ văn phòng 2 tầng có nhiều phòng họp kín, mở tại trung tâm thành phố

(Nguồn BOHO décor)
-
Ấn tượng với ngôi nhà 2 tầng dùng mảng tường lam điều hòa ánh sáng
Ngôi nhà rộng thoáng với điểm nhấn mảng tường lam điều hòa ánh sáng ấn tượng tại Úc.
-
Xu hướng trang trí tường văn phòng, truyền cảm hứng làm việc
Văn phòng không chỉ là nơi làm việc mà còn là không gian truyền cảm hứng cho sự sáng tạo, năng suất và sự tích cực. Những bức tường trong văn phòng giống như những bức tranh canvas trắng, chờ đón sự sáng tạo và phong cách của bạn. ...
-
Thiết kế văn phòng mở nhưng riêng tư tại Hà Nội
Văn phòng được thiết kế lạ mắt có diện tích 220m2 được kết nối từ 3 khối nhà cũ riêng biệt tại Từ Liêm, Hà Nội.
-
Văn phòng hiện đại và tối ưu hóa tính linh hoạt tại Hà Nội
Văn phòng công ty start up hoạt động đầu tư tài chính có diện tích 200m2 nằm tại quận Hoàn Kiếm, Hà Nội.
-
Cải tạo biệt thự cũ thành tòa nhà văn phòng mở len lỏi mảng xanh tại Quận 3
Tòa nhà văn phòng được cải tạo từ biệt thự cũ có diện tích 300m2 tọa lạc tại con đường yên tĩnh Lê Ngô Cát, Quận 3, TP.HCM.
-
Bất ngờ với mẫu thiết kế nội thất văn phòng thú vị ở Ba Lan
Công ty thiết kế kiến trúc và nội thất ở Ba Lan vừa hoàn thành thiết kế văn phòng đầy sáng tạo, cá tính và độc đáo. Thiết kế nội thất gây chú ý bởi sử dụng biến hoá các tông màu đậm sắc và tươi sáng....
