
Không chỉ là không gian làm việc tương tác hiện đại, nhóm kiến trúc sư đã sử dụng cách tiếp cận sáng tạo kết hợp giữa mảng xanh xung quanh, văn hóa và những rung cảm tích cực để biến văn phòng trở nên hữu ích công năng và cảm giác gần gũi, thân thiện.

Văn phòng được thiết kế mở nên dễ dàng tạo nên ấn tượng với cảm quan thẩm mỹ táo bạo, sáng tạo cùng nội thất văn phòng đơn giản.

Vì nằm giữa trung tâm Sài Gòn nên giải pháp cây xanh luôn được ưu tiên trong mọi thiết kế. Mảng ban công rộng rãi – nơi bố trí 40 loại cây trồng khác nhau được lựa chọn từ các vườn thực vật tại địa phương.

Ở đâu có cây xanh ở đó có bóng mát và những câu chuyện bầu bạn, chính vì vậy hầu như toàn bộ thảm thực vật xanh từ hiện trạng biệt thự cũ đều được kiến trúc sư để lại, tiếp tục phát triển tươi tốt hơn.

Bên trong mỗi không gian làm việc chung được bố trí đơn giản những vẫn đảm bảo công năng, điển hình chiếc bàn gỗ băng dài luôn có mặt từ tại các không gian tầng trệt lên đến tầng 3 bên trong văn phòng làm việc.

Tùy mỗi khu vực mà chiếc bàn này sẽ đảm nhận chức năng riêng tạo cảm giác thoải mái cho mọi người thảo luận hay nghỉ ngơi để tái tạo năng lượng.

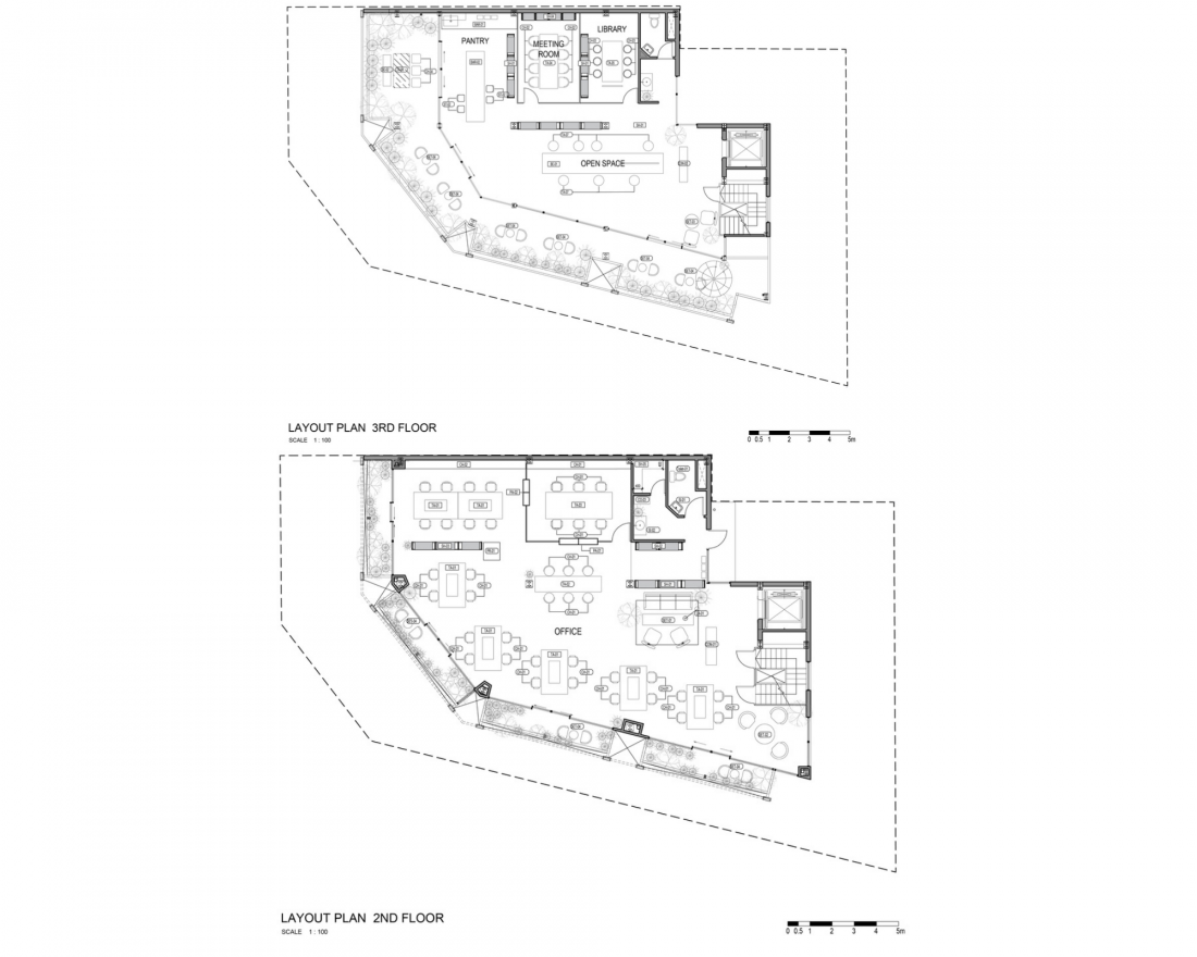
Bản vẽ mặt bằng tầng 2 và 3 tòa nhà văn phòng mở len lỏi mảng xanh tại Quận 3.

(Nguồn: Lab Saigon)
-
Resort ven biển ấn tượng với mái ngói gấp bao quanh tại Mỹ Khê
Resort có diện tích 160m2 nằm ven biển miền Trung Việt Nam với khí hậu nóng và nhiều cát tại bãi biển Mỹ Khê, Quảng Ngãi.
-
Xu hướng trang trí tường văn phòng, truyền cảm hứng làm việc
Văn phòng không chỉ là nơi làm việc mà còn là không gian truyền cảm hứng cho sự sáng tạo, năng suất và sự tích cực. Những bức tường trong văn phòng giống như những bức tranh canvas trắng, chờ đón sự sáng tạo và phong cách của bạn. ...
-
Thiết kế văn phòng mở nhưng riêng tư tại Hà Nội
Văn phòng được thiết kế lạ mắt có diện tích 220m2 được kết nối từ 3 khối nhà cũ riêng biệt tại Từ Liêm, Hà Nội.
-
Văn phòng hiện đại và tối ưu hóa tính linh hoạt tại Hà Nội
Văn phòng công ty start up hoạt động đầu tư tài chính có diện tích 200m2 nằm tại quận Hoàn Kiếm, Hà Nội.
-
Bất ngờ với mẫu thiết kế nội thất văn phòng thú vị ở Ba Lan
Công ty thiết kế kiến trúc và nội thất ở Ba Lan vừa hoàn thành thiết kế văn phòng đầy sáng tạo, cá tính và độc đáo. Thiết kế nội thất gây chú ý bởi sử dụng biến hoá các tông màu đậm sắc và tươi sáng....
-
Tổ hợp văn phòng, căn hộ có mặt tiền độc đáo với những bồn cây sole tại Bắc Ninh
Tòa nhà tổ hợp văn phòng nằm ngay mặt tiền hướng Tây Bắc có diện tích 440m2 trong khu dân cư đông đúc tại Bắc Ninh.
