
Những năm gần đây, khu vực này đã có nhiều tuyến đường lớn được mở rộng kéo theo sự hình thành các khu dân cư và tòa nhà thương mại với nhiều dự án lớn nhỏ liên tục xuất hiện, do đó đã gây ra nhiều ô nhiễm không khí và tiếng ồn.

Ô nhiễm bụi và tiếng đi cùng với nhu cầu ở và làm việc là những vấn đề chính mà nhóm kiến trúc sư phải đối mặt khi bắt tay xây dựng ý tưởng của riêng mình.
Đối mặt với sự du nhập của nhiều luồng văn hóa mới, các không gian truyền thống như thờ cúng và các hoạt động gia đình dường như biến mất và không còn tồn tại.

Hình ảnh của một ngôi nhà gỗ được hình thành với cấu trúc bê tông là ý tưởng ban đầu của nhóm. Các hoạt động văn hóa của gia đình sẽ là trung tâm của ngôi nhà,Lưu giữ truyền thống là trái tim và tiếp nối cuộc sống hiện đại, là chìa khóa để duy trì văn hóa, đó chính là điều mà nhóm thiết kế luôn nghĩ đến.

Ngôi nhà được xây dựng nằm ở giữa hai đầu của một con hẻm cụt, trong đó tầng 1 được để trống giúp luồng di chuyển của con người và không khí lưu thông liên tục.
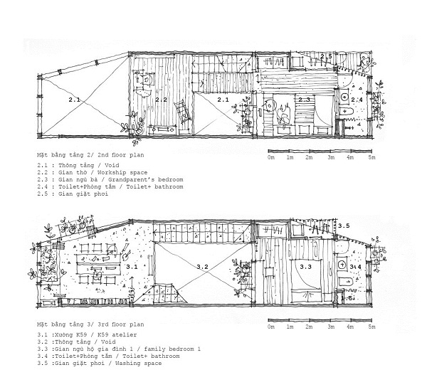
Tầng tiếp theo được chia làm hai phần, phía trước là không gian thờ cúng, xưởng thiết kế và một vườn rau, phía sau là không gian riêng bao gồm phòng ngủ, nhà vệ sinh và khu vực phơi phóng.



Không gian vệ sinh được bố trí hướng về phía rạch Bà Bướm giúp cho không gian được thông thoáng và làm khoảng đệm cho không gian phòng ngủ.
Phần khoảng trống và khoảng đệm mở là phương pháp nhóm kiến trúc sư muốn sử dụng để tạo liên kết và chuyển tiếp không gian.
Các hệ thống cửa xếp, trượt và xoay cùng hệ kết cấu bê tông giúp không gian, con người được kết nối bên trong và mở rộng tầm nhìn ra cảnh quan xung quanh.
“Chúng tôi thích sự thích nghi và tự thay đổi hơn là chống lại những gì xảy ra xung quanh chúng tôi” Nhóm kiến trúc sư chia sẻ.







Sống giữa một thành phố đông đúc và ngột ngạt không có nghĩa là chúng ta phải ngắt kết nối ra bên ngoài và đóng kín cửa. Trái lại, chúng ta cần sự linh hoạt và hào phóng trong thiết kế.
Cấu trúc rỗng giúp ngôi nhà dễ thở hơn, thay vì sử dụng những bức tường dài bằng kính cố định. Chúng tôi tin rằng phương pháp này sẽ cho phép giao tiếp giữa con người với tự nhiên và xã hội.


Phối cảnh & bản vẽ ngôi nhà


-
9 mẫu nhà ống 3 tầng hiện đại có gara ô tô tiện lợi
Dưới đây là những mẫu thiết kế nhà ống 3 tầng hiện đại, trẻ trung có gara ô tô tiện lợi.
-
Thổi hồn cho nhà ống 3 tầng với mặt tiền gạch đỏ tại khu đảo VIP ở Đà Nẵng
CafeLand - Ngôi nhà tọa lạc tại khu đảo VIP Hòa Xuân ở Thành phố Đà Nẵng, một khu đô thị được bao bọc bởi 2 dòng sông Cẩm Lệ và Đô Tỏa.
-
10 mẫu nhà ống 3 tầng được ưa chuộng năm 2021
CafeLand – Nhà ống 3 tầng với thiết kế đơn giản, hiện đại, đáp ứng được nhu cầu sinh hoạt và phù hợp với các gia đình có nhiều thành viên.
-
Nhà ống giá rẻ và độc đáo ở Hà Nội
CafeLand - Do tốc độ đô thị hóa quá nhanh, Hà Nội (Việt Nam) đang phải đối mặt với nhiều vấn đề nan giải như kẹt xe, ô nhiễm không khí, thiếu không gian công cộng.
-
Nhà ống 4 tầng lơ lửng như tổ chim tại Quận Bình Thạnh
CafeLand - Công trình giống như nhiều ngôi nhà ống khác ở Sài Gòn. Ngôi nhà này nằm trên một mảnh đất hẹp 4m x 12m trong khu dân cư đông đúc ở Q. Bình Thạnh, Thành phố Hồ Chí Minh.
