
Giới thiệu về ngôi nhà
Thể loại công trình: Nhà phố 6 tầng
Địa điểm: Quận 7, TP.HCM
Diện tích khu đất: 3.5m x 17m
Năm hoàn thành: 2024
Vị trí: ngôi nhà nép mình trong con hẻm đông dân cư ở Quận 7 trên mảnh đất có chiều dài gấp 5 lần chiều ngang. Chủ nhân của ngôi nhà muốn có nhiều không gian thư giãn để cafe, đọc sách, trò chuyện cùng nhau với một không gian thoáng đãng và sáng sủa có cả hồ bơi, thang máy và chỗ để xe. Tuy nhiên với diện tích 59.5m2 thì sẽ là bài toán nan giải cho kiến trúc sư.

Kiến trúc, kết cấu ngôi nhà:
Sau nhiều năm tích lũy tài chính, gia chủ muốn xây dựng ngôi nhà nhỏ sống chậm cùng với công việc có thể làm tại nhà để mỗi sáng có thể thưởng thức, đàm đạo theo sở thích cá nhân như chút hoài niệm về thời sinh viên.

Giải pháp là ngôi nhà 1 trệt 1 lửng 4 tầng được thiết kế theo phong cách kiến trúc hiện đại nhưng vẫn đảm bảo công năng nhu cầu sử dụng.
Không gian nội thất:
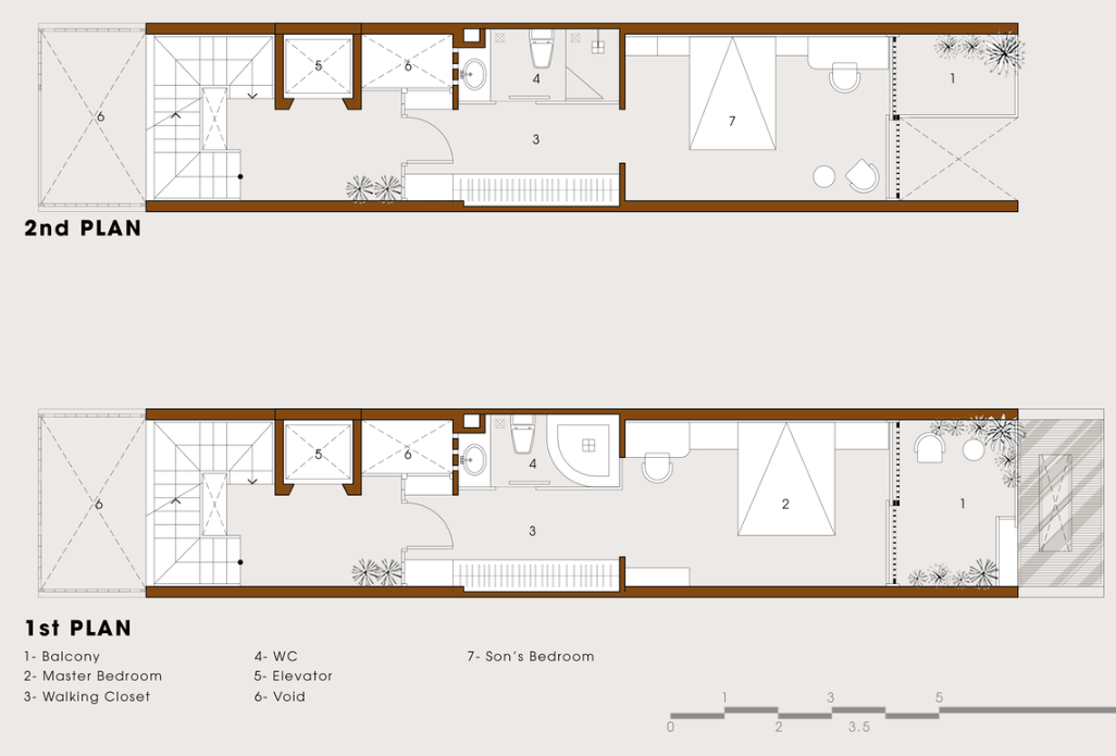
Tầng trệt của ngôi nhà có khoảng sân trước rộng dành cho xe ô tô và xe máy. Đi vào trong là phòng khách kết hợp với phòng thờ. Khu vực thờ bố trí dưới khoảng thông tầng vừa đảm bảo ánh sáng vừa thể hiện sự tôn nghiêm.

Vách dựng lam gỗ gây ấn tượng ngay lối vào nhà tại tầng trệt.

Cầu thang và thang máy được đặt cuối nhà tạo ra diện tích sử dụng lớn nhất có thể cho mỗi tầng.
Phòng bếp và phòng ăn được đưa lên gác lửng nhưng lùi vào một khoảng để có thể nhìn xuống khu vực nhà xe và sân trước, giúp các thành viên có thể vừa nấu nướng và trông nom nhà cùng một lúc.

Một góc bếp và bàn ăn mang đến cảm giác ấm cúng cho các thành viên.
Tầng 2, 3 và 4 mỗi tầng có phòng ngủ với phòng tắm riêng, phòng tắm được thiết kế bao quanh tường kính giúp tăng khả năng đưa sáng và tăng diện tích cho không gian.

Nếu phòng khách, bếp bố trí nhà vệ sinh chung thì ba phòng ngủ sẽ ưu ái hơn khi có phòng tắm riêng.

Tường lam gỗ đều lặp lại tại 3 phòng ngủ, mỗi phòng đều có ban công riêng có cây xanh.

Sân thượng được trang trí một khu vực giặt đồ và hồ bơi với tầm nhìn ra trung tâm thành phố tạo hệ thông gió tự nhiên, kết hợp với tiền sảnh được phủ bằng gạch cổ tái sử dụng từ ngôi nhà cũ nên không bị ảnh hưởng khi trời đổ mưa.

Bảng màu và vật liệu:
Kiến trúc sư sử dụng những tông màu mang hơi hướng tự nhiên như trắng, vàng gỗ và đỏ của gạch nung, các sắc màu rất dễ phối trong nội thất hiện đại. Ngoài ra, để gây ấn tượng theo thời gian, kiến trúc sư đã kết hợp các bức tường xi măng màu xám và gỗ màu đậm tạo nên sự độc đáo theo cách riêng.

Sàn nhà và các vật dụng nội thất cũng sử dụng màu vân gỗ cổ điển mang đến cảm giác ấm áp và gần gũi. Ngôi nhà 6 tầng được hoàn thành 2024 với chi phí 3.5 tỷ đồng.

Mặt bằng kiến trúc nhà phố 6 tầng với chiều dài gấp 5 lần chiều rộng có hồ bơi khoảng 3.5 tỷ đồng tại Quận 7.

Chu Anh (Archdaily.com)
(Nguồn: Story Architecture)
-
Đưa nhà ba gian vào kiến trúc nhà quê kết hợp giữa truyền thống và hiện đại tại Quảng Nam
Ngôi nhà được xây dựng với ý tưởng tái hiện từ những ngôi nhà truyền thống tại nông thôn nhưng được nâng cấp và tích hợp nhiều hình thức kiến trúc mới tại Thành phố Tam Kỳ, tỉnh Quảng Nam.
-
Nhà chung sân 3 thế hệ ở Hà Nội: Nghệ thuật chia không gian tối giản trên đất 58m²
Sống chung trên một mảnh đất với cha mẹ nhưng vẫn muốn có một không gian riêng tư, tiện nghi cho gia đình nhỏ của mình là bài toán phổ biến tại các đô thị lớn. Trên khu đất vỏn vẹn 5,8m x 10m nằm nép mình sau khoảng sân chung tại Hà Nội, một ngôi nhà...
-
Nhà 3 tầng Phan Rang: Hy sinh 30% diện tích thuần hóa nắng gió miền Trung
Phan Rang đón người ta bằng cái nắng gắt của vùng biển vịnh và những ngôi nhà phố hẹp dài thường vô tình trở thành những hộp nhiệt bí bách. Nhưng bước qua cánh cửa của ngôi nhà này là một cảm giác thư thái đến bất ngờ ập tới. Bằng cách cắt lại 30% qu...
-
Nhà gạch cánh bướm Quảng Ninh: Giải pháp vỏ bọc 3 lớp và nông nghiệp thẳng đứng
Nằm tiếp giáp với vùng đô thị mới tại thị trấn Mạo Khê, giữa những mảnh ruộng lâu đời, một khối hộp mang tên CUBE xuất hiện như một lời giải thông minh cho bài toán chuyển dịch nông thôn. Bằng cách dựng đứng những khoảng sân và xếp lớp hệ vỏ bọc, côn...
-
Nhà lô góc Nha Trang: Nghệ thuật phép trừ để sở hữu lõi xanh xuyên suốt
Trong bối cảnh đất chật người đông, đa số chủ nhà thường tìm cách tận dụng từng centimet vuông để xây dựng. Thế nhưng, ngôi nhà 2 mặt tiền này lại chọn cách đi ngược trong sự tiết chế. Thay vì lấp đầy khu đất góc phố bằng bê tông, công trình chấp nhậ...
-
Nhà 5 tầng Thái Bình lột xác với mặt tiền như thảm thực vật bay lơ lửng giữa trời
Ngôi nhà tại Thái Bình đã chọn cách phản kháng mang cả cánh đồng lên cao. Với triết lý không chỉ giải quyết bài toán ở và cho thuê, mà còn kiến tạo một bức rèm thực vật lơ lửng, tự cung tự cấp rau xanh và gắn kết tình làng nghĩa xóm qua những mầm cây...
