
Ngôi nhà của 4 người con gái tuổi trung niên mong muốn dành những năm tháng còn lại cuộc đời để cùng nhau chăm sóc mẹ như một cách tiếp nối những ký ức tuổi thơ.

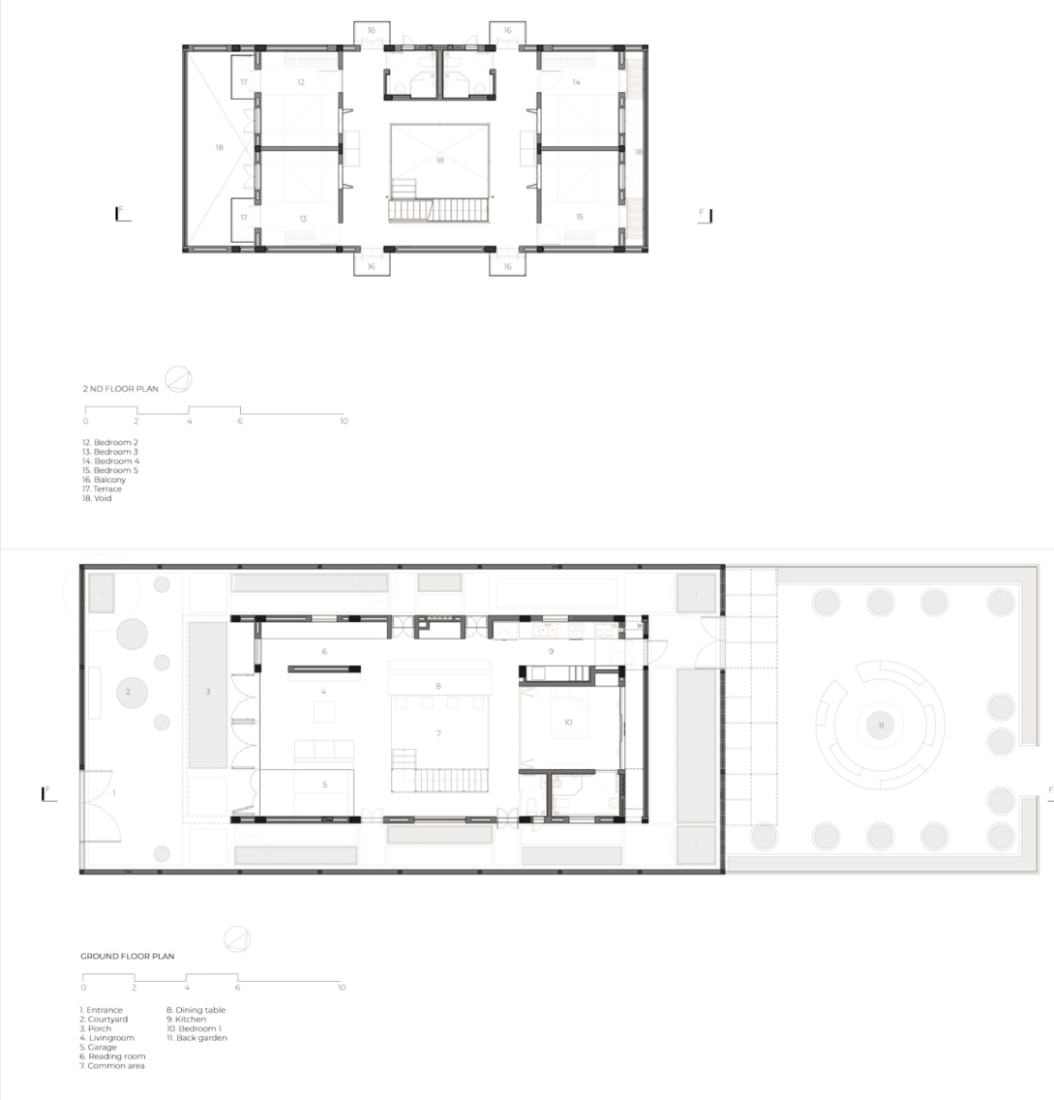
Với ưu điểm mảnh đất dài nên các không gian được tổ chức, phân chia rộng thoáng, đặc biệt chúng đều kết nối với liên tục với nhau, khép kín bao quanh lõi thông tầng nên đảm bảo tính riêng tư và mọi hoạt động thường ngày vẫn diễn ra một cách tự nhiên.

Ngoài ra, ngôi nhà còn có con rạch chạy ngang nên những ngày hè oi bức sẽ trở nên dễ chịu, mát mẻ hơn.

Chính nhờ cơn gió từ con rạch đi vào nhà qua các ô cửa, lớp tường gạch mà không khí nóng trong nhà sẽ di chuyển lên tầng áp mái và đi hướng ra ngoài theo các lỗ trống. Cứ như vậy mà các không gian nghỉ ngơi cũng như sinh hoạt chung ở các tầng dưới luôn mát mẻ.

Hai khoảng thông tầng xuyên suốt tại tầng áp mái, nơi có bàn thờ gia tiên. Tầng áp mái có tác dụng như khoảng đệm ngăn sức nóng bức xạ của mặt trời vào những buổi trưa nắng gắt.


Tầng áp mái với 2 khoảng thông tầng hình tròn khuyết có tác dụng điều hòa vi khí hậu cho các không gian tầng dưới nhà.
Ngôi nhà được thiết kế theo hai hướng. Hướng thứ nhất thiết kế mở có tầm nhìn ra cảnh quang bên ngoài nhưng vẫn đảm bảo sự riêng tư. Với giải pháp này, kiến trúc sư sử dụng những bức tường rỗng có chiều cao vừa đủ để tạo bóng đổ và gió, ánh sáng có thể đi vào một cách nhẹ nhàng qua các ô gạch, con người có thể ngắm những cơn mưa chuyển mùa mà không bị ướt.


Các sinh hoạt bên trong nhà đều hướng ra phía trước và khu vườn rộng thênh thang như mê cung.
Hướng thứ hai sử dụng giải pháp quay vào hành lang và hai khoảng thông tầng giữa nhà – nơi có cầu thang.

Phòng khách không sofa nhưng thay vào đó là những chiếc phản dài, hay chiếc bàn gỗ dài tiếp khách.

Bàn ăn đặt trung tâm ngôi nhà nhưng kết nối với các không gian khác như phòng khách, khu vực đọc sách, bếp và phòng ngủ của mẹ. Các không gian này đều mở ra các khu vườn có tầm nhìn vừa đủ để ánh nắng và thiên nhiên đi vào một cách tự nhiên.

Ngăn cách giữa phòng ngủ của mẹ với khu vực ăn uống và không gian sinh hoạt chung là hệ cửa gỗ gấp.

Bên trong phòng ngủ dành cho mẹ thiết kế khá đơn giản, đặc biệt ấn tượng với hình ảnh chiếc giường mang nhiều ký ức tuổi thơ.

Hình ảnh chiếc giường gỗ cũng được sử dụng cho 4 phòng ngủ còn lại.
Vật liệu xây dựng chính là gạch ngói đỏ, khung thép, bê tông và đá. Từ trên cao khu vườn trước nhà rộng thênh thang với những ô gạch tạo thành hình tròn vô cùng ấn tượng.

Mặt bằng kiến trúc xây nhà 300m2 5 phòng ngủ ở ngoại ô Nhà Bè.

(Nguồn: Tropical Space)
-
Độc đáo ngôi nhà với thiết kế 7 khu vườn tại Cần Thơ
Nhà phố dài 23m ngang 4.5m được xây dựng với tiêu chí hướng đến sự tối giản trong không gian sống nên khó mà tin trong nhà có đến 7 khu vườn và tiếp tục sẽ phát triển trong tương lai.
-
Ngôi nhà Đông Dương của người viễn xứ giao hưởng giữa hơi thở hiện đại và di sản Hội An
Nằm trên dải đất hẹp giữa biển Đông và sông Đế Võng, ngôi nhà tại An Bàng của gia chủ người nước ngoài là kết tinh của một tình yêu với di sản Hội An như quê hương thứ hai. Bằng cách tái hiện những mảng tường vàng, mái ngói và những khoảng hiên lộng ...
-
Nhà vườn ven sông Hà Nội: Khi giải pháp xếp chồng bồi đắp nên vẻ đẹp mộc bản
Nằm yên bình tại nơi hợp lưu của hai dòng sông mang nặng phù sa, ngôi nhà là một nốt lặng đầy tinh tế giữa nhịp độ đô thị hóa hối hả của vùng ven Thủ đô. Bằng cách ứng dụng triết lý bồi đắp và những lớp cắt không gian thông minh, ngôi nhà đã trở thàn...
-
Farmstay 5G Đồng Nai 1,1 tỷ đồng: Cuộc cách mạng 5 giảm cho nhà ở nông thôn đương đại
Rời xa những khối bê tông ngột ngạt của đô thị, tại Đồng Nai hiện diện một mô hình Farmstay độc đáo – nơi kiến trúc không chỉ là nơi trú ngụ mà còn là một phần của hệ sinh thái nông nghiệp. Bằng cách ứng dụng giải pháp bán tiền chế 5G với triết lý 5 ...
-
Kiến trúc nhà mái vòm Bến Tre với nghệ thuật nhấc bổng tầm nhìn bên dòng sông
Một công trình rộng 430m2 tại Bến Tre như một thực thể sống động giữa thiên nhiên với giải pháp nương tựa vào những rặng dừa và dùng bốn khối vòm nhấp nhô để đối thoại với dòng sông lộng gió....
-
Nhà bê tông biết thở giữa Huế và triết lý sống giàu có từ những khoảng trống
Nằm giữa vùng lõi sôi động của phường Vĩ Dạ, Huế – nơi bao quanh bởi tiếng ồn của nhà hàng và khách sạn ngôi nhà hiện lên không hào nhoáng, mà là một cuộc thực nghiệm về cấu trúc hình học chữ X, tạo nên một "ngôi nhà trong ngôi nhà" bằng bê tông trần...
