
Giới thiệu về ngôi nhà:
Thể loại công trình: thiết kế và xây dựng nhà phố 2 tầng
Địa điểm: Thành phố Biên Hòa, tỉnh Đồng Nai
Diện tích xây dựng: 70m2
Năm hoàn thành: 2024
Kiến trúc, kết cấu ngôi nhà:
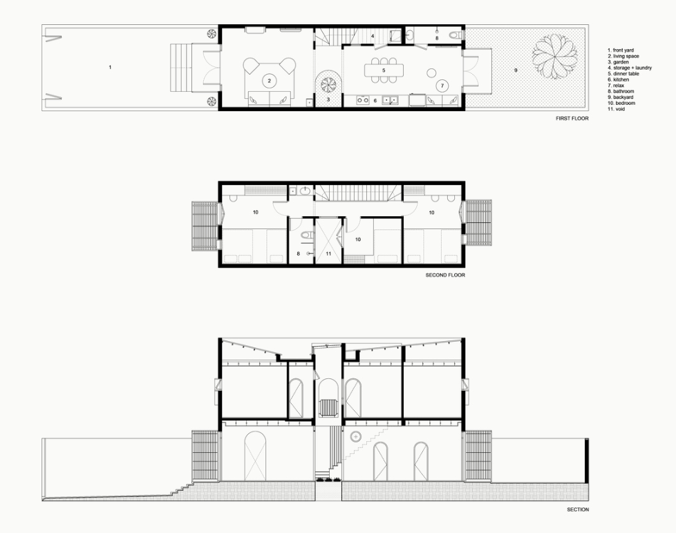
Bước vào bên trong, điều đầu tiên bạn sẽ nhận thấy là cách bố trí thông minh của ngôi nhà. Thay vì lấp đầy toàn bộ mặt bằng, kiến trúc sư đã khéo léo đặt khối nhà ở giữa khu đất, tạo nên hai khoảng sân nhỏ ở phía trước và phía sau.

Giải pháp này không chỉ giúp không gian thông thoáng mà còn tạo nên hệ thống thông gió tự nhiên hiệu quả.
Tầng trệt được thiết kế như một không gian mở liên hoàn. Phòng khách tích hợp bàn thờ tổ tiên.

Những khối vòm cung được thiết kế đồng nhất từ cửa ra vào chính đến cuối nhà.
Khu vực bếp và phòng ăn được bố trí hài hòa, cùng với một góc thư giãn ấm cúng

Cầu thang, nhà vệ sinh và khu vực lưu trữ được bố trí gọn gàng về một phía nhằm tối ưu hóa luồng di chuyển từ trước ra sau.

Lên đến tầng hai, chúng ta sẽ thấy ba phòng ngủ và một phòng tắm chung.

Để phù hợp với gia đình có trẻ nhỏ, toàn bộ phần chân tường được ốp gạch men, giúp việc vệ sinh trở nên dễ dàng hơn.

Điểm nhấn đặc biệt là giếng trời ở trung tâm, nơi ánh sáng tự nhiên len lỏi qua những mảng xanh, kết nối tầng trệt và tầng 2 một cách tinh tế.

Thay vì thiết kế ban công thông thường, kiến trúc sư đã chọn giải pháp tạo những ô cửa vòm có mái che, vừa tiết kiệm không gian vừa tạo điểm nhấn thẩm mỹ.

Một chi tiết thú vị là vòm cửa ngay mặt tiền, theo thời gian những dây leo uốn lượn quanh vòm cửa, tạo nên bức tranh thiên nhiên sống động.

Hệ mái vòm, bậc thang, gạch đồng màu khiến cảm giác như sắp bước vào một không gian mới nhiều thú vị.
Ngôi nhà là sự kết hợp hoàn hảo giữa công năng và tính thẩm mỹ. Với diện tích 70m2, ngôi nhà không chỉ đáp ứng đầy đủ nhu cầu sinh hoạt mà còn mang đến không gian sống thoải mái, gần gũi với thiên nhiên.

Việc lựa chọn vật liệu và màu sắc trong ngôi nhà thể hiện sự cân bằng giữa tính thẩm mỹ, công năng và chi phí, phù hợp với nhu cầu của một gia đình trẻ có ngân sách vừa phải.

Gam màu chủ đạo trắng, xám, gỗ tự nhiên kết hợp cùng điểm nhấn xanh của cây leo và cây nội thất.
Ngôi nhà là một ví dụ điển hình về việc thiết kế thông minh có thể vượt qua giới hạn của ngân sách và diện tích, tạo nên một không gian sống lý tưởng cho gia đình trẻ hiện đại. Đây thực sự là một mô hình đáng tham khảo cho những ai đang tìm kiếm giải pháp nhà ở phù hợp với điều kiện tương tự. Ngôi nhà được hoàn thành vào 2024 với ngân sách 1,3 tỷ đồng.

Mặt bằng kiến trúc của ngôi nhà 2 tầng tiện nghi, đầy ắp ánh sáng tự nhiên của vợ chồng thu nhập trung bình với chi phí 1,3 tỷ đồng.

(Nguồn: 90odesign)
-
Cảm hứng kết hợp giữa hiện đại và truyền thống trong căn hộ cao cấp tại Thủ Thiêm
Căn hộ cao cấp tọa lạc tại khu vực Thủ Thiêm, Thành phố Thủ Đức không chỉ là một không gian sống ấm cúng và thanh bình mà còn là nơi lưu giữ bản sắc văn hóa, hài hòa giữa phong cách hiện đại và những nét văn hóa truyền thống Á Đông một cách tự nhiên và tinh tế.
-
Hành trình hồi hương: Điểm chạm thiên nhiên trong nhà 2 tầng Hà Nội cho người cao tuổi
Rời bỏ những khối bê tông bức bối của nội đô, một cặp vợ chồng lớn tuổi đã chọn quay về mảnh đất tổ tiên bên triền sông Hồng để tìm lại nhịp sống chậm rãi. Trên diện tích khiêm tốn 6m x 20m, kiến trúc sư đã khéo léo tái hiện lại tinh thần của nếp nhà...
-
Nhà phố TP.HCM: Hệ mái V độc bản và trục xương sống vườn đôi xuyên suốt
Ngôi nhà hiện lên như một lời phản kháng tĩnh lặng qua những khối hộp chữ nhật san sát nhau tạo nên sự đơn điệu và ngột ngạt. Không chạy theo những diện mạo hào nhoáng, công trình chọn quay về với những giá trị nguyên bản của mái hiên, bình phong và ...
-
Nghệ thuật mặt tiền lớp kép và cầu thang xuyên sáng cho nhà hẻm Tân Phú
Trong những con hẻm chật hẹp tại quận Tân Phú, nơi mật độ xây dựng dường như đã bóp nghẹt mọi khoảng thở, một ngôi nhà chiều ngang khiêm tốn nhưng lại ưu thế về chiều dài đã xuất hiện như một lời hồi đáp nhẹ nhàng nhưng đầy sức nặng....
-
Nhà phố Vũng Tàu: Nghệ thuật sắp đặt 5 sân vườn liên hoàn cho gia đình 3 thế hệ
Trong bối cảnh đô thị hóa nén chặt tại Vũng Tàu, ngôi nhà dành cho gia đình 3 thế hệ xuất hiện như một lời giải đầy cảm hứng cho bài toán gắn kết con người và khí hậu. Bằng cách sử dụng hệ thống 5 khoảng sân đan xen, một cấu trúc biết thở nơi ánh sán...
-
Nhà phố hai mặt tiền Biên Hòa: Nghệ thuật mở khoảng rỗng giữa giao lộ hẻm
Trong cái ngột ngạt của những bao diêm đô thị, nơi các tòa nhà chen chúc đến nghẹt thở, tại giao lộ của hai con hẻm nhỏ, một ngôi nhà phố 5m x 20m đã chọn cách làm ngược lại là tạo ra những khoảng hở để sống bằng cách sử dụng triết lý khoảng rỗng làm...
