
Màu sắc hài hòa, trẻ trung đã tạo nên một căn hộ mát mẻ, đầy sự tươi mới.

Tủ bếp màu đen kết hợp với màu xanh lam đã tạo nên tông màu lạ mắt, độc đáo.

Nền gạch cổ điển với màu trắng hiện đại đã tạo nên sự tương phản độc đáo.

Rèm chính là yếu tố để ngăn cách giữa các không gian.

Nhà thiết kế đã rất khéo léo, tinh tế khi tận dụng và biến đổi căn hộ gác mái cũ thành không gian vạn người mê.

Cửa được sơn xanh sẽ tạo được rất nhiều ấn tượng khi bước vào căn gác.

Sàn và trần gỗ vẫn được giữ nguyên bản để lưu giữ lại những nét cổ điển còn lại trong căn hộ gác mái này.

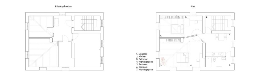
Phương án thiêt kế căn hộ áp mái hiện đại ở Poznan này.

Sơ đồ mặt cắt của căn hộ gác mái nhỏ.

Sơ đồ mặt bằng của căn hộ gác mái hiện đại vơi thiết kế thông minh.
-
Căn hộ 56m2 đầy sự cá tính, mạnh mẽ
CafeLand - Căn hộ rộng chi vẻn vẹn 56m2, nhưng với khả năng sáng tạo về thiết kế cũng như trang trí đã mang đến một không gian đầy cá tính phù hợp với gia chủ là nam giới.
-
5 yếu tố giúp bạn lựa chọn rèm cửa phù hợp trang trí cho không gian sống
Rèm cửa không chỉ tăng thêm sự riêng tư và chức năng cho ngôi nhà, nếu được chọn phù hợp, rèm có thể tạo thêm phong cách và trở thành điểm nhấn đầy ấn tượng trong bất kỳ căn phòng nào.
-
Ngôi nhà bền vững giữa đảo Phú Quốc có hệ thống lưu giữ nước mưa dùng quanh năm
Ngôi nhà độc đáo tại Phú Quốc, xuất phát từ nhu cầu của một cặp vợ chồng trẻ sống trên đảo. Ngôi nhà sau khi hoàn thành là một giải pháp thông minh và bền vững cho những thách thức về nhà ở tại các khu vực đảo tại Việt Nam....
-
“Bóc giá” căn nhà vườn đẹp như mơ của vợ chồng 8X sau 2 năm bỏ phố về quê
Sau hai năm bỏ phố về quê, vợ chồng chị Mami Đỗ đã xây dựng một cơ ngơi hoành tráng tại một huyện ngoại thành của Hà Nội.
-
Cách trang trí cây thường xuân trong nhà tạo không gian xanh
Các loại cây xanh có thể tạo cảm giác thư giãn tức thì trong bất kỳ không gian nào trong ngôi nhà của bạn. Với thường xuân - loại cây được ưa chuộng trang trí trong nhà không chỉ tô điểm thêm không gian sống mà còn có ý nghĩa về phong thủy. Dưới đây ...
-
Cách trang trí đơn giản giúp thay đổi diện mạo căn nhà
Để làm mới không gian sống, bạn có thể sử dụng những cách vật liệu đơn giản dưới đây. Chúng có nhiều màu sắc, hoa văn, chất liệu khác nhau giúp bạn dễ dàng lựa chọn phù hợp với phong cách trang trí mong muốn....
