
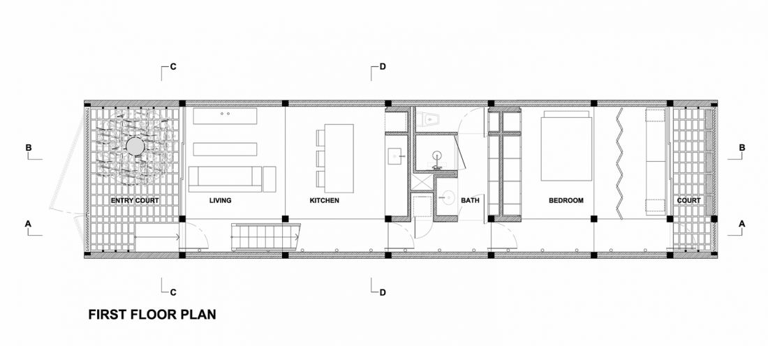
Ngôi nhà được xây dựng trên một lô đất đã quy hoạch điển hình của Đà Nẵng. Các không gian được dàn trải theo chiều dọc bao gồm 1 phòng khách, nhà bếp, một phòng ngủ và một phòng tắm.

Yêu cầu đặt ra là ngôi nhà được xây dựng dựa trên các yếu tố sau:
Thứ 1: kiến trúc dạng hộp đơn giản; Thứ 2: thiết kế dựa trên thứ có sẵn; Thứ 3: Sử dụng công trình hài hòa với chất liệu tính địa phương – khung bê tông cốt thép; Thứ 4: Kích thước nhỏ nên phân chia sử dụng không gian hiệu quả; Thứ 5: Tiết kiệm chi phí.

Để phù hợp với điều kiện khí hậu nóng và ẩm nên việc thiết kế không gian nội thất có phần khó khăn hơn nếu không sử dụng điều hòa nhiệt độ cũng như che nắng cho các khe hở và đường bao quanh nhà. Các luồng gió làm mát có thể thổi theo chiều ngang xung quanh và qua các khu vực trung tâm, theo chiều dọc từ cầu thang lên mái nhà.

Kết cấu kiến trúc, các đường dẫn điện và đường ống dẫn nước được che giấu bên dưới hoặc trong các tấm sàn và trong các bức tường hốc xây.

Chất liệu sử dụng thô như bê tông kết hợp với các khung sắt hàng rào, cửa ra vào, khung mái lợp tôn. Không gian nội thất sử dụng chất liệu gỗ sơn đỏ nhưng có tiết chế, đây cũng là xu hướng xây dựng các ngôi nhà phổ biến của thành phố này.

Ngôi nhà với không gian cân bằng được những khoảng không với các đường nét đặc rỗng cùng độ đóng mở hợp lý.

Bảng vẽ kiến trúc ngôi nhà

(Nguồn hình: David Rockwood)
-
Nhà phố 5 tầng vừa ở vừa cho thuê như resort thu nhỏ tại Q. Bình Thạnh
CafeLand - Công trình được xây dựng trên khu đất 113m2 với mục tiêu hướng đến không gian tối giản bên ngoài, hiện đại và đầy đủ công năng bên trong tại Q. Bình Thạnh, TP. HCM.
-
Nhà chung sân 3 thế hệ ở Hà Nội: Nghệ thuật chia không gian tối giản trên đất 58m²
Sống chung trên một mảnh đất với cha mẹ nhưng vẫn muốn có một không gian riêng tư, tiện nghi cho gia đình nhỏ của mình là bài toán phổ biến tại các đô thị lớn. Trên khu đất vỏn vẹn 5,8m x 10m nằm nép mình sau khoảng sân chung tại Hà Nội, một ngôi nhà...
-
Nhà 3 tầng Phan Rang: Hy sinh 30% diện tích thuần hóa nắng gió miền Trung
Phan Rang đón người ta bằng cái nắng gắt của vùng biển vịnh và những ngôi nhà phố hẹp dài thường vô tình trở thành những hộp nhiệt bí bách. Nhưng bước qua cánh cửa của ngôi nhà này là một cảm giác thư thái đến bất ngờ ập tới. Bằng cách cắt lại 30% qu...
-
Nhà gạch cánh bướm Quảng Ninh: Giải pháp vỏ bọc 3 lớp và nông nghiệp thẳng đứng
Nằm tiếp giáp với vùng đô thị mới tại thị trấn Mạo Khê, giữa những mảnh ruộng lâu đời, một khối hộp mang tên CUBE xuất hiện như một lời giải thông minh cho bài toán chuyển dịch nông thôn. Bằng cách dựng đứng những khoảng sân và xếp lớp hệ vỏ bọc, côn...
-
Nhà lô góc Nha Trang: Nghệ thuật phép trừ để sở hữu lõi xanh xuyên suốt
Trong bối cảnh đất chật người đông, đa số chủ nhà thường tìm cách tận dụng từng centimet vuông để xây dựng. Thế nhưng, ngôi nhà 2 mặt tiền này lại chọn cách đi ngược trong sự tiết chế. Thay vì lấp đầy khu đất góc phố bằng bê tông, công trình chấp nhậ...
-
Nhà 5 tầng Thái Bình lột xác với mặt tiền như thảm thực vật bay lơ lửng giữa trời
Ngôi nhà tại Thái Bình đã chọn cách phản kháng mang cả cánh đồng lên cao. Với triết lý không chỉ giải quyết bài toán ở và cho thuê, mà còn kiến tạo một bức rèm thực vật lơ lửng, tự cung tự cấp rau xanh và gắn kết tình làng nghĩa xóm qua những mầm cây...
