
Khung chữ A truyền thống mang đến một không gian đầy thú vị và phong cách cho ngôi nhà nhỏ ở Vương Quốc Anh này.

Một ngôi nhà yên tĩnh, nhẹ nhàng cùng với bầu không khí ấm cúng, tươi vui kỳ thực là mơ ước của biết bao người. Đặc biệt khi trời tối thì ánh đèn phía trong giúp căn nhà thêm tỏa sáng và lung linh hơn.

Bên ngoài sử dụng màu trắng là dụng ý của nhà thiết kế vè một không gian tươi mát và trẻ trung, phù hợp với bối cảnh xung quanh.

Bên ngoài trông khá nhỏ nhắn thì bên trong lại là một không gian rộng rãi, thoáng mát với sự tối giản về nội thất. Những bức tường kính bao quanh mang lại cho không gian luôn tràn ngập ánh sáng và hơi thở thiên nhiên.

Phòng khách đơn giản, nhưng đầy sự tinh tế, ấm cúng với lò sưởi, chiếc sofa màu đen nổi bật.

Cầu thang di chuyển lên gác trên cũng trở nên sinh động khi được tô điểm ngay bên dưới chân ít chậu cây xanh.

Phòng ngủ cũng tăng thêm sự hoành tráng hơn khi được thiết kế trên chóp hình chữ A, với tông màu trắng hoàn toàn.


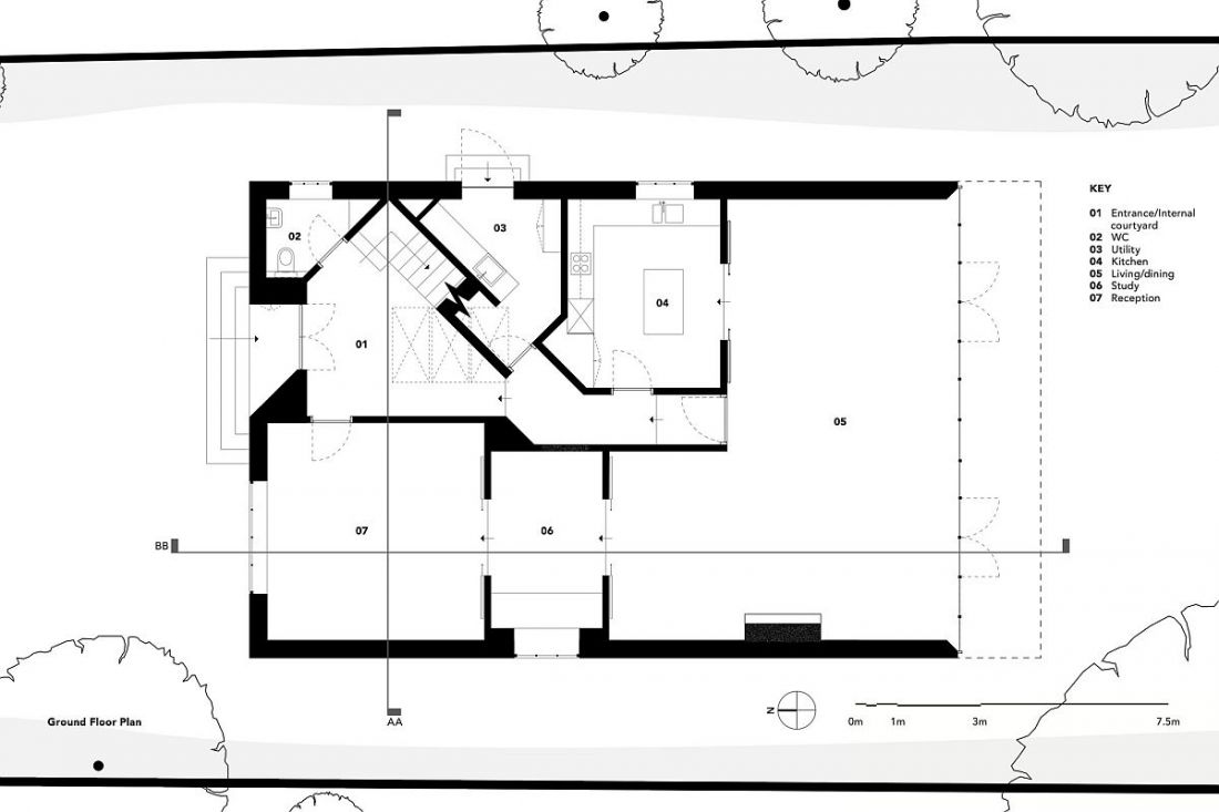
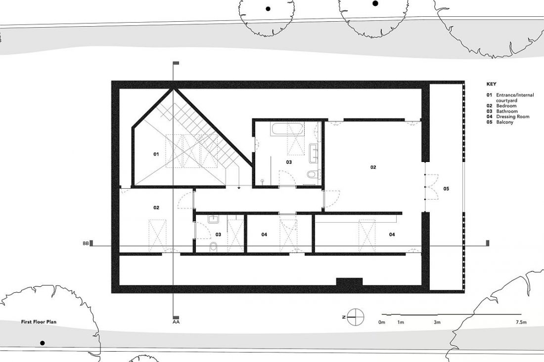
Sơ đồ mặt bằng chi tiết toàn bộ ngôi nhà độc đáo ở Vương Quốc Anh.
-
Lạ mắt với ngôi nhà được trang trí phong cách tối giản
CafeLand - Ngôi nhà dưới đây hoàn toàn bị thu hút khi vừa sử dụng phong cách trang trí hoàn toàn mới lại vừa kết hợp ánh sáng đan xen, nội thất sáng tạo, tạo nên không gian sống hiện đại, tinh tế.
-
Mô hình nhà nổi 250 triệu: giải pháp an cư sống chung với lũ bền vững tại Việt Nam
Năm vừa qua, Việt Nam oằn mình gánh chịu 17 cơn bão liên tiếp, khiến nhiều tỉnh thành chìm trong biển nước. Khi thiên tai không còn là chu kỳ mà trở thành mối đe dọa thường trực, câu hỏi làm sao để bảo vệ con người trên chính mảnh đất cha ông đã thúc...
-
Kiến trúc nhà module chống lũ lắp ghép 25 ngày dưới 53 triệu đồng
Không phải là một ngôi nhà cố định, mà là một khối module lắp ghép 3.3m x 6.6m, được thiết kế để chống chọi lũ lụt cao 1,5m. Hãy cùng khám phá cách mô hình này được lắp ráp chỉ trong 25 ngày với chi phí dưới 53 triệu đồng chỉ bằng vật liệu có sẵn tại...
-
Khám phá tòa tháp in 3D cao nhất thế giới tại Thụy Sĩ
Tor Alva - tòa tháp cao 30m được mô phỏng theo một chiếc bánh, mới được khánh thành tại một ngôi làng nhỏ trên núi ở Thụy Sĩ.
-
Khám phá ngôi nhà như hang động được giấu dưới lòng đất tại Nhật Bản
Tọa lạc tại thành phố Ube, tỉnh Yamaguchi, công trình độc đáo này vừa là nhà ở vừa kinh doanh nhà hàng của đầu bếp người Nhật. Dự án được kiến trúc sư Junya Ishigami thiết kế, tạo ra bằng cách đổ bê tông vào các lỗ trên mặt đất....
-
Khám phá ngôi nhà gạch với thiết kế tường gạch lượn sóng độc đáo tại Ấn Độ
House of Dancing Cactus là một ngôi nhà độc lập nổi tiếng tại Pondicherry, Ấn Độ, có diện tích 110m2. Dự án được thiết kế bởi văn phòng kiến trúc Art&Architecture, mang đến một không gian sống đầy sáng tạo....
