
Là một ngôi nhà yên bình thông qua việc sử dụng không gian kiến trúc có thể thức tỉnh, khơi dậy ý thức về đời sống tinh thần cho các thành viên cũng như đáp ứng đầy đủ nhu cầu sống của một gia đình người Việt.

Ngôi nhà có cấu trúc đơn giản nhưng đầy đủ chức năng như các ngôi nhà hiện đại ở đô thị đang phát triển. Ngôi nhà được xây dựng theo phương pháp xây dựng cơ bản, các chi tiết kiến trúc đơn giản để giảm thiểu thời gian xây dựng cũng như chi phí đầu tư. Không gian nội thất cũng rất đơn giản cũng chính là mong muốn của chủ nhà, vì họ ho rằng không gian sống vui vẻ thoải mái không nhất thiết là phải sử dụng nội thất đắt tiền.



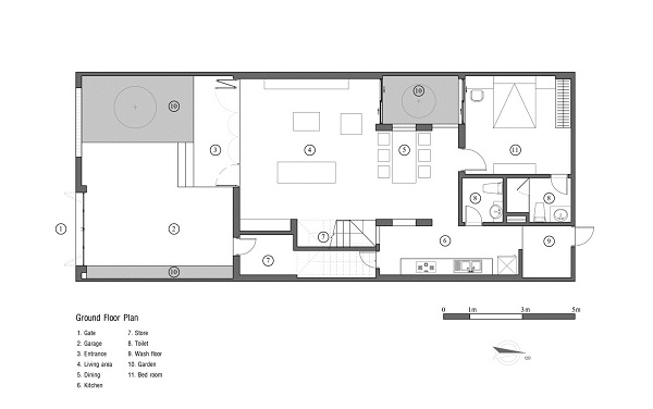
Ga ra để xe ở sân trước nhà, cũng là yếu tố phổ biến tại các ngôi nhà phố, bên cạnh đó là khu vườn nhỏ xanh mát.

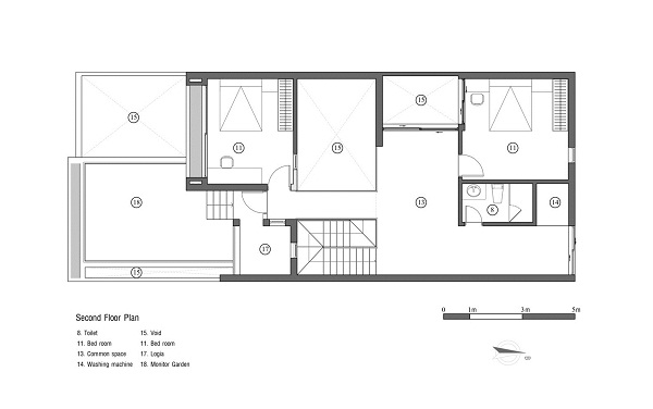
Các không gian chung ở tầng trệt được kết nối với nhau liền mạch, bếp được ngăn cách nhưng lại có sự kết nối với khoảng không gian phía ngoài nhà. Phòng ngủ ờ tầng 1 ngăn với khu vườn nhỏ vừa đảm bảo sự riêng tư nhất định vừa mang đến cảm giác thoải mái, yên tĩnh. Khu vườn nhỏ này cũng thông với tầng trên cùng của ngôi nhà.







Bản vẽ kiến trúc các tầng ngôi nhà


-
Mẫu nhà 2 tầng nông thôn đơn giản, hiện đại
CafeLand – Với không gian thông thoáng, chi phí vừa phải, kiểu dáng đơn giản nhưng hiện đại, mẫu nhà 2 tầng nông thôn ngày càng được nhiều người lựa chọn.
-
Giải mã ngôi nhà vừa xanh vừa ngập ánh sáng ở Q. Tân Phú
CafeLand - Ngôi nhà với nhiều ánh sáng và cây xanh tọa lạc tại Q, Tân Phú, TP. Hồ Chí Minh.
-
Ngôi nhà MeMo với khu vườn trên cao đa cấp độ
CafeLand - Đội kiến trúc sư BAM! Arquitectura đã thiết kế một ngôi nhà bê tông hiện đại ở San Isidro, Argentina tên là MeMo với lớp áo kiến trúc độc lạ.
-
Nhà Việt nhỏ hẹp tràn ngập cây xanh như công viên trên báo ngoại
CafeLand - Ngôi nhà nằm tại Sài Gòn ở khu đất thiếu cây xanh, hay ngập lụt và ô nhiễm. Chình vì thế các KTS đã mang nhiều cây xanh vào không gian hẹp tựa như công viên nhỏ trong thành phố với mong muốn ý tưởng "tòa nhà xanh" sẽ lan rộng ra thế giới....
-
Biến chiếc xe buýt hết đát thành căn nhà hai tầng
CafeLand - “Đống phế liệu” bỏ đi được rao bán trên mạng với giá 144 triệu đồng, được Adam Collier-Woods ở Brighton (Anh) mua về “tút” lại, biến thành nơi ở giữa rừng cho những du khách thích khám phá trải nghiệm. ...
