
Sau một thời gian dài gặp gỡ và thảo luận với chủ đầu tư, cuối cùng kiến trúc sư đã đưa ra sự thay đổi đột phá trong phong cách thiết kế của mình nhằm tiếp cận thị trường tiềm năng nhất tạị khu vưc Miền Tây.

Công trình được lấy cảm hứng từ phong cách công nghiệp, đặc biệt, với mong muốn tạo ra một giá trị lâu bền và sức hấp dẫn độc nhất vô nhị trên thị trường café tại Cần Thơ.

Quán café cũng đã tô điểm thêm hình ảnh hiện đại, sống động và náo nhiệt của một phần thành phố trẻ, năng động nhất nhì trong số các tỉnh Miền Tây sông nước.

Tận dụng hình ảnh container với tông màu cam làm chủ đạo và màu xanh da trời làm phản chiếu, quán café đã tạo ra những giá trị kiến trúc bắt mắt và hấp dẫn, biến vị trí rộng lớn thành cửa hàng café nổi bật nhất trên con đường Mạc Thiên Tích của Thành phố Cần Thơ.

Mặt tiền quán café ấn tượng với cách bài trí đơn giản, một không gian hiện đại dành cho những du khách thích sự trải nghiệm mới lạ, cá tính.

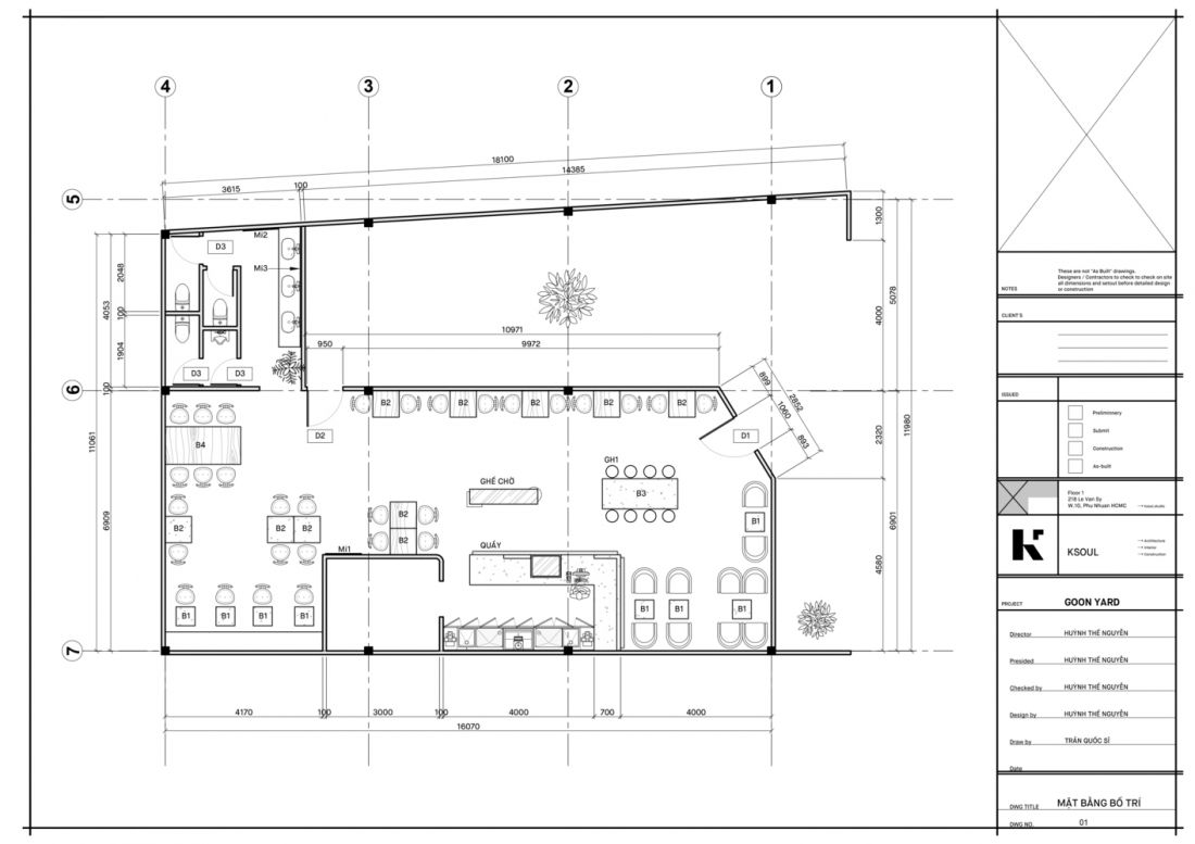
Bản vẽ kiến trúc quán cafe

(Ảnh: KSOUL Studio)
-
Độc lạ với ý tưởng lò gạch treo bên trong nhà hàng ở Hà Nội
CafeLand - Vị trí của công trình được thiết kế mới là khu vực có mật độ cao ốc tập trung văn phòng và khu dân cư cùng với một số trục đường lớn nối liền các thành phố lân cận ở Hà Nội.
-
Nhà chung sân 3 thế hệ ở Hà Nội: Nghệ thuật chia không gian tối giản trên đất 58m²
Sống chung trên một mảnh đất với cha mẹ nhưng vẫn muốn có một không gian riêng tư, tiện nghi cho gia đình nhỏ của mình là bài toán phổ biến tại các đô thị lớn. Trên khu đất vỏn vẹn 5,8m x 10m nằm nép mình sau khoảng sân chung tại Hà Nội, một ngôi nhà...
-
Nhà 3 tầng Phan Rang: Hy sinh 30% diện tích thuần hóa nắng gió miền Trung
Phan Rang đón người ta bằng cái nắng gắt của vùng biển vịnh và những ngôi nhà phố hẹp dài thường vô tình trở thành những hộp nhiệt bí bách. Nhưng bước qua cánh cửa của ngôi nhà này là một cảm giác thư thái đến bất ngờ ập tới. Bằng cách cắt lại 30% qu...
-
Nhà gạch cánh bướm Quảng Ninh: Giải pháp vỏ bọc 3 lớp và nông nghiệp thẳng đứng
Nằm tiếp giáp với vùng đô thị mới tại thị trấn Mạo Khê, giữa những mảnh ruộng lâu đời, một khối hộp mang tên CUBE xuất hiện như một lời giải thông minh cho bài toán chuyển dịch nông thôn. Bằng cách dựng đứng những khoảng sân và xếp lớp hệ vỏ bọc, côn...
-
Nhà lô góc Nha Trang: Nghệ thuật phép trừ để sở hữu lõi xanh xuyên suốt
Trong bối cảnh đất chật người đông, đa số chủ nhà thường tìm cách tận dụng từng centimet vuông để xây dựng. Thế nhưng, ngôi nhà 2 mặt tiền này lại chọn cách đi ngược trong sự tiết chế. Thay vì lấp đầy khu đất góc phố bằng bê tông, công trình chấp nhậ...
-
Nhà 5 tầng Thái Bình lột xác với mặt tiền như thảm thực vật bay lơ lửng giữa trời
Ngôi nhà tại Thái Bình đã chọn cách phản kháng mang cả cánh đồng lên cao. Với triết lý không chỉ giải quyết bài toán ở và cho thuê, mà còn kiến tạo một bức rèm thực vật lơ lửng, tự cung tự cấp rau xanh và gắn kết tình làng nghĩa xóm qua những mầm cây...
