.jpg)
Kiến trúc bao quanh quan cảnh thiên nhiên với dãy núi, sông nước xanh rì. Người dân sống nơi đây phần lớn là dân tộc Thái.

Với khu vực toàn núi hiểm trở gây khó khăn cho việc đi lại, ảnh hưởng lớn đến đời sống của bà con đặc biệt là việc học sinh đến trường lại càng khó khăn hơn. Hiện trạng ban đầu cơ sở vật chất của ngôi trường xuống cấp nghiêm trọng, lớp học thiếu nhiều đồ dùng.

Mục tiêu của dự án này là cải tạo ngôi trường lại để mang đến không gian học tập thoải mái, thiết kế đáp ứng các tiêu chuẩn về chiếu sáng, thông gió, cách âm, đặc biệt học sinh có thể an tâm đến trường thoải mái trong điều kiện thời tiết khắc nghiệt.

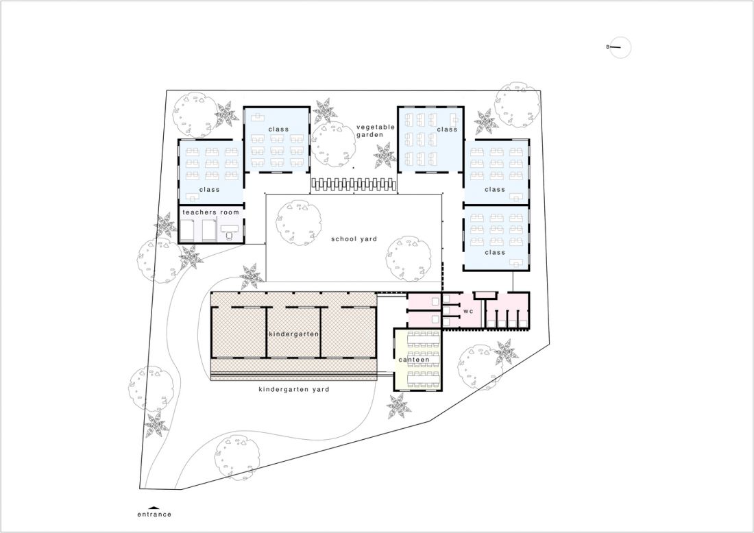
Mảnh đất cải tạo ngôi trường được chia làm 2 khu gồm có trường mẫu giáo và trường tiểu học để tiết kiệm chi phí. Khối nhà hiện hữu được cải tạo bằng cách kết nối với tòa nhà mới thành một tổng thể chung, đan xen đó là các khoảng trống, sân chơi.

Trường tiểu học và trường mẫu giáo được phân chia lối vào và sân chơi riêng. Trong khi đó các khối chức năng được bố trí theo hướng Bắc – Nam để tránh bức xạ mặt trời chiếu từ Đông và Tây. Các khối hình lập phương tại từng lớp học sẽ có sự liên kết với khu sân chơi, vì vậy sẽ mở ra khung cảnh sân trường đẹp, thoáng, như tranh vẽ, thích hợp cho các hoạt động ngoài trời hay các hoạt động xã hội khác.

Công trình sử dụng ngôn ngữ thiết kế phù hợp với kiến trúc địa phương và có sự cân đối. Khối lượng thi công đơn giản và có sự gắn kết với các chi tiết như điểm nhấn cửa ra vào nhiều màu sắc, tường gạch tạo sự thân thiện cho trẻ. Kết cấu thép nhẹ và mái nhà làm bằng kim loại cách nhiệt màu xanh.

Để giảm lượng khí thải carbon và tăng khả năng cách nhiệt, gạch được sử dụng nhằm giúp cân bằng không khí từ trong ra ngoài khi khí hậu thay đổi.

Với mong muốn biến ngôi trường thành nơi yêu thích của các em, kiến trúc sư đã thiết kể khu vực chào cờ trở thành tâm điểm với những đường mái nhấp nhô bao quanh các khu học và sơn những màu sắc tươi vui.

Bản vẽ kiến trúc ngôi trường sau khi cải tạo

(Nguồn hình: 1+1 Architects)
-
Giải pháp xây nhà phố trong khu tái định cư chỉ 800 triệu tại Nha Trang
CafeLand - Ngôi nhà có diện tích 120m2 nằm trong chương trình tái định cư ở thành phố Nha Trang.
-
Nhà phố ở TPHCM: Thiết kế may đo làm sàn diễn cho ký ức 10 năm
Ngôi nhà rộng 10m x 17,5 m tại TP.HCM này được kiến tạo từ lời gửi gắm của một gia chủ đã dành trọn 10 năm để gom nhặt từng món đồ trang trí, từng chiếc ghế, chiếc bàn lưu dấu thời gian theo phong cách Indochine hiện đại để làm một bảo tàng ký ức sốn...
-
Nhà chung sân 3 thế hệ ở Hà Nội: Nghệ thuật chia không gian tối giản trên đất 58m²
Sống chung trên một mảnh đất với cha mẹ nhưng vẫn muốn có một không gian riêng tư, tiện nghi cho gia đình nhỏ của mình là bài toán phổ biến tại các đô thị lớn. Trên khu đất vỏn vẹn 5,8m x 10m nằm nép mình sau khoảng sân chung tại Hà Nội, một ngôi nhà...
-
Nhà 3 tầng Phan Rang: Hy sinh 30% diện tích thuần hóa nắng gió miền Trung
Phan Rang đón người ta bằng cái nắng gắt của vùng biển vịnh và những ngôi nhà phố hẹp dài thường vô tình trở thành những hộp nhiệt bí bách. Nhưng bước qua cánh cửa của ngôi nhà này là một cảm giác thư thái đến bất ngờ ập tới. Bằng cách cắt lại 30% qu...
-
Nhà gạch cánh bướm Quảng Ninh: Giải pháp vỏ bọc 3 lớp và nông nghiệp thẳng đứng
Nằm tiếp giáp với vùng đô thị mới tại thị trấn Mạo Khê, giữa những mảnh ruộng lâu đời, một khối hộp mang tên CUBE xuất hiện như một lời giải thông minh cho bài toán chuyển dịch nông thôn. Bằng cách dựng đứng những khoảng sân và xếp lớp hệ vỏ bọc, côn...
-
Nhà lô góc Nha Trang: Nghệ thuật phép trừ để sở hữu lõi xanh xuyên suốt
Trong bối cảnh đất chật người đông, đa số chủ nhà thường tìm cách tận dụng từng centimet vuông để xây dựng. Thế nhưng, ngôi nhà 2 mặt tiền này lại chọn cách đi ngược trong sự tiết chế. Thay vì lấp đầy khu đất góc phố bằng bê tông, công trình chấp nhậ...
