
Mảnh đất có diện tích đất rộng trong đó diện tích xây dựng là 250m2 là không gian sinh hoạt chính bao quanh khoảng sân trước và sân sau. Kiến trúc sư đã cố gắng đưa ra giải pháp thiết kế nhà sao cho gia chủ cảm giác luôn thoải mái và an tâm mỗi khi trở về nhà.

Với nhiều người, đặc biệt là phụ nữ sống một mình trong ngôi nhà rộng sẽ luôn cảm giác bất an và buồn chán, tuy nhiên ngôi nhà đã khắc phục được hạn chế này bằng cách sử dụng các hình khối kiến trúc đan xen với thiên nhiên, trong đó không có vách ngăn, tường thay thế bằng các cửa kính bản lớn để nữ gia chủ dễ dàng quan sát bất cứ ở đâu dù trong hay ngoài nhà.

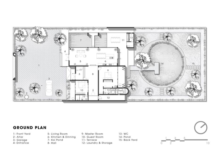
Ngay cả lối vào nhà cũng được tiết chế một cách thuận tiện và nhanh nhất khi gia chủ vừa đỗ xe vào gara là có thể đặt chân ngay tại sảnh trung tâm nhà.

Khu vực bếp và phòng ăn thoáng đãng hướng nhìn ra khoảng sân tràn đầy mảng xanh bên ngoài.

Phòng ngủ, phòng khách và bếp, phòng ăn đều thay tường bằng cửa kính bản lớn có thể mở rộng kết nối các hoạt động giữa con người với thiên nhiên bên ngoài.

Khu vực hồ cá Koi là không gian thư giãn yêu thích nhất của gia chủ được bố trí từ trong ra ngoài, dọc theo phòng khách và phòng ăn – nơi diễn ra các hoạt động của gia chủ và những người khách thân quen đến chơi.

Với cách bố trí hồ cá Koi này ngôi nhà sẽ luôn điều hòa nhiệt độ vào những ngày nắng nóng.

Chỉ cần đứng ngay giữa nhà, gia chủ có thể quan sát và di chuyển đến các không gian khác một cách dễ dàng và thuận tiện.
Ngoài ra, ngay tại sảnh trung tâm nhà còn được bố trí giếng trời giúp ánh sáng tự nhiên chiếu xuống không gian bên dưới và đối lưu không khí, kết hợp với hồ cá Koi sẽ làm cho toàn bộ ngôi nhà trở nên mát mẻ hơn.

Phòng ngủ, kiến trúc sư bố trí thêm một lớp cửa chớp nhằm đảm bảo an toàn cho gia chủ vào ban đêm.

Ngoài ra khoảng sân trước rộng rãi, thông thoáng chủ nhân yên tâm dễ dàng di chuyển xe ra vào dễ dàng.

Bên cạnh phòng ngủ dành cho khách thì khoảng sân sau thông với phòng ngủ Master là nơi dành cho hoạt động riêng tư của gia chủ được thiết kế lối đi ra hồ sen thuận tiện để gia chủ sinh hoạt thiền định và đời sống tâm linh.

Bản vẽ kiến trúc ngôi nhà như resort hoàn thiện trong 6 tháng khoảng 3.5 tỉ đồng tại Bình Dương.

(Nguồn: Story Architecture)
-
Nhà 60m2 đậm nét Miền Tây của gia chủ độc thân bỏ phố về quê tại Cao Lãnh
Ngôi nhà 60m2 nằm trên con đường mới mở nối vào khu dân cư ở xã Tân Thuận Tây, ngoại ô thành phố Cao Lãnh, tỉnh Đồng Tháp. Ngoài những nhu cầu tối thiểu, ngôi nhà được thiết kế vừa để ở vừa là nơi làm việc.
-
Ngôi nhà Đông Dương của người viễn xứ giao hưởng giữa hơi thở hiện đại và di sản Hội An
Nằm trên dải đất hẹp giữa biển Đông và sông Đế Võng, ngôi nhà tại An Bàng của gia chủ người nước ngoài là kết tinh của một tình yêu với di sản Hội An như quê hương thứ hai. Bằng cách tái hiện những mảng tường vàng, mái ngói và những khoảng hiên lộng ...
-
Nhà vườn ven sông Hà Nội: Khi giải pháp xếp chồng bồi đắp nên vẻ đẹp mộc bản
Nằm yên bình tại nơi hợp lưu của hai dòng sông mang nặng phù sa, ngôi nhà là một nốt lặng đầy tinh tế giữa nhịp độ đô thị hóa hối hả của vùng ven Thủ đô. Bằng cách ứng dụng triết lý bồi đắp và những lớp cắt không gian thông minh, ngôi nhà đã trở thàn...
-
Farmstay 5G Đồng Nai 1,1 tỷ đồng: Cuộc cách mạng 5 giảm cho nhà ở nông thôn đương đại
Rời xa những khối bê tông ngột ngạt của đô thị, tại Đồng Nai hiện diện một mô hình Farmstay độc đáo – nơi kiến trúc không chỉ là nơi trú ngụ mà còn là một phần của hệ sinh thái nông nghiệp. Bằng cách ứng dụng giải pháp bán tiền chế 5G với triết lý 5 ...
-
Kiến trúc nhà mái vòm Bến Tre với nghệ thuật nhấc bổng tầm nhìn bên dòng sông
Một công trình rộng 430m2 tại Bến Tre như một thực thể sống động giữa thiên nhiên với giải pháp nương tựa vào những rặng dừa và dùng bốn khối vòm nhấp nhô để đối thoại với dòng sông lộng gió....
-
Nhà bê tông biết thở giữa Huế và triết lý sống giàu có từ những khoảng trống
Nằm giữa vùng lõi sôi động của phường Vĩ Dạ, Huế – nơi bao quanh bởi tiếng ồn của nhà hàng và khách sạn ngôi nhà hiện lên không hào nhoáng, mà là một cuộc thực nghiệm về cấu trúc hình học chữ X, tạo nên một "ngôi nhà trong ngôi nhà" bằng bê tông trần...
