
Nhìn từ bên ngoài, ngôi nhà bao gồm năm khối bê tông nằm nghiêng có kích thước và tỉ lệ khác nhau được sắp xếp, góp thành một tòa.
.jpg)
Cầu thang hình xoắn ốc trở thành trung tâm và là điểm nhấn đặc biệt của cả căn nhà.

Cầu thang hình xoắn ốc với hình thức điêu khắc cong này là sự dày công của tổng cộng là 630 miếng ván ép cắt tinh vi được ghép lại với nhau và dán tại chỗ bằng thủ công để tạo ra độ chính xác nhất.

Một điều đặc biệt không kém của căn nhà chính là tài hoa của người nghệ sĩ khi tạo ra sự tương phản của hai tông màu chính, màu xám của bê tông đúc, đá phiến Na Uy để tạo ra bức tường, sàn nhà và màu vàng nâu của các chi tiết gỗ thông qua nội thất.

Căn bếp khá ấm cúng và thoáng đãng.

Với mong muốn tạo ra cái gì đó mới mẻ và hiện đại nhất đã giúp nhà thiết kế tạo nên một ngôi nhà hấp dẫn này. Điều quan trọng là duy trì được phong cách và sự nhất quán trong cả năm tòa.

Một cánh cửa trượt giúp ngăn cách giữa phòng bếp và phòng khách. Bên cạnh một chiếc ghế tựa màu đen với chiếc bàn nhỏ xinh được bố trí ngay cửa sổ cùng chậu cây xanh - tạo nên một góc thư giãn, đọc sách vô cùng lý tưởng, thú vị dành cho gia chủ.

Không gian sân thượng được bố trí, sắp xếp cũng không kém hấp dẫn để thư giãn.


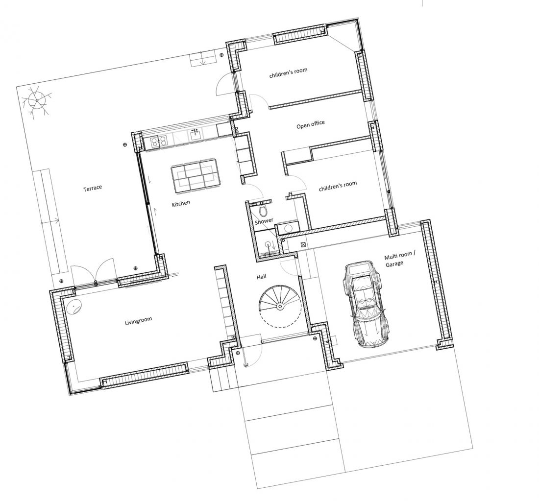
Sơ đồ chi tiết toàn bộ căn nhà đặc biệt ở Đan Mạch này.
-
Lạ mắt với ngôi nhà được trang trí phong cách tối giản
CafeLand - Ngôi nhà dưới đây hoàn toàn bị thu hút khi vừa sử dụng phong cách trang trí hoàn toàn mới lại vừa kết hợp ánh sáng đan xen, nội thất sáng tạo, tạo nên không gian sống hiện đại, tinh tế.
-
Mô hình nhà nổi 250 triệu: giải pháp an cư sống chung với lũ bền vững tại Việt Nam
Năm vừa qua, Việt Nam oằn mình gánh chịu 17 cơn bão liên tiếp, khiến nhiều tỉnh thành chìm trong biển nước. Khi thiên tai không còn là chu kỳ mà trở thành mối đe dọa thường trực, câu hỏi làm sao để bảo vệ con người trên chính mảnh đất cha ông đã thúc...
-
Kiến trúc nhà module chống lũ lắp ghép 25 ngày dưới 53 triệu đồng
Không phải là một ngôi nhà cố định, mà là một khối module lắp ghép 3.3m x 6.6m, được thiết kế để chống chọi lũ lụt cao 1,5m. Hãy cùng khám phá cách mô hình này được lắp ráp chỉ trong 25 ngày với chi phí dưới 53 triệu đồng chỉ bằng vật liệu có sẵn tại...
-
Khám phá tòa tháp in 3D cao nhất thế giới tại Thụy Sĩ
Tor Alva - tòa tháp cao 30m được mô phỏng theo một chiếc bánh, mới được khánh thành tại một ngôi làng nhỏ trên núi ở Thụy Sĩ.
-
Khám phá ngôi nhà như hang động được giấu dưới lòng đất tại Nhật Bản
Tọa lạc tại thành phố Ube, tỉnh Yamaguchi, công trình độc đáo này vừa là nhà ở vừa kinh doanh nhà hàng của đầu bếp người Nhật. Dự án được kiến trúc sư Junya Ishigami thiết kế, tạo ra bằng cách đổ bê tông vào các lỗ trên mặt đất....
-
Khám phá ngôi nhà gạch với thiết kế tường gạch lượn sóng độc đáo tại Ấn Độ
House of Dancing Cactus là một ngôi nhà độc lập nổi tiếng tại Pondicherry, Ấn Độ, có diện tích 110m2. Dự án được thiết kế bởi văn phòng kiến trúc Art&Architecture, mang đến một không gian sống đầy sáng tạo....
