
Theo chia sẻ của kiến trúc sư, nơi đây từ nhiều năm trước chỉ là vùng quê nghèo, không có nhiều tiện nghi. Khi cuộc sống ngày càng phát triển, những người con nơi đây đã trở thành những cư dân thành phố nhưng vẫn không quên hình ảnh và cảm giác sống dưới mái tôn, tường gạch loang lỗ và lũy tre làng đã gắn bó với họ.

Đất nước phát triển và họ đổ xô đến các khu đô thị, làm việc trong những tòa cao ốc hiện đại được bao bọc xung quanh là kính, máy lạnh và các thiết kế đơn điệu khiến có cảm giác thiếu cảm xúc và dần dần họ cảm thấy giống robot hơn.

Ban đầu khu đất rộng lớn này có một số ngôi nhà cổ, cỏ trắng xóa, những bụi tre và các loại thực vật tự nhiên xung quanh ít có sự tác động của con người. Lúc này, ý tưởng thiết kế của kiến trúc sư là gợi lên cảm giác xưa cũ của ngôi làng trong văn phòng hiện đại như một phần của thiên nhiên. Một diện mạo mới, nhẹ nhàng, tự nhiên và có nhiều thiên nhiên xung quanh.

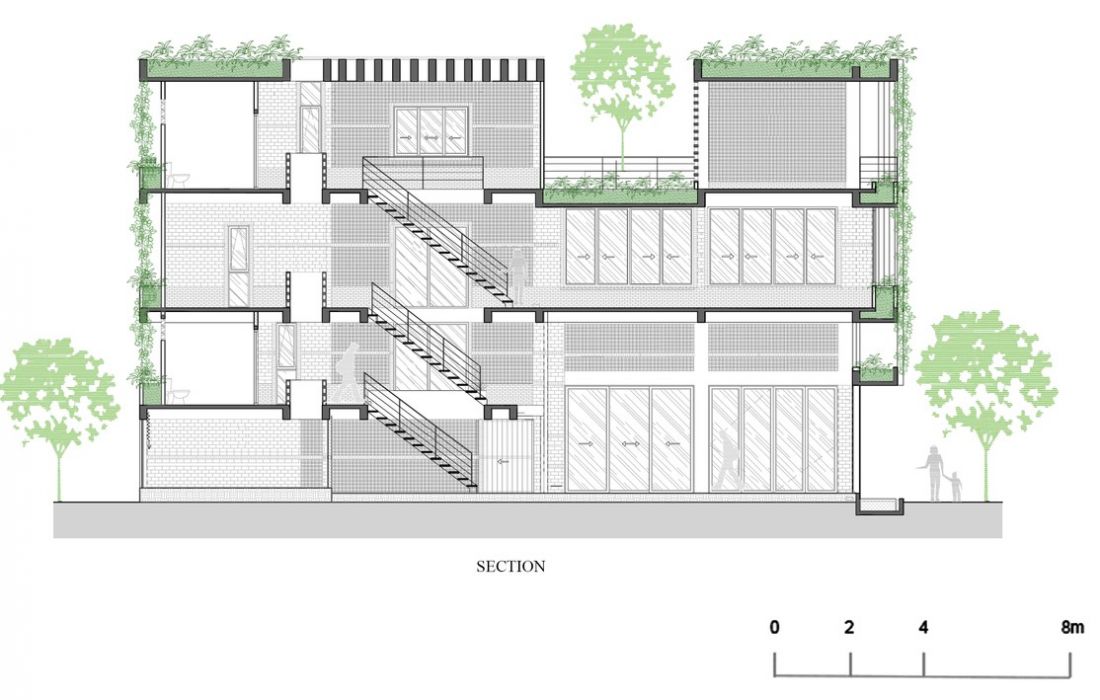
Cây chuối, bụi trúc vàng và các loại cây bản địa đã được bố trí ở tầng 1 và tầng 2 nằm hướng Tây Nam của văn phòng. Ngoài ra còn có hệ thống tưới nước nhỏ giot tự động.

Cỏ lau được chuyển lên trồng trên mái nhà để giảm nhiệt cho không gian các tầng bên dưới.

Tầng 3, 4 là văn phòng chính, phòng họp và phòng ăn trưa rộng mở với một nhà bếp. Hàng rào cây bao quanh những khoảng đất thoáng tạo bóng mát và vẻ đẹp tự nhiên.

Để tái tạo không khí của văn phòng nông thôn kiến trúc sư đã sử dụng gạch không nung, sàn nhà được lát gạch bê tông mài trang trí với tông màu xám nhạt. Phần trần nhà xi măng có dạng gợn sóng mang lại cảm giác thân quen.

Làm việc trong văn phòng hiện đại này sẽ gợi lên cảm giác nhớ về thời thơ ấu, thời mà cuộc sống thật đơn giản. Luồng không khí trong lành từ biển thổi vào mang lại cảm giác dễ chịu, trong lành.

Khi thế hệ trẻ ngày nay có thể rất ít hoặc không có thời gian ở nông thôn, qua công trình này kiến trúc sư mong muốn mang lại tinh thần thoải mái, tăng hiệu quả cao trong công việc và giảm chi phí sử dụng năng lượng hàng ngày trong một không gian văn phòng đậm chất nông thôn.

Mặt cắt bản vẽ kiến trúc văn phòng đậm chất nông quê

-
Bên trong nhà phố 3 tầng có nhiều không gian vòm
CafeLand - Đây là ngôi nhà của một gia đình có 3 thành viên gồm 2 vợ chồng và bé gái nằm trong khu vực có mật độ dân cư cao ở quận Bình Thạnh, gần trung tâm TP.HCM
-
Nhà chung sân 3 thế hệ ở Hà Nội: Nghệ thuật chia không gian tối giản trên đất 58m²
Sống chung trên một mảnh đất với cha mẹ nhưng vẫn muốn có một không gian riêng tư, tiện nghi cho gia đình nhỏ của mình là bài toán phổ biến tại các đô thị lớn. Trên khu đất vỏn vẹn 5,8m x 10m nằm nép mình sau khoảng sân chung tại Hà Nội, một ngôi nhà...
-
Nhà 3 tầng Phan Rang: Hy sinh 30% diện tích thuần hóa nắng gió miền Trung
Phan Rang đón người ta bằng cái nắng gắt của vùng biển vịnh và những ngôi nhà phố hẹp dài thường vô tình trở thành những hộp nhiệt bí bách. Nhưng bước qua cánh cửa của ngôi nhà này là một cảm giác thư thái đến bất ngờ ập tới. Bằng cách cắt lại 30% qu...
-
Nhà gạch cánh bướm Quảng Ninh: Giải pháp vỏ bọc 3 lớp và nông nghiệp thẳng đứng
Nằm tiếp giáp với vùng đô thị mới tại thị trấn Mạo Khê, giữa những mảnh ruộng lâu đời, một khối hộp mang tên CUBE xuất hiện như một lời giải thông minh cho bài toán chuyển dịch nông thôn. Bằng cách dựng đứng những khoảng sân và xếp lớp hệ vỏ bọc, côn...
-
Nhà lô góc Nha Trang: Nghệ thuật phép trừ để sở hữu lõi xanh xuyên suốt
Trong bối cảnh đất chật người đông, đa số chủ nhà thường tìm cách tận dụng từng centimet vuông để xây dựng. Thế nhưng, ngôi nhà 2 mặt tiền này lại chọn cách đi ngược trong sự tiết chế. Thay vì lấp đầy khu đất góc phố bằng bê tông, công trình chấp nhậ...
-
Nhà 5 tầng Thái Bình lột xác với mặt tiền như thảm thực vật bay lơ lửng giữa trời
Ngôi nhà tại Thái Bình đã chọn cách phản kháng mang cả cánh đồng lên cao. Với triết lý không chỉ giải quyết bài toán ở và cho thuê, mà còn kiến tạo một bức rèm thực vật lơ lửng, tự cung tự cấp rau xanh và gắn kết tình làng nghĩa xóm qua những mầm cây...
