
Chủ nhà là phật tử mong muốn có một tổ ấm yên bình, thanh tĩnh và hoàn toàn thoát khỏi không khí hối hả xô bồ tại các thành phố lớn. Đây thực sự không phải là một ngôi nhà mà đó là một thiền viện.



Một nơi không có giới hạn trong công việc, dù đứng ở nơi nào chúng ta cũng có thể quan sát được các góc còn lại, tất cả các thành viên đều thấy nhau, lắng nghe nhau, gọi nhau và nghĩ về nhau.



Ngôi nhà thi công bằng phương pháp lắp ráp, chỉ xây tường bao xung quanh, còn lại là câu chuyện liên kết của gỗ, sắt, thạch cao, cemboard… vật liệu sử dụng mộc mạc, tự nhiên, gạch không nung để trần, gỗ chỉ quét dầu bảo vệ, cemboard không sơn, sắt giữ nguyên màu kim loại…




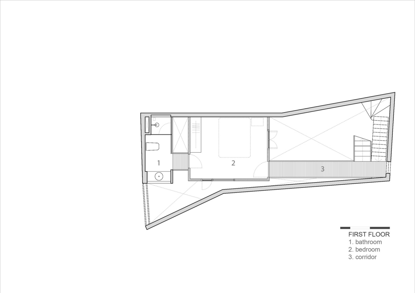
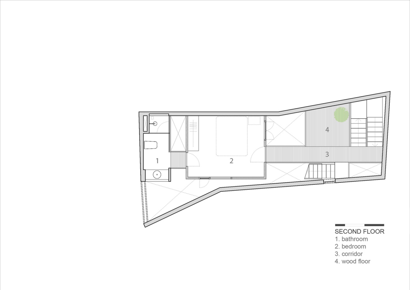
Bản vẽ kiến trúc ngôi nhà




Xem thêm: Nhà phố giật cấp siêu thông thoáng giữa trung tâm Sài Gòn
-
Homestay phong cách tối giản ở ven biển Phước Hải
CafeLand - Công trình mang lối sống tối giản hướng về thiên nhiên thuần khiết. Công trình tọa lạc tại một làng chài nhỏ, ven biển Phước Hải, Vũng Tàu, Việt Nam.
-
Hành trình hồi hương: Điểm chạm thiên nhiên trong nhà 2 tầng Hà Nội cho người cao tuổi
Rời bỏ những khối bê tông bức bối của nội đô, một cặp vợ chồng lớn tuổi đã chọn quay về mảnh đất tổ tiên bên triền sông Hồng để tìm lại nhịp sống chậm rãi. Trên diện tích khiêm tốn 6m x 20m, kiến trúc sư đã khéo léo tái hiện lại tinh thần của nếp nhà...
-
Nhà phố TP.HCM: Hệ mái V độc bản và trục xương sống vườn đôi xuyên suốt
Ngôi nhà hiện lên như một lời phản kháng tĩnh lặng qua những khối hộp chữ nhật san sát nhau tạo nên sự đơn điệu và ngột ngạt. Không chạy theo những diện mạo hào nhoáng, công trình chọn quay về với những giá trị nguyên bản của mái hiên, bình phong và ...
-
Nghệ thuật mặt tiền lớp kép và cầu thang xuyên sáng cho nhà hẻm Tân Phú
Trong những con hẻm chật hẹp tại quận Tân Phú, nơi mật độ xây dựng dường như đã bóp nghẹt mọi khoảng thở, một ngôi nhà chiều ngang khiêm tốn nhưng lại ưu thế về chiều dài đã xuất hiện như một lời hồi đáp nhẹ nhàng nhưng đầy sức nặng....
-
Nhà phố Vũng Tàu: Nghệ thuật sắp đặt 5 sân vườn liên hoàn cho gia đình 3 thế hệ
Trong bối cảnh đô thị hóa nén chặt tại Vũng Tàu, ngôi nhà dành cho gia đình 3 thế hệ xuất hiện như một lời giải đầy cảm hứng cho bài toán gắn kết con người và khí hậu. Bằng cách sử dụng hệ thống 5 khoảng sân đan xen, một cấu trúc biết thở nơi ánh sán...
-
Nhà phố hai mặt tiền Biên Hòa: Nghệ thuật mở khoảng rỗng giữa giao lộ hẻm
Trong cái ngột ngạt của những bao diêm đô thị, nơi các tòa nhà chen chúc đến nghẹt thở, tại giao lộ của hai con hẻm nhỏ, một ngôi nhà phố 5m x 20m đã chọn cách làm ngược lại là tạo ra những khoảng hở để sống bằng cách sử dụng triết lý khoảng rỗng làm...
