
Nằm trong một ngôi làng nhỏ ven biển yên bình ở Vũng Tàu, ngôi nhà được thiết kế cho một gia đình gồm 3 thành viên, họ muốn rời thành phố nhộn nhịp để tìm đến một nơi yên bình sinh sống và bắt đầu kinh doanh homestay.

Giải pháp là tách tòa nhà thành hai phần với không gian xanh ở trung tâm trong khi tầng trệt được mở hoàn toàn.


Nhờ thiết kế tối giản và cắt giảm những vật dụng không cần thiết, ngôi nhà tạo ra năng lượng sống nhẹ nhàng khiến chủ nhà hoàn toàn hướng về thiên nhiên.



Thiết kế cung cấp giải pháp thông gió tự nhiên thuận tiện, mang lại ánh sáng mặt trời và không khí trong lành cho mọi góc nhà thường xuyên thấy tại những ngôi nhà phố dài và hẹp.



Nhà bếp và phòng ăn được đặt ở tầng lửng để tạo không gian riêng tư cho những khu vực này.

Các phòng ngủ có tầm nhìn mở rộng ra bờ biển qua các bức tường kính trong suốt, vì vậy cuộc sống tự nhiên trong nhà được kết nối tự nhiên với cuộc sống ven biển ngoài trời.

Phòng khách ở tầng trệt có một khoảng sân nhỏ, nơi chủ nhà có thể thư giãn trong không gian nhiều cây xanh và ánh sáng, kiến trúc này phần nào gợi lại lối sống truyền thống Việt Nam trong ngôi nhà hiện đại.


Bên cạnh đó, công trình còn sử dụng vật liệu tự nhiên chủ yếu là ở địa phương đã tạo ra sự kết nối thân thiện và bền vững giữa ngôi nhà và khu vực xung quanh.



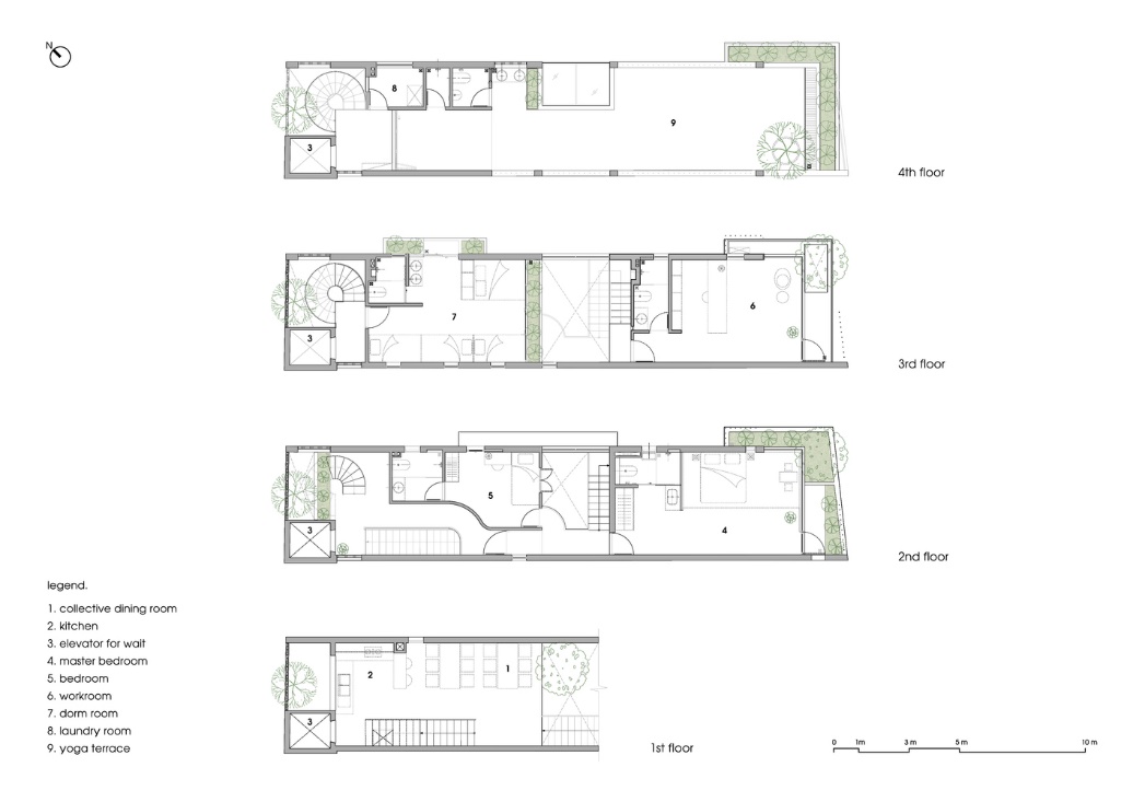
Bản vẽ kiến trúc các tầng của công trình
-
Nhà trong hẻm với mặt tiền gạch lỗ ở trung tâm Sài Gòn
Cafeland - Ngôi nhà nằm trong con hẻm nhỏ tọa lạc tại quận 1, khu vực được xem là vị trí đắt đỏ và nhộn nhịp nhất ở Thành phố Hồ Chí Minh.
.jpeg)