
Ý tưởng chính là tạo ra một không gian ấm cúng, yên bình cho gia đình với phong cách thiết kế kiến trúc đơn giản pha trộn với phong cách kiến trúc kiểu truyền thống của Việt Nam xưa.

Thông điệp này đã phần nào thể hiện trong cách trang trí trên tường, đầu giường phòng ngủ ở tầng 1, gạch lát sàn, hành lang và cầu thang đã mang đến cái nhìn dễ chịu, mát mắt, màu sắc hài hòa cho toàn bộ không gian.

Tổng thể ngôi nhà được bố trí như sau:
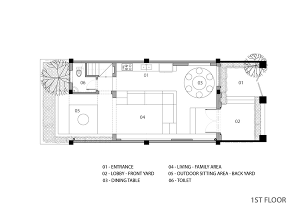
Tầng 1 - không gian sinh hoạt chung của gia đình có vườn trước và sau, ở giữa là không gian sinh hoạt chính được thiết kế như một phần của các khu chức năng bao quanh phòng khách, bếp ăn, và một WC nhỏ.

Các khu vực chức năng chính được phân chia không phân vùng mà thông qua việc sử dụng độ cao của sàn khác nhau, tạo cảm giác thú vị và không bị nhàm chán khi chủ nhà lưu thông trên cùng một tầng.

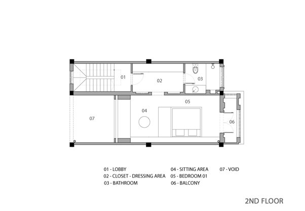
Tầng 2 – phòng ngủ chính của bố mẹ, để vào trực tiếp vào phòng ngủ chún ta sẽ đi qua phòng phòng để tủ quần áo, đối diện là phòng tắm riêng.

Căn phòng cũng đón nhận được luồng không khí trong lành và ánh sáng tự nhiên.

Từ trong căn phòng có ta có thể đứng tại ban công nhìn xuống đường hay nhìn qua cửa sổ để thấy khu vườn phía sau nhà.
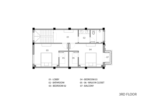
Tầng 3 – 2 phòng ngủ cho trẻ. Mỗi phòng ngủ đều có cửa sổ thông gió tự nhiên và phòng tủ quần áo riêng.

Bên ngoài là phòng tắm chung lớn và khu vực chậu rửa tiện lợi riêng biệt.

Tầng mái – tầng này được thiết kế để bố trí máy giặt và máy sấy khô cũng như phòng lưu trữ đồ gia dụng. Sân thương ngoài trời là sân phơi có bố trí hệ thống kỹ thuật.

Bản vẽ kiến trúc các tầng ngôi nhà
Tầng 1

Tầng 2

Tầng 3

Tầng mái

Xem thêm Video: Cải tạo nhà cũ thành không gian sống kiểu Nhật – Việt siêu sang
-
Nhà phố ví như thiền viện được báo Mỹ khen hết lời
CafeLand - Công trình là một không gian không có giới hạn trong thiết kế, một nơi yên bình thanh tịnh cho chủ nhân tại quận Bình Thạnh, TP.HCM.
-
Nếp nhà 2 tầng kiểu Nhật tại Đà Nẵng: Khoảng lặng xanh vỗ về trái tim mẹ
Một ngôi nhà hiện lên như một nốt lặng dịu dàng. Đó không chỉ là một công trình kiến trúc, mà là món quà chứa chan lòng hiếu thảo của ba người con dành tặng mẹ. Một không gian nơi những bức tường ngăn cách bị xóa nhòa, nhường chỗ cho sự kết nối giữa ...
-
Hành trình hồi hương: Điểm chạm thiên nhiên trong nhà 2 tầng Hà Nội cho người cao tuổi
Rời bỏ những khối bê tông bức bối của nội đô, một cặp vợ chồng lớn tuổi đã chọn quay về mảnh đất tổ tiên bên triền sông Hồng để tìm lại nhịp sống chậm rãi. Trên diện tích khiêm tốn 6m x 20m, kiến trúc sư đã khéo léo tái hiện lại tinh thần của nếp nhà...
-
Nhà phố TP.HCM: Hệ mái V độc bản và trục xương sống vườn đôi xuyên suốt
Ngôi nhà hiện lên như một lời phản kháng tĩnh lặng qua những khối hộp chữ nhật san sát nhau tạo nên sự đơn điệu và ngột ngạt. Không chạy theo những diện mạo hào nhoáng, công trình chọn quay về với những giá trị nguyên bản của mái hiên, bình phong và ...
-
Nghệ thuật mặt tiền lớp kép và cầu thang xuyên sáng cho nhà hẻm Tân Phú
Trong những con hẻm chật hẹp tại quận Tân Phú, nơi mật độ xây dựng dường như đã bóp nghẹt mọi khoảng thở, một ngôi nhà chiều ngang khiêm tốn nhưng lại ưu thế về chiều dài đã xuất hiện như một lời hồi đáp nhẹ nhàng nhưng đầy sức nặng....
-
Nhà phố Vũng Tàu: Nghệ thuật sắp đặt 5 sân vườn liên hoàn cho gia đình 3 thế hệ
Trong bối cảnh đô thị hóa nén chặt tại Vũng Tàu, ngôi nhà dành cho gia đình 3 thế hệ xuất hiện như một lời giải đầy cảm hứng cho bài toán gắn kết con người và khí hậu. Bằng cách sử dụng hệ thống 5 khoảng sân đan xen, một cấu trúc biết thở nơi ánh sán...
