
Ngôi nhà nằm trong một khuôn viên xanh mát với nhiều chức năng như biệt thự, khu vui chơi giải trí, sân tennis, quán café, hồ bơi và khu vườn.

Theo kiến trúc sư chia sẻ, công trình được thiết kế hướng đến giải pháp thông minh n chức năng trong 1 phân làm hai phần. Trong đó phần được xây dựng kiên cố là hàng hiên, mái ngói.

Mái ngói gấp chính là phần trung gian kết nối hai phần với nhau giúp giảm chiều cao công trình, ngoài ra còn có tác dụng che ánh nắng từ hướng Đông và hướng toàn bộ không gian sống vế phía sân vườn, bể bơi.

Phần mặt tiền cũng như lớp vỏ bên ngoài ngôi nhà được ốp tất cả bằng đá ong, khi kết hợp với mái ngói gấp sẽ giúp ngôi nhà có tính thẩm mỹ và bền vững hơn theo thời gian.

Bên cạnh ý tưởng thiết kế đột phá thì ngôi nhà không chỉ giúp gia chủ tận hưởng không gian sống vào những ngày cuối tuần mà còn biến những tiện ích bên trong ngôi nhà để phục vụ cho khu dân cư xung quanh.

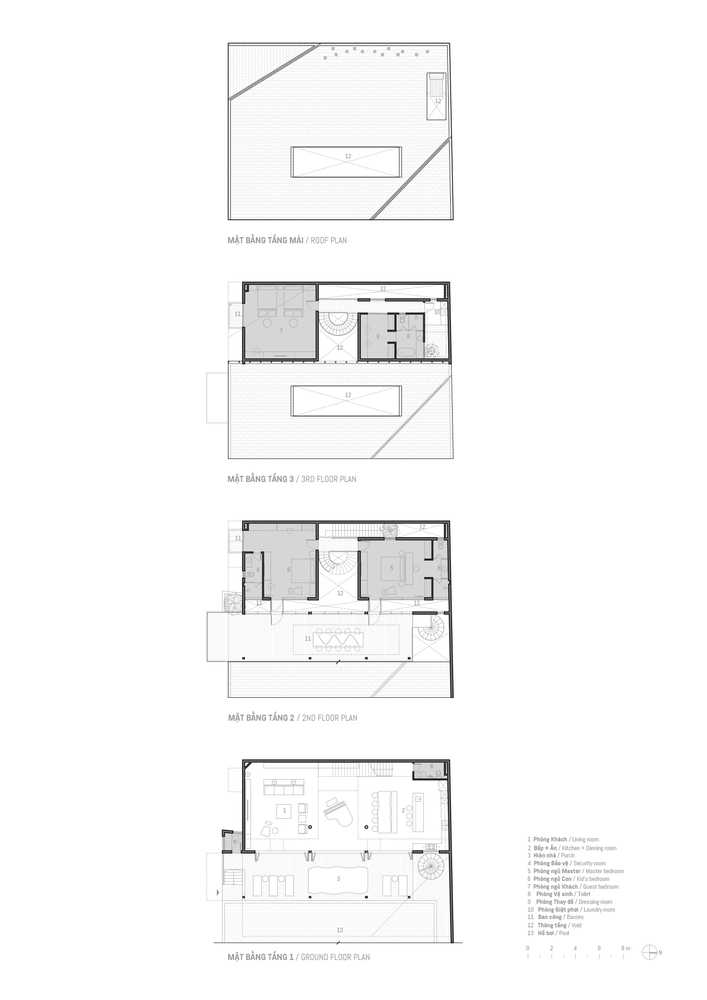
Bản vẽ kiến trúc nhà mái xếp 3 tầng đa chức năng tại Quận Bình Tân.

(Nguồn: MDA Architecture)
-
Nhà phố thương mại 2 trong 1 yên bình giữa lòng Hà Nội
CafeLand - Ngôi nhà phố thương mại 6 tầng nằm trong khu đô thị cao cấp Quận Cầu Giấy, Hà Nội.
-
Nếp nhà 2 tầng kiểu Nhật tại Đà Nẵng: Khoảng lặng xanh vỗ về trái tim mẹ
Một ngôi nhà hiện lên như một nốt lặng dịu dàng. Đó không chỉ là một công trình kiến trúc, mà là món quà chứa chan lòng hiếu thảo của ba người con dành tặng mẹ. Một không gian nơi những bức tường ngăn cách bị xóa nhòa, nhường chỗ cho sự kết nối giữa ...
-
Hành trình hồi hương: Điểm chạm thiên nhiên trong nhà 2 tầng Hà Nội cho người cao tuổi
Rời bỏ những khối bê tông bức bối của nội đô, một cặp vợ chồng lớn tuổi đã chọn quay về mảnh đất tổ tiên bên triền sông Hồng để tìm lại nhịp sống chậm rãi. Trên diện tích khiêm tốn 6m x 20m, kiến trúc sư đã khéo léo tái hiện lại tinh thần của nếp nhà...
-
Nhà phố TP.HCM: Hệ mái V độc bản và trục xương sống vườn đôi xuyên suốt
Ngôi nhà hiện lên như một lời phản kháng tĩnh lặng qua những khối hộp chữ nhật san sát nhau tạo nên sự đơn điệu và ngột ngạt. Không chạy theo những diện mạo hào nhoáng, công trình chọn quay về với những giá trị nguyên bản của mái hiên, bình phong và ...
-
Nghệ thuật mặt tiền lớp kép và cầu thang xuyên sáng cho nhà hẻm Tân Phú
Trong những con hẻm chật hẹp tại quận Tân Phú, nơi mật độ xây dựng dường như đã bóp nghẹt mọi khoảng thở, một ngôi nhà chiều ngang khiêm tốn nhưng lại ưu thế về chiều dài đã xuất hiện như một lời hồi đáp nhẹ nhàng nhưng đầy sức nặng....
-
Nhà phố Vũng Tàu: Nghệ thuật sắp đặt 5 sân vườn liên hoàn cho gia đình 3 thế hệ
Trong bối cảnh đô thị hóa nén chặt tại Vũng Tàu, ngôi nhà dành cho gia đình 3 thế hệ xuất hiện như một lời giải đầy cảm hứng cho bài toán gắn kết con người và khí hậu. Bằng cách sử dụng hệ thống 5 khoảng sân đan xen, một cấu trúc biết thở nơi ánh sán...
