
Gia chủ mong muốn có một ngôi nhà 3 tầng hội tụ đầy đủ một không gian ấm cúng cho 4 thành viên gồm vợ chồng và hai đứa con của họ.

Trước khi phác thảo ý tưởng, chủ nhà đã gợi ý đề xuất với nhóm kiến trúc là tạo nên một ngôi nhà khác biệt so với những ngôi nhà xung quanh trong khu đô thị đồng thời phải có sự kết nối giữa các thành viên trong gia đình.

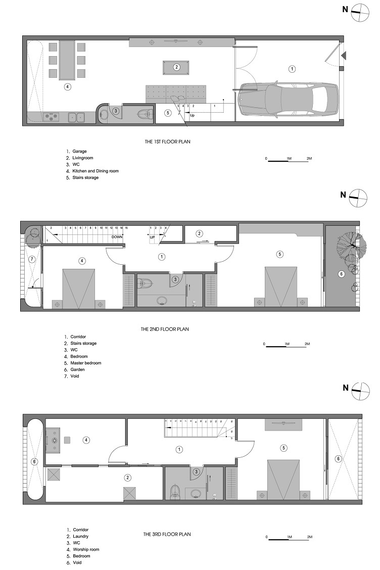
Sau khi cùng nhau thảo luận nội bộ, nhóm kiến trúc đã đưa ra giải pháp cho thiết kế là tập trung vào ba điểm chính. Đầu tiên là tạo dựng một mặt tiền với không gian mở có tầm nhìn thoáng nhưng vẫn đảm bảo sự riêng tư cho các thành viên trong ngôi nhà. Mặt tiền được làm bằng các thanh tròn 10mm có cấu trúc kiểu lưới vuông. Vì vậy, những thành viên trong nhà có thể vừa hoạt động vừa nhìn thấy bên ngoài mà vẫn mang lại cảm giác gần gũi với thế giới tự nhiên.

Tiếp theo là thiết kế một phong cách sống mới lạ cho không gian nội thất thông qua cách sắp đặt các nội thất làm sao để tạo nhiều khoảng trống trong nhà. Với cách này, nhóm kiến trúc đã thiết kế một tầng lửng ở giữa tầng một và tầng hai.

Mục đích của giải pháp này là tạo một khoảng trống lớn liên kết giữa phòng khách và phòng sinh hoạt chung. Ngoài ra, còn có những khoảng trống giữa các không gian khác tại các tầng để các thành viên có thể chia sẻ, gắn kết chặt chẽ hơn. Tại các khoảng trống này cũng đảm bảo ánh sáng tự nhiên và không khí trong lành vào ban ngày.

Cuối cùng, thiết kế sẽ tập trung vào sở thích của các thành viên như trồng cây và giữ cho khu vườn luôn xanh tươi. Khu vườn này khi kết hợp với hệ khung lưới giúp cho mặt tiền vừa khác biệt vừa ấn tượng.

Chính vì vậy, nhóm kiến trúc đã đặt tên cho ngôi nhà với cái tên là “Nhà lồng” vì các thiết kế đều dựa trên hình dạng của một cái lồng.

Sự lặp lại ý tưởng thiết kế này có thể nhìn thấy trong toàn bộ ngôi nhà từ mặt tiền lưới phía trước và phía sau, cửa ra vào chính đến đèn tre cũng làm bằng tay tại phòng khách.



Giải pháp mặt tiền và bản vẽ kiến trúc ngôi nhà 3 tầng


-
Tòa nhà hội tụ nhiều phong cách kiến trúc nổi tiếng tại quận 7, TP.HCM
CafeLand - Công trình là một tòa nhà 7 tầng tọa lạc tại vị trí đẹp gần trung tâm quận 7, TP.HCM trên hai miếng đất giống nhau có diện tích 4mx22m, mỗi góc nhìn ra công viên nhỏ, chủ sở hữu là anh em ruột.
-
Nhà Hóc Môn 80m2: Tối ưu không gian bằng kiến trúc Bauhaus và sắc cam đột phá
Một ngôi nhà phố 5m x 16m hoàn thành không hoa văn rườm rà, không chi tiết thừa thãi, công trình là một cuộc thực nghiệm về hình khối hình học thuần khiết, nơi vật liệu trung thực lên tiếng và sắc cam trở thành linh hồn kết nối công nghệ vào đời sống...
-
Nhà ống 80m2 TP.HCM ấn tượng với những vòm cong độc đáo
Giữa những khối nhà phố san sát tại TP.HCM, trên mảnh đất không vuông vức, dần hẹp về phía sau, có một ngôi nhà ống 4m x 20m không chọn cách phô diễn mà chọn cách mở về phía nội tâm. Kiến trúc sư đã kiến tạo bằng ngôn ngữ của những vòm cong, gạch kín...
-
Nhà phố Đà Nẵng khi không gian làm việc và ở cộng sinh để chữa lành tâm hồn
Một ngôi nhà chọn ẩn mình nơi cuối con hẻm nhỏ để làm một cuộc thực nghiệm về sự chữa lành. Trên diện tích vỏn vẹn 80m², công trình không chỉ là nơi trú ngụ của ba thế hệ mà còn là một phòng thí nghiệm kiến trúc, nơi không gian làm việc và đời sống r...
-
Nhà Hà Nội xoay hướng thông minh để giải nhiệt hướng Tây và đón gió lành
Tại một ngôi làng ngoại ô Hà Nội, một ngôi nhà của gia đình 3 thế hệ. Không chọn vẻ ngoài hào nhoáng hay nội thất đắt tiền, ngôi nhà chinh phục người xem bằng một cú đảo chiều hướng đất đầy táo bạo để tìm kiếm sự riêng tư, cùng triết lý sống thực tế ...
-
Nhà Thủ Đức tái tạo năng lượng theo phong cách hiện đại Phương Đông
Khám phá một ngôi nhà được thiết kế để tái tạo năng lượng, hỗ trợ sức khỏe tinh thần và tìm thấy sự cân bằng bên trong. Hãy cùng chiêm ngưỡng cách tỷ lệ cân bằng, hình học và bảng màu trung tính tinh tế tạo nên một không gian không chỉ đẹp mà còn sâu...
