
Đây là tổ ấm của một gia đình nhỏ chuyển từ làng xóm thanh bình nhiều cây xanh vào khu đô thị mới với nhiều hạn chế về không gian sống thời tốt. Ánh sáng tự nhiên, thông gió tự nhiên, cây xanh là yếu tố chính của dự án.


Kiến trúc sư đã dựa trên các thói quen gia đình, sở thích, đặc điểm nghể nghiệp từng thành viên và một số ký ức về ngôi nhà cũ nơi họ sống trong nhiều năm trước để đưa ra ý tưởng thiết kế cho ngôi nhà mới. Ngôi nhà mới thuộc kiểu nhà phố điển hình tại Việt Nam có kích thước là 7,5m x 19m.

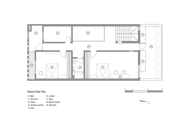
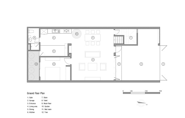
Kiến trúc sư đã mang ánh sáng vào nhà bằng cách tạo ra giếng trời ngay trung tâm nhà và xuyên qua các tầng, giải pháp này kết nối các không gian bên trong và bên ngoài.

Ánh sáng được phân phối đồng đều giữa khu vực công cộng và khu vực riêng tư. Bầu trời trong vắt có thể được nhìn thấy qua trên sân thượng.

Gia chủ là giáo viên tại gia nên kiến trúc sư đã đưa ra giải pháp là tạo ra cầu thang ở phía trước để mang đến một trải nghiệm và thuận tiên cho các việc ra vào của học viên.

Vì chủ nhà yêu cầu tái sử dụng toàn bộ nội thất của ngôi nhà trước đó nhưng điều quan trọng là phải tìm được vật liệu hoàn thiện phù hợp giữa đồ nội thất cũ với phong cách nội thất hiện đại, đơn giản.

Vật liệu chính là sàn đá mài có thể kết nối các yếu tố cũ và mới lại với nhau.

Ngoài ra, gia chủ còn muốn đưa các yếu tố có sẵn của khu vườn hiện tại vào bên trong ngôi nhà mới này, vì vậy mà kiến trúc sư cần thiết kế vị trí để tạo ra một không gian xanh mang dấu ấn quen thuộc.

Ngôi nhà là kết quả của sự kết hợp giữa cấu trúc đơn giản, vật liệu xây dựng thân thiện, hiện đại, nhưng tập trung vào giải quyết các vấn đề thông gió như ánh sáng tự nhiên cũng như sự tiện lợi của việc sử dụng các tiện ích trong, ngoài không gian ngôi nhà.


Tuy nhiên quan trọng hơn các thiết kế vẫn phải mang đến sự an toàn và đảm bảo tính riêng tư cần thiết.

Bản vẽ kiến trúc ngôi nhà



-
Nhà ống ẩn mình sau hệ song thép tại Sài Gòn
CafeLand - Ngôi nhà ống lạ mắt này có diện tích 60m2 tại Sài Gòn. Chủ nhà mong muốn xây dựng chốn riêng biệt, tách bạch, có cây cối, rào chắn xung quanh để tạo một nơi ẩn mình sau một ngày làm việc bận rộn.
-
Nhà phố Đà Nẵng khi không gian làm việc và ở cộng sinh để chữa lành tâm hồn
Một ngôi nhà chọn ẩn mình nơi cuối con hẻm nhỏ để làm một cuộc thực nghiệm về sự chữa lành. Trên diện tích vỏn vẹn 80m², công trình không chỉ là nơi trú ngụ của ba thế hệ mà còn là một phòng thí nghiệm kiến trúc, nơi không gian làm việc và đời sống r...
-
Nhà Hà Nội xoay hướng thông minh để giải nhiệt hướng Tây và đón gió lành
Tại một ngôi làng ngoại ô Hà Nội, một ngôi nhà của gia đình 3 thế hệ. Không chọn vẻ ngoài hào nhoáng hay nội thất đắt tiền, ngôi nhà chinh phục người xem bằng một cú đảo chiều hướng đất đầy táo bạo để tìm kiếm sự riêng tư, cùng triết lý sống thực tế ...
-
Nhà Thủ Đức tái tạo năng lượng theo phong cách hiện đại Phương Đông
Khám phá một ngôi nhà được thiết kế để tái tạo năng lượng, hỗ trợ sức khỏe tinh thần và tìm thấy sự cân bằng bên trong. Hãy cùng chiêm ngưỡng cách tỷ lệ cân bằng, hình học và bảng màu trung tính tinh tế tạo nên một không gian không chỉ đẹp mà còn sâu...
-
Nhà nông thôn ngoại thành Hà Nội phá vỡ sự phân chia kín đáo của nhà phố
Ngôi nhà nhỏ này được thiết kế dành cho một gia đình ba thế hệ điển hình, bao gồm bố mẹ già, hai vợ chồng trẻ và những đứa con còn nhỏ, mang trong mình sứ mệnh kế thừa kiến trúc nông thôn nhưng vẫn thổi vào đó một hơi thở mới....
-
Nhà 2 tầng Thủ Đức khai mở không gian bằng thiết kế tối giản và nguyên tắc tối thượng
Một không gian sống hiện đại được thiết kế với tinh thần tối giản và sự nhất quán tuyệt đối về màu sắc và vật liệu. Đặc biệt, hãy chiêm ngưỡng cách ánh sáng tự nhiên được kiểm soát qua cửa kính lớn và rèm mềm mại, cùng những khu vực cá nhân hóa đầy c...
