
Vì ngôi nhà được xây cách đây 30 năm – nơi lưu giữ nhiều ký ức nên kiến trúc sư đã tái sử dụng các vật liệu của ngôi nhà cổ sau khi tính toán rất kỹ lưỡng.

Điển hình là bức tường gạch cũ được lựa chọn từ nhiều viên gạch tốt nhất để làm vòm của khu vực bàn thờ, những thanh xà bằng gỗ tái dùng làm trần và nội thất trang trí cũng như những khung cửa sổ…

Bên trong nhà được thiết kế theo sở thích và thói quen hằng ngày của bố mẹ như thích cây cảnh, nuôi cá cảnh.

Ngoài ra các ô lấy sáng vừa đảm nhiệm việc thông gió vừa mang lại cảm giác gần gũi với thiên nhiên hơn.

Tuy nhiên nhược điểm của ngôi nhà là chiều ngang mặt tiền chỉ 2m nên giải pháp sau khi cân nhắc nhiều lần là thêm một đường cong bằng bê tông nguyên khối màu đỏ phá cách để tạo sự khác biệt và độc đáo khi nhìn từ xa.

Hệ thống cửa lam gỗ cũng được sử dụng để chủ động đón nắng gió theo từng thời điểm trong năm.

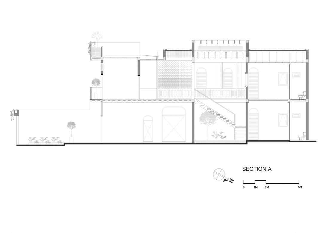
Bản vẽ mặt cắt ngôi nhà cổ được cải tạo phá cách với mặt tiền bê tông lồi tại Phan Thiết.

(Nguồn: BY Architects)
-
Ngôi nhà đưa sân vườn vào trong tại Úc
Ngôi nhà đưa sân vườn vào trong dành cho cặp vợ chồng với mong muốn để ở, sau đó được bổ sung thêm thiết kế để phù hợp dành cho sáu thành viên tại Úc.
-
Nhà chung sân 3 thế hệ ở Hà Nội: Nghệ thuật chia không gian tối giản trên đất 58m²
Sống chung trên một mảnh đất với cha mẹ nhưng vẫn muốn có một không gian riêng tư, tiện nghi cho gia đình nhỏ của mình là bài toán phổ biến tại các đô thị lớn. Trên khu đất vỏn vẹn 5,8m x 10m nằm nép mình sau khoảng sân chung tại Hà Nội, một ngôi nhà...
-
Nhà 3 tầng Phan Rang: Hy sinh 30% diện tích thuần hóa nắng gió miền Trung
Phan Rang đón người ta bằng cái nắng gắt của vùng biển vịnh và những ngôi nhà phố hẹp dài thường vô tình trở thành những hộp nhiệt bí bách. Nhưng bước qua cánh cửa của ngôi nhà này là một cảm giác thư thái đến bất ngờ ập tới. Bằng cách cắt lại 30% qu...
-
Nhà gạch cánh bướm Quảng Ninh: Giải pháp vỏ bọc 3 lớp và nông nghiệp thẳng đứng
Nằm tiếp giáp với vùng đô thị mới tại thị trấn Mạo Khê, giữa những mảnh ruộng lâu đời, một khối hộp mang tên CUBE xuất hiện như một lời giải thông minh cho bài toán chuyển dịch nông thôn. Bằng cách dựng đứng những khoảng sân và xếp lớp hệ vỏ bọc, côn...
-
Nhà lô góc Nha Trang: Nghệ thuật phép trừ để sở hữu lõi xanh xuyên suốt
Trong bối cảnh đất chật người đông, đa số chủ nhà thường tìm cách tận dụng từng centimet vuông để xây dựng. Thế nhưng, ngôi nhà 2 mặt tiền này lại chọn cách đi ngược trong sự tiết chế. Thay vì lấp đầy khu đất góc phố bằng bê tông, công trình chấp nhậ...
-
Nhà 5 tầng Thái Bình lột xác với mặt tiền như thảm thực vật bay lơ lửng giữa trời
Ngôi nhà tại Thái Bình đã chọn cách phản kháng mang cả cánh đồng lên cao. Với triết lý không chỉ giải quyết bài toán ở và cho thuê, mà còn kiến tạo một bức rèm thực vật lơ lửng, tự cung tự cấp rau xanh và gắn kết tình làng nghĩa xóm qua những mầm cây...
