
Đà Nẵng là một trong những thành phố du lịch nổi tiếng tại Việt Nam, công trình được thiết kế để đáp ứng yêu cầu kinh doanh của chủ đầu tư nhưng không giới hạn kiến trúc theo phong cách thương mại thông thường. Tất cả các hạng mục kỹ thuật được thiết kế theo chiều dọc hướng về phía Bắc để đảm bảo tầm nhìn vì trong thời gian sắp tới sẽ có một tòa nhà cao tầng mọc bên cạnh dự án. Mặt tiền dự án được bao phủ bởi một một hệ thống lấy cảm hứng từ các chậu cây được tích hợp vào ban công phòng khách sạn. Hệ thống cây xanh đó được thiết kế đơn giản, dễ vận hành và dễ bảo trì.

Tổng diện tích sàn của dự án là 11.895m2 có 129 phòng từ loại tiêu chuẩn đến loại căn hộ trên 21 tầng với tiện nghi tiêu chuẩn như tầng hầm để xe, tầng hầm kỹ thuật và dịch vụ, khu vực sảnh, quán café, spa va sky bar. Nhờ mặt tiền cây xanh ấn tượng nên tất cả các phòng đều có tầm nhìn đẹp hướng biển hay hướng đất liền. bên cạnh tính thẩm mỹ cao, hệ thống cây xanh còn tạo ra một khoảng không khí trong lành cho tòa nhà giúp không gian nội thất bên trong mát mẻ hơn. Các loại cây xanh sử dụng là những loại cây phù hợp tính chất vùng nhiệt đới, khí hậu biển.








Bức tường bê tông thô cứng tỏa sáng, đẹp theo cách riêng, lan truyền cảm hứng cho ý tưởng thiết kế nội thất, việc sử dụng chất liệu nội thất làm từ vật liệu địa phương như gỗ, đá, tre, mây… Phòng khách được thiết kế có phòng vệ sinh mở kết nối với phòng ngủ. tất cả các phòng khách sử dụng hệ thống cửa kính tối đa để cung cấp ánh ánh tự nhiên, tầm nhìn và hưởng lợi từ hệ thống cây xanh tại mặt tiền.



Công trình sau khi hoàn thiện sẽ là một biểu tưởng của tòa nhà xanh cho thành phố và mang đến một góc nhìn mới về thiết kế kiến trúc trong tương lai.

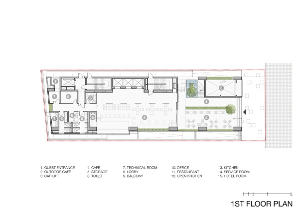
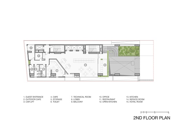
Bản vẽ mặt bằng kiến trúc công trình




