
Mặt tiền của căn hộ được làm từ kính nên có tầm nhìn rộng và tràn ngập ánh sáng tự nhiên. Tuy nhiên, có một phòng ngủ đã che khuất một phần tầm nhìn để ngắm cảnh. Đó chính là bài toán thách thức dành cho kiến trúc sư khi cải tạo lại căn hộ.

Gia chủ của căn hộ này rất yêu âm nhạc, muốn có một không gian để sống cùng sở thích, vừa thưởng thức âm thanh vừa thưởng vị rượu vang. Giải pháp của kiến trúc sư là sắp xếp lại mặt bằng, loại bỏ một số bức tường để tạo thành một không gian sống mở.

Giải pháp là sử dụng ½ diện tích cho nhà bếp và phòng khách đặt tại trung tâm căn hộ. Kiến trúc sư gọi đó là “không gian thư giãn” một góc nhìn paranoma trong không gian, không có điểm bắt đầu hay điểm kết thúc. Tổng thể và phòng ngủ đều được sử dụng kính mờ làm vách ngăn phòng. Hiệu ứng không gian mang lại tầm nhìn vô tận từ Đông sang Tây và giữ cho các thành viên trong gia đình luôn được kết nối.

Lối vào chính của căn hộ được chắn bởi quầy bar cũng là đảo bếp. Kiến trúc sư muốn sảnh chính sẽ dẫn mọi người vào tiếp cận các không gian một cách từ từ chứ không phải trực tiếp, nhằm gợi sự tò mò rồi cảm giác ngạc nhiên theo từng bối cảnh.

Về đảo bếp, nó được làm từ đồng nguyên khối với thiết kế độc đáo, chất liệu sáng bóng, quầy bar trở thành điểm nhấn của căn hộ.

Mỗi món đồ nội thất đều được cân nhắc kỹ lưỡng để phù hợp vớ thiết kế, đảm bảo tính nhất quán với không gian, có thể nói căn hộ hoàn toàn thuận tiên cho cuộc sống hiện đại và nơi an cư lạc nghiệp lâu dài.

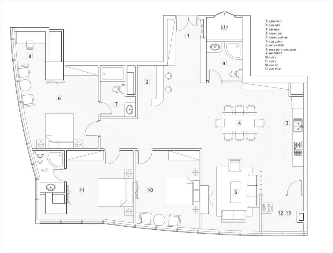
Bản vẽ mặt bằng căn hộ 3 phòng ngủ

(nguồn: Dao & Ho Studio)
-
Quán café trung thành với lối thiết kế hiện đại tối giản tại Quận 1
CafeLand - Quán café đậm nét kiến trúc hiện đại tối giản xưa của Sài Gòn nằm trong một con hẻm nhỏ tại Quận 1.
-
Giải mã đường cong Vespa trong kiến trúc nhà phố đa thế hệ tại TP.HCM
Lấy cảm hứng từ những đường cong mềm mại của dòng xe huyền thoại và ký ức về những buổi sáng tỉnh giấc trong lều giữa thiên nhiên, ngôi nhà hiện lên như một ốc đảo bình yên, nơi không gian sống trở thành sợi dây thắt chặt tình thân giữa các thế hệ....
-
Giải mã nhà ống Tây Bắc TP.HCM hạ nhiệt bằng những khoảng thở và trục ánh sáng
Trên khu đất 4m x 18m hướng Tây Bắc điển hình, kiến trúc sư đã kiến tạo nên một không gian sống mà ở đó, ánh sáng không chỉ để chiếu sáng – nơi nắng gắt và tiếng ồn được hóa giải bằng ngôn ngữ kiến trúc tối giản....
-
Nếp nhà 2 tầng kiểu Nhật tại Đà Nẵng: Khoảng lặng xanh vỗ về trái tim mẹ
Một ngôi nhà hiện lên như một nốt lặng dịu dàng. Đó không chỉ là một công trình kiến trúc, mà là món quà chứa chan lòng hiếu thảo của ba người con dành tặng mẹ. Một không gian nơi những bức tường ngăn cách bị xóa nhòa, nhường chỗ cho sự kết nối giữa ...
-
Hành trình hồi hương: Điểm chạm thiên nhiên trong nhà 2 tầng Hà Nội cho người cao tuổi
Rời bỏ những khối bê tông bức bối của nội đô, một cặp vợ chồng lớn tuổi đã chọn quay về mảnh đất tổ tiên bên triền sông Hồng để tìm lại nhịp sống chậm rãi. Trên diện tích khiêm tốn 6m x 20m, kiến trúc sư đã khéo léo tái hiện lại tinh thần của nếp nhà...
-
Nhà phố TP.HCM: Hệ mái V độc bản và trục xương sống vườn đôi xuyên suốt
Ngôi nhà hiện lên như một lời phản kháng tĩnh lặng qua những khối hộp chữ nhật san sát nhau tạo nên sự đơn điệu và ngột ngạt. Không chạy theo những diện mạo hào nhoáng, công trình chọn quay về với những giá trị nguyên bản của mái hiên, bình phong và ...
