
Các thành viên trong gia đình gồm cha mẹ lớn tuổi, cặp vợ chồng trẻ, người giúp việc. Do nằm trong khu vực quản lý chặt chẽ về quy hoạch cũng như các yêu cầu về hình thức nên các yếu tố cải tạo được tính toán đơn giản và hiệu quả nhất mà vẫn đáp ứng những yêu cầu tiêu chí sinh hoạt đặc biệt của chủ nhà.

Khó khăn ban đầu của công trình là đáp ứng các mong muốn về thay đổi diện mạo theo ý của chủ nhà mà vẫn đảm bảo sự hài hòa tổng thể nằm trong quy định của ban quản lý. Do vậy hình thức kiến trúc phải được xem xét cẩn thận giữa việc tạo ra sự đổi mới hiện đại đồng thời công trình phải có cá tính, có tương phản độc đáo nhưng nhẹ nhàng và đáp ứng các quy định chung.

Về kiến trúc, hình thức mặt đứng của công trình được giản lược đường nét. Các ô cửa sổ trên mặt đứng sử dụng lớp chắn nắng trực tiếp bằng các tấm đan bê tông siêu cường lực. Trong đó những tấm đan này được thiết kế đảm bảo độ mỏng để làm bộ lọc cho ánh nắng hướng Tây không chiếu bức xạ trực tiếp vào không gian nội thất bên trong đồng thời tạo ra kịch bản về ánh nắng mặt trời thú vị trong không gian bên trong.

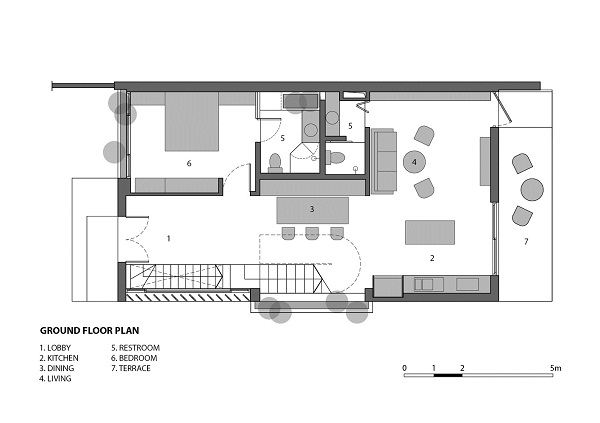
Vì trong nhà có người lớn tuổi hay bị ốm nên yêu cầu lớn nhất về công năng được đặt ra là không gian sinh hoạt chung sẽ xoay quanh hoạt động của họ. Phòng khách, nhà bếp cần đảm bảo tầm nhìn và sự giao tiếp giữa các thành viên với họ tại mọi thời điểm.


Tầng 1 cũng là phòng ngủ của bố mẹ lớn tuổi để tiện sinh hoạt.
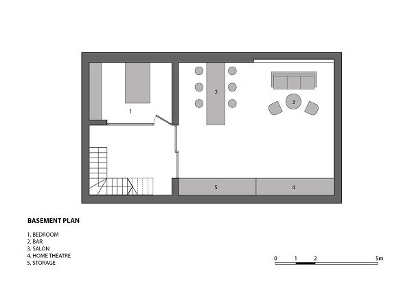
Tầng hầm với yêu cầu phòng cho người giúp việc cũng cần phải thiết kế có không gian mở để nhận ánh sáng mặt trời trực tiếp nhưng vẫn phải đủ gần và kết nối dễ dàng thuận tiện cho việc chăm sóc bố mẹ lớn tuổi. Đây cũng chính là lý do vì sao trục thang máy bị thay đổi và phần mở của hố thang xuống tầng hầm cũng được tính toán để đưa sang mặt đứng bên hướng Tây để tiếp cận ánh sáng mặt trời tự nhiên nhiều nhất và cũng đưa ánh sáng này sâu nhất vào tầng hầm.



Mặt đứng và cửa sổ bên ngoài ngôi nhà mở rộng và hướng về phía không gian mở có nhiều ánh sáng để làm giảm tầm nhìn ảnh hưởng đến sinh hoạt riêng tư từ những hàng xóm đối diện. Hệ thống cửa sổ chính của 2 tầng được bao quanh bởi hệ thống mái hiên bằng thép chạy gấp khúc từ mặt chính sang bên hông, che chắn cửa sổ và làm bục cho hệ cây xanh treo mọc rũ xuống.



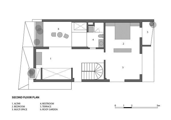
Phối cảnh mặt bằng các tầng trong biệt thự




-
Biến nhà cũ thành nhà nghỉ bằng gạch đỏ tại trung tâm Đà Nẵng
CafeLand - Công trình được cải tạo lại từ ngôi nhà cũ thành nhà nghỉ 6 tầng tại Quận Hải Châu, thành phố Đà Nẵng.
-
Biệt thự song lập Hà Nội: Giải mã bài toán dời thang và kết nối trục xanh đứng
Tại một căn biệt thự song lập dành cho ba thế hệ ở Thanh Trì, Hà Nội, bài toán đặt ra là làm sao phá vỡ sự tù túng của cấu trúc cũ – nơi hệ thang bộ đồ sộ ở giữa nhà đã ngăn chặn ánh sáng và xẻ dọc dòng chảy thị giác. Bằng cách dời hệ thang bộ ra phí...
-
Biệt thự góc Bắc Giang kiến tạo ngôi làng thẳng đứng đa lớp cho gia đình đa thế hệ
Tọa lạc tại vị trí vàng trên đường Hùng Vương, Bắc Giang, ngôi nhà không chỉ là một căn biệt thự góc phố sầm uất mà còn là một ví dụ điển hình về việc giải quyết bài toán nhà đông thành viên trong đô thị nén. Thay vì xây một khối bê tông đặc cứng, ki...
-
Biệt thự vườn TP. HCM mở ở Tây đón hoàng hôn, đóng ở Đông lọc nắng sớm
Một biệt thự độc đáo có sự tương tác giữa con người và thiên nhiên được đặt lên hàng đầu. Với triết lý thiết kế sâu sắc: ôm trọn hình ảnh của một chiếc hộp rỗng, tạo ra một không gian rộng rãi, giải phóng, nơi mọi thứ đều tuôn chảy....
-
Biệt thự mini Thủ Đức ngập tràn ánh sáng trong thiết kế tối giản
Một ngôi nhà triết lý tối giản được áp dụng từ ngoại thất đến nội thất, tạo nên một tổng thể hài hòa. Điểm nhấn đặc biệt là giếng trời trung tâm, được thiết kế để không chỉ chiếu sáng mà còn biến ngôi nhà thành một không gian tràn ngập ánh sáng và hò...
-
Biệt thự Bình Dương phong cách Á Đông khác biệt khi xuất hiện khối container lệch góc
Nằm trên mảnh đất 375m² tại khu biệt thự ven sông, biệt thự là hiện thực hóa kiến tạo một tổ ấm với chất lượng sống với 60% diện tích được dành cho thiên nhiên, nơi những khối hình học hiện đại được phủ lên lớp áo Á Đông nhiệt đới tinh tế được hoàn t...
