
Giới thiệu về biệt thự
Thể loại công trình: Biệt thự sinh thái
Địa điểm: Hồ Tràm
Diện tích khu đất: 300m2
Năm hoàn thành: 2023
Vị trí:
Biệt thự được xây dựng trên mảnh đất rộng 300m2 có mặt tiền chính hướng về khu rừng để lấy tầm nhìn của khu vườn nhiệt đới và hồ bơi nước mặn.

Kiến trúc, kết cấu ngôi nhà:
Kiến trúc sư đề xuất giải phải xây biệt thự dựa trên nguyên tắc sinh thái, cụ thể, mái che được cách nhiệt rộng để che nắng và bảo vệ các khu vực khác nhau bên trong. Các khu vực chung được thông gió tự nhiên, không sử dụng điều hòa và chỉ lắp đặt hệ thống quạt trần để tiết kiệm điện năng và mang đến cảm giác đúng nghĩa của biệt thự nhiệt đới.

Không gian nội thất:
Không gian phòng khách có nhiều cửa kính rộng mở tối đa mang đến khoảng thông thoáng đãng và nguồn ánh sáng tự nhiên chiếu sáng khắp không gian khiến gia chủ và các thành viên luôn vui vẻ và tụ họp nơi đây mỗi ngày.

Sở hữu các mảng tường kính lớn, đồ nội thất cũng được cân nhắc kỹ để bố trí phù hợp với cá tính cũng như không gian từng khu vực.
Các ô cửa kính bao quanh khu vực sinh hoạt chính có thể trượt mở tối đa theo nhu cầu là một trong số ít được bố trí khác biệt so với những ngôi nhà thông thường mang đến cảm giác mới lạ, vui tươi và tràn đầy năng lượng.

Điểm nhấn phòng khách là vách ngăn treo ti vi để ngăn sự phản xạ ánh sáng khi mọi người dõi theo trên màn hình.
Nội thất thiết kế tối giản mở rộng với mục đích giới hạn vấn đề bảo trì và thuận tiện cho việc sinh hoạt của các thành viên.

Hệ thống ánh sáng được thiết kế tương phản với bên ngoài với chủ ý dung hòa giữa trong và ngoài, thiên nhiên xung quanh và chỉ tập trung vào khu vực cần ánh sáng nhất như phòng đọc sách, khu vực ăn uống, nhà bếp, phòng tắm, phòng ngủ.


Hệ tủ gỗ đặc biệt vừa là vách ngăn vừa là nơi lưu trữ đồ dùng nhà bếp của gia đình.
Hai phòng ngủ được cách nhiệt bằng mái lợp, tường xi măng và cửa 2 lớp bên trong kính, ngoài gỗ nhằm mang lại hiệu ứng tự nhiên cho biệt thự đồng thời giữ được nét độc đáo riêng.

Khu vực cảnh quan thiết kế nhẹ nhàng có nhiều cây xanh và thảm thực vật có sẵn tại địa phương hài hòa với khu rừng rộng lớn.

Hệ thống hồ bơi sử dụng nước mặn có độ sâu 120m để giảm chi phí thiết bị, bảo trì và tiết kiệm nước.

Khu vực ngoài trời rộng rãi có mái che cho những bữa tiệc thân mật của gia đình.

Bảng màu và vật liệu:
Với phong cách thiết kế tối giản nên không gian chủ yếu sử dụng gam màu xám sàn bê tông, vàng của gỗ tự nhiên, vài điểm nhấn màu trắng tại các khu vực.

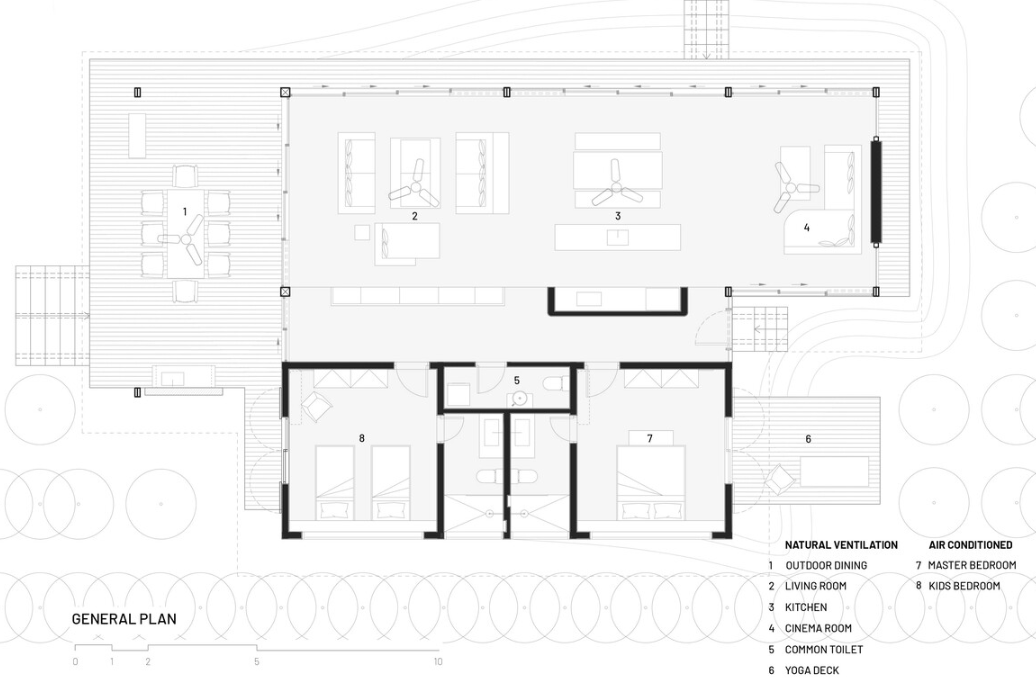
Mặt bằng kiến trúc biệt thự sinh thái đặc biệt tiết kiệm năng lượng có hồ bơi nước mặn tại Hồ Tràm.

(Nguồn: T3 Architects/ Kanopea Architecture Studio)
-
Nhà 1 trệt 1 lầu xinh xắn bên trong ấm áp dành cho mẹ tại xứ sở ngàn hoa
Ngôi nhà 1 trệt 1 lầu với vẻ ngoài xinh xắn, cá tính nằm giữa miền đất ngàn hoa, không khí lạnh lẽo mở ra một khung cảnh tuyệt đẹp, đó là một tổ ấm dành riêng cho mẹ tại thành phố Đà Lạt.
-
Biệt thự Thủ Dầu Một: Không gian Smart home tích hợp sống, làm việc và nghỉ ngơi
Tọa lạc trên trục giao thông huyết mạch của thành phố Thủ Dầu Một, Bình Dương (cũ), biệt thự rộng 559m2 xuất hiện như một bộ lọc kiến trúc, giải quyết mâu thuẫn giữa nhịp sống ồn ào bên ngoài và nhu cầu tĩnh tại bên trong. Bằng việc sử dụng các cấu t...
-
Tái định nghĩa biệt thự song lập Hà Nội bằng không gian xanh kết nối mặt nước
Công trình cải tạo biệt thự song lập không cố gắng phô trương bằng những hình khối biểu tượng, mà chọn cách tự làm mới mình từ bên trong thông qua việc tái cấu trúc dòng chảy không gian. Bằng nghệ thuật sắp đặt các lớp không gian đan cài và xóa nhòa ...
-
Biệt thự song lập Hà Nội: Giải mã bài toán dời thang và kết nối trục xanh đứng
Tại một căn biệt thự song lập dành cho ba thế hệ ở Thanh Trì, Hà Nội, bài toán đặt ra là làm sao phá vỡ sự tù túng của cấu trúc cũ – nơi hệ thang bộ đồ sộ ở giữa nhà đã ngăn chặn ánh sáng và xẻ dọc dòng chảy thị giác. Bằng cách dời hệ thang bộ ra phí...
-
Biệt thự góc Bắc Giang kiến tạo ngôi làng thẳng đứng đa lớp cho gia đình đa thế hệ
Tọa lạc tại vị trí vàng trên đường Hùng Vương, Bắc Giang, ngôi nhà không chỉ là một căn biệt thự góc phố sầm uất mà còn là một ví dụ điển hình về việc giải quyết bài toán nhà đông thành viên trong đô thị nén. Thay vì xây một khối bê tông đặc cứng, ki...
-
Biệt thự vườn TP. HCM mở ở Tây đón hoàng hôn, đóng ở Đông lọc nắng sớm
Một biệt thự độc đáo có sự tương tác giữa con người và thiên nhiên được đặt lên hàng đầu. Với triết lý thiết kế sâu sắc: ôm trọn hình ảnh của một chiếc hộp rỗng, tạo ra một không gian rộng rãi, giải phóng, nơi mọi thứ đều tuôn chảy....
