
Trong văn hóa Việt, cây tre là hình ảnh gần gũi, chúng được mọc thành bụi, với thân thẳng tít, đây là ý tưởng chủ đạo mà kiến trúc sư đưa vào thiết kế biệt thự đơn lập.

Hình thức lam trong kiến trúc hiện đại rất phổ biến nhưng với biệt thự đơn lập này thì sự kết hợp những thanh lam với hình ảnh cây tre được thể hiện qua các chất liệu khác nhau như thanh bê tông, thanh sắt bao bọc phần ban công, lam nhựa lõi thép tại mái hiên, nan tre ngoài trời.

Ngoài ra chất liệu nan tre còn được sử dụng trong nội thất theo nhiều cách thể hiện khác nhau bên trong biệt thự đơn lập điển hình như cửa tủ giầy, vách dọc hai bên giếng trời và phòng ngủ, trần phòng ngủ…

Tất cả tạo nên một ngôn ngữ kiến trúc độc đáo và đồng nhất thông qua những vật liệu tưởng chừng bình thường nhưng lại rất gần gũi, thân quen.

Nhìn chung ý tưởng thiết kế cho biệt thự đơn lập này vừa gần gũi với thiên nhiên vừa hài hòa với môi trường sống xung quanh, đây cũng chính là yếu tố quan trọng nhất trong ngôn ngữ thiết kế và cũng là quan điểm của kiến trúc sư theo đuổi cho mỗi công trình.

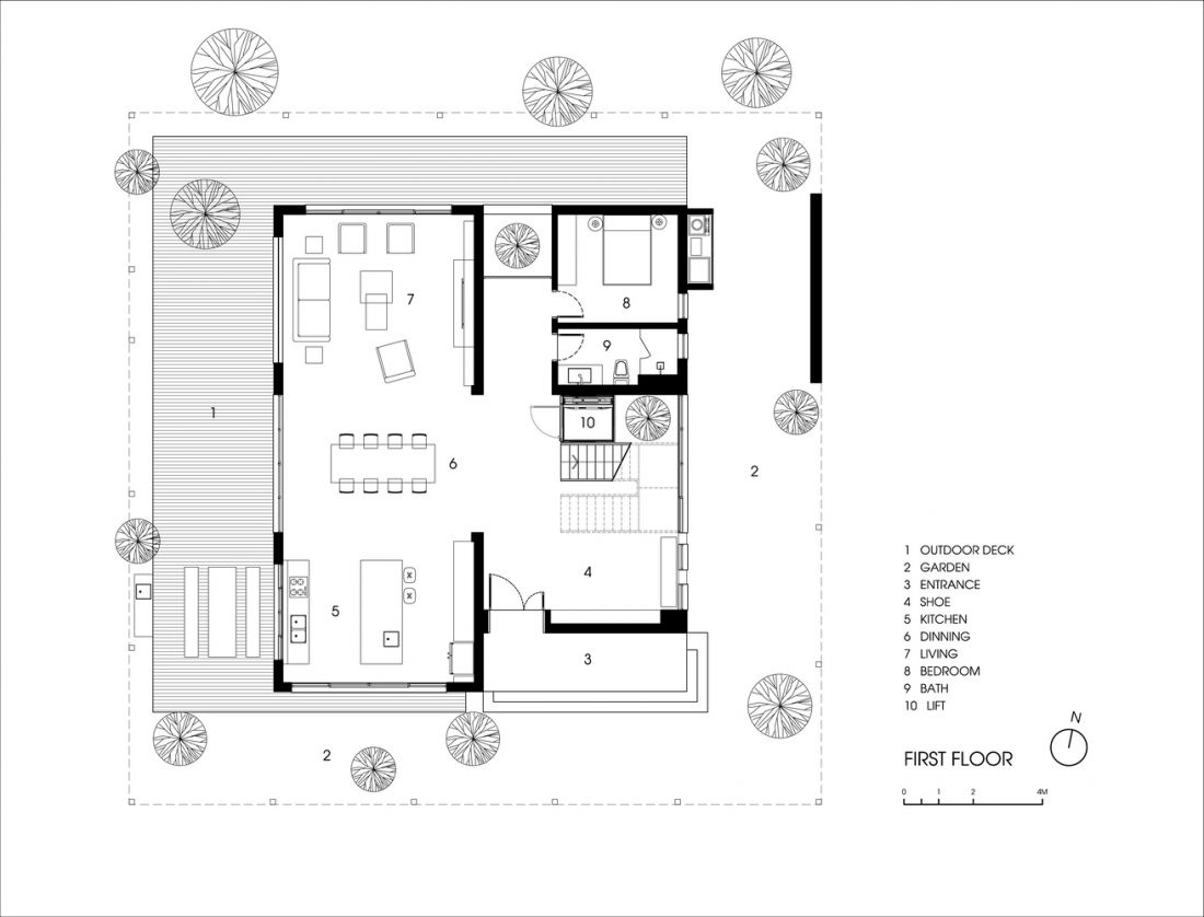
Bản vẽ mặt bằng biệt thự đơn lập phủ lam gỗ từ ngoài vào trong tại Hưng Yên.

(Nguồn: ihouse Architecture)
-
Vẻ đẹp đến từ kết cấu và tinh thần trà đạo trong thiết kế nhà hàng Nhật Bản tại Hà Nội
Nhà hàng lấy cảm hứng từ tinh thần trà thất và nghi lễ thưởng trà của người Nhật, tọa lạc tại Quận Cầu Giấy, Hà Nội.
-
Biệt thự Kê Gà 3 trong 1: Bản giao hưởng giữa riêng tư và gió biển cho đại gia đình
Nằm giữa vùng cảnh quan hoang sơ của Kê Gà, nơi tiếng sóng biển hòa quyện cùng nhịp thở của rừng quốc gia, biệt thự nghỉ dưỡng này hiện lên như một lời giải tinh tế cho bài toán sống hòa hợp với thiên nhiên. Không chọn cách phô trương bằng những khối...
-
Biệt thự ngoại ô Hà Nội: Cấu trúc nguyên bản hòa nhịp sống bền vững giữa thiên nhiên
Rời xa nhịp sống hối hả của nội đô Hà Nội, tại vùng ngoại ô Quốc Oai với những cánh đồng trải dài và đồi thấp nhấp nhô, một khối lập phương bằng bê tông trần hiện lên như một điểm dừng chân của sự tĩnh tại. Biệt thự hiện lên không cố gắng lấn át thiê...
-
Biệt thự Thủ Dầu Một: Không gian Smart home tích hợp sống, làm việc và nghỉ ngơi
Tọa lạc trên trục giao thông huyết mạch của thành phố Thủ Dầu Một, Bình Dương (cũ), biệt thự rộng 559m2 xuất hiện như một bộ lọc kiến trúc, giải quyết mâu thuẫn giữa nhịp sống ồn ào bên ngoài và nhu cầu tĩnh tại bên trong. Bằng việc sử dụng các cấu t...
-
Tái định nghĩa biệt thự song lập Hà Nội bằng không gian xanh kết nối mặt nước
Công trình cải tạo biệt thự song lập không cố gắng phô trương bằng những hình khối biểu tượng, mà chọn cách tự làm mới mình từ bên trong thông qua việc tái cấu trúc dòng chảy không gian. Bằng nghệ thuật sắp đặt các lớp không gian đan cài và xóa nhòa ...
-
Biệt thự song lập Hà Nội: Giải mã bài toán dời thang và kết nối trục xanh đứng
Tại một căn biệt thự song lập dành cho ba thế hệ ở Thanh Trì, Hà Nội, bài toán đặt ra là làm sao phá vỡ sự tù túng của cấu trúc cũ – nơi hệ thang bộ đồ sộ ở giữa nhà đã ngăn chặn ánh sáng và xẻ dọc dòng chảy thị giác. Bằng cách dời hệ thang bộ ra phí...
