
Ngôi nhà thông minh và tiết kiệm không gian ở Nhật Bản được xây dựng trên một lô đất đặc biệt và tạo nên cấu trúc cũng không kém sự lạ mắt và độc đáo.

Hầu hết mọi ngóc ngách của căn nhà đều được gia chủ tận dụng một cách triệt để thành góc đọc sách nhỏ nhưng vô cùng ấn tượng và thư giãn.

Khu vực bếp núc và ăn uống được bố trí trên tầng 2. Xuyên suốt toàn bộ căn nhà đều được sử dụng màu xám sáng và gỗ tạo nên một không gian mới mẻ và thanh lịch.


Các hốc thông minh luôn đảm bảo được sự riêng tư giúp gia chủ thoải mái khi tập trung với cuốn sách, công việc.


Với thiết kế khéo léo phân chia nhiều tầng, cầu thang lệch giúp ngôi nhà nhỏ này luôn nhận được ánh sáng tự nhiên một cách đầy đủ, chan hòa.

Từ ngôi nhà có thể dễ dàng ngắm nhìn khu phố sầm uất bao quanh ở Shukugawa này.

Buổi tối ánh đèn chiếu sáng giúp ngôi nhà nhỏ ở Nhật Bản này càng thêm rực rỡ, hấp dẫn hơn.

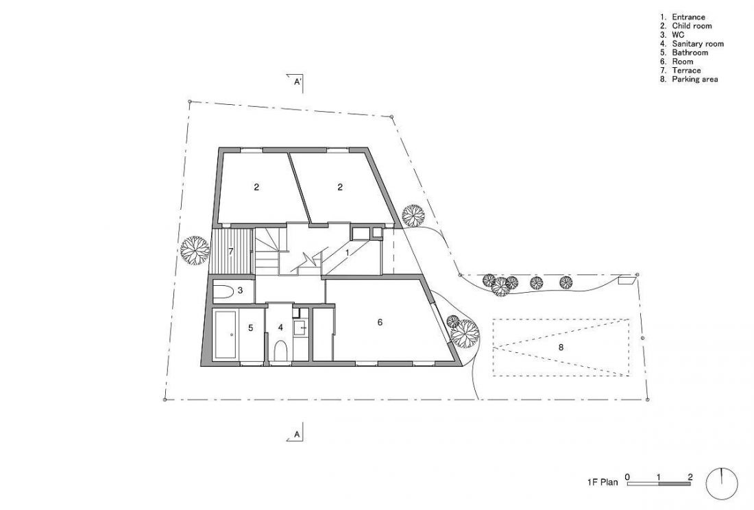
Sơ đồ chi tiết tầng dưới bao gồm các phòng ngủ và lối ra vào.

Sơ đồ chi tiết mặt bằng tầng trên bao gồm khu vực tiếp khách, nhà bếp và không gian ăn uống của ngôi nhà nhỏ nhưng đầy tinh tế, lôi cuốn ở Nhật Bản.
-
Lạ mắt với ngôi nhà được trang trí phong cách tối giản
CafeLand - Ngôi nhà dưới đây hoàn toàn bị thu hút khi vừa sử dụng phong cách trang trí hoàn toàn mới lại vừa kết hợp ánh sáng đan xen, nội thất sáng tạo, tạo nên không gian sống hiện đại, tinh tế.
-
Mô hình nhà nổi 250 triệu: giải pháp an cư sống chung với lũ bền vững tại Việt Nam
Năm vừa qua, Việt Nam oằn mình gánh chịu 17 cơn bão liên tiếp, khiến nhiều tỉnh thành chìm trong biển nước. Khi thiên tai không còn là chu kỳ mà trở thành mối đe dọa thường trực, câu hỏi làm sao để bảo vệ con người trên chính mảnh đất cha ông đã thúc...
-
Kiến trúc nhà module chống lũ lắp ghép 25 ngày dưới 53 triệu đồng
Không phải là một ngôi nhà cố định, mà là một khối module lắp ghép 3.3m x 6.6m, được thiết kế để chống chọi lũ lụt cao 1,5m. Hãy cùng khám phá cách mô hình này được lắp ráp chỉ trong 25 ngày với chi phí dưới 53 triệu đồng chỉ bằng vật liệu có sẵn tại...
-
Khám phá tòa tháp in 3D cao nhất thế giới tại Thụy Sĩ
Tor Alva - tòa tháp cao 30m được mô phỏng theo một chiếc bánh, mới được khánh thành tại một ngôi làng nhỏ trên núi ở Thụy Sĩ.
-
Khám phá ngôi nhà như hang động được giấu dưới lòng đất tại Nhật Bản
Tọa lạc tại thành phố Ube, tỉnh Yamaguchi, công trình độc đáo này vừa là nhà ở vừa kinh doanh nhà hàng của đầu bếp người Nhật. Dự án được kiến trúc sư Junya Ishigami thiết kế, tạo ra bằng cách đổ bê tông vào các lỗ trên mặt đất....
-
Khám phá ngôi nhà gạch với thiết kế tường gạch lượn sóng độc đáo tại Ấn Độ
House of Dancing Cactus là một ngôi nhà độc lập nổi tiếng tại Pondicherry, Ấn Độ, có diện tích 110m2. Dự án được thiết kế bởi văn phòng kiến trúc Art&Architecture, mang đến một không gian sống đầy sáng tạo....
