
Ý tưởng chính của công trình này là tạo ra không gian chung giống như một thư viện tràn ngập ánh sáng tự nhiên và cây xanh trong nhà, nơi mọi người có thể làm việc và học tập cùng nhau và gợi mở nhiều hoạt động tương tác.

Gia chủ là gia đình trẻ có 4 người với hai vợ chồng và 2 con đang đi học với nhu cầu vừa có không gian học tập riêng vừa có thể làm việc tại nhà và là nơi chăm sóc con cái.

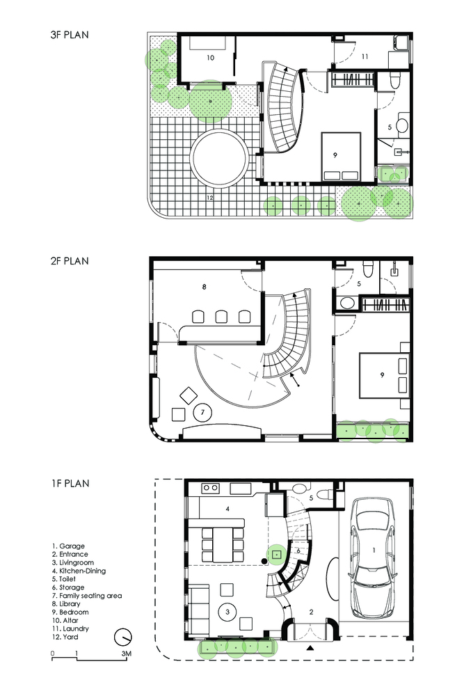
Điều này khiến kiến trúc sư đề xuất ý tưởng thiết kế ngôi nhà 3 tầng được bố trí không gian sinh hoạt chung tại tầng 2. Khoảng thông tầng 2 cũng giúp không gian cả ngôi nhà kết nối với nhau theo chiều đứng từ tầng 1 đến tầng 3, giúp tăng sự tương tác và giao tiếp trong nhà.

Tủ sách và nội thất, đặc biệt là thư viện mini trong nhà giúp không gian thông thoáng đồng thời các thành viên có thể lựa chọn nơi đây là nơi làm việc hay học tập hoặc đơn giản là đọc quyển sách yêu thích.

Không gian tầng 1 dành cho phòng khách – bếp - phòng ăn liên thông với tầng 2 tạo cảm giác rộng rãi các sinh hoạt được kết nối liền mạch. Ánh sáng tự nhiên chiếu từ giếng trời xuống tầng 1.

Phòng ngủ tại tầng 2 và 3 được thiết kế mở hướng ra ban công xanh mát và sân vườn – nơi mà chủ nhà yêu thích cây xanh – giúp bảo vệ ngôi nhà khỏi ánh nắng nóng trực tiếp.

Mặt tiền được thiết kế với nhiều ô thoáng vừa đóng vai trò điều tiết ánh sáng tự nhiên vào trong nhà vừa đảm bảo an ninh cho ngôi nhà.

Buổi tối, ánh sáng le lói từ ngôi nhà từ những ô nhỏ hay cây xanh hắt ra từ phía ban công, sân vườn đã tạo nên không khí ấm cúng và sinh động cho góc phố.

Bản vẽ mặt bằng kiến trúc ngôi nhà

-
Nhà phố tối giản nép mình trong ngõ nhỏ tại Vinh
CafeLand - Ngôi nhà nằm trong con ngõ nhỏ tại thành phố Vinh với phong cách tối giản tràn ngập không gian xanh mát.
-
Nhà nông thôn ngoại thành Hà Nội phá vỡ sự phân chia kín đáo của nhà phố
Ngôi nhà nhỏ này được thiết kế dành cho một gia đình ba thế hệ điển hình, bao gồm bố mẹ già, hai vợ chồng trẻ và những đứa con còn nhỏ, mang trong mình sứ mệnh kế thừa kiến trúc nông thôn nhưng vẫn thổi vào đó một hơi thở mới....
-
Nhà 2 tầng Thủ Đức khai mở không gian bằng thiết kế tối giản và nguyên tắc tối thượng
Một không gian sống hiện đại được thiết kế với tinh thần tối giản và sự nhất quán tuyệt đối về màu sắc và vật liệu. Đặc biệt, hãy chiêm ngưỡng cách ánh sáng tự nhiên được kiểm soát qua cửa kính lớn và rèm mềm mại, cùng những khu vực cá nhân hóa đầy c...
-
Xây nhà 70m2 trên đất xiên góc TPHCM ưu tiên thiết kế lùi cấp tăng chiều sâu
Một ngôi nhà với hình dáng xiên góc bất thường, làm thế nào để đảm bảo sự riêng tư tuyệt đối nhưng vẫn ngập tràn ánh sáng tự nhiên? Khám phá giải pháp mặt tiền lùi cấp và lưới thép nhiều lớp, tạo nên một lớp đệm đô thị bí ẩn, vừa che chắn ánh nhìn, v...
-
Nhà Hà Nội với sàn lệch cao độ phá vỡ sự đồng nhất, không thay đổi ngoại thất
Một sự can thiệp thầm lặng nhưng quyết đoán mà không làm thay đổi diện mạo bên ngoài của khu phố. Với cách phá vỡ cấu trúc sàn tầng bằng nhau điển hình của nhà phố đầu những năm 2000, thay thế bằng một hệ thống sàn lệch cao độ tạo ra sự liên tục khôn...
-
Nhà ống đa năng kết hợp hai phòng khám Hà Nội thiết kế thích ứng với thay đổi mọi thời điểm
Một ngôi nhà đứng sừng sững như một ngưỡng không gian kỳ lạ, hòa giải giữa đô thị dày đặc và cảnh quan xung quanh. Đây không chỉ là nơi ở, mà là một sự tái hợp của những ký ức và lễ nghi gia đình qua các thế hệ....
