
Chủ nhà mong muốn sở hữu một ngôi nhà có sự tương tác kết nối giữa các thành viên và hài hòa với thiên nhiên, mảng xanh trong nhà.

Thấy rõ kiểu thiết kế cũ vô cùng bí bách, nhiều nhược điểm khi sử dụng về lâu về dài cho ngôi nhà hướng Tây Bắc, kiến trúc sư đã đưa ra giải pháp các tầng xếp chồng xen kẽ với nhau theo chiều cao và theo trực diện, nên có thể nhìn xuyên suốt các phòng chính, bóng sẽ đỗ xuống các tầng bên dưới, không khí tự nhiên sẽ đi dọc theo ngôi nhà thông qua các khoảng trống, vì thế giảm sức nóng khi nhiệt độ bên ngoài tăng vào mùa hè.


Thêm nữa, với cấu trúc này các thành viên trong gia đình có thể giao tiếp, tương tác với nhau giữa con người với mảng xanh tự nhiên bên trong.
Các không gian riêng lẻ được bao phủ bên trên bằng hệ mái dốc ở giữa nâng đỡ bằng các cột thép vững chắc và bao bọc xung quanh lớp kính trong suốt ốp hệ lam hướng mặt tiền. Nội thất trong nhà đều tối giản trên nền vât liệu chính là gỗ.




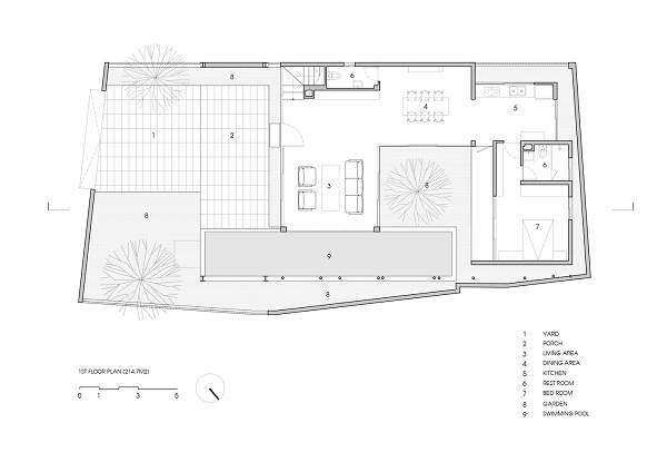
Giải pháp thiết kế và mặt bằng ngôi nhà




-
Hé lộ địa điểm sẽ triển khai dự án khu công nghiệp mới hơn 1.700 tỷ đồng tại thành phố Huế
Ông Nguyễn Khắc Toàn, Chủ tịch UBND thành phố Huế vừa ký Quyết định số 777/QĐ-UBND về việc chấp thuận chủ trương đầu tư dự án Đầu tư xây dựng và kinh doanh kết cấu hạ tầng Khu công nghiệp La Sơn - Khu số 02....
-
Hé lộ doanh nghiệp thực hiện dự án gần 1.500 tỷ đồng tại thành phố Huế
UBND thành phố Huế vừa ban hành quyết định số 734/QĐ-UBND về việc chấp thuận nhà đầu tư thực hiện dự án đầu tư xây dựng và kinh doanh kết cấu hạ tầng Khu công nghiệp, Khu phi thuế quan số 01 Chân Mây....
-
Điều chỉnh quy hoạch Khu kinh tế Chân Mây – Lăng Cô tại thành phố Huế
UBND thành phố Huế vừa phê duyệt điều chỉnh cục bộ quy hoạch chung xây dựng Khu kinh tế Chân Mây - Lăng Cô, tỉnh Thừa Thiên Huế (nay là thành phố Huế) đến năm 2045.
-
Công bố điều chỉnh quy hoạch phân khu xây dựng cảng Chân Mây
Ban quản lý Khu Kinh tế, Công nghiệp thành phố Huế vừa phối hợp với xã Chân Mây - Lăng Cô tổ chức Hội nghị công bố điều chỉnh Quy hoạch phân khu xây dựng cảng Chân Mây, thành phố Huế cho cộng đồng dân cư trên địa bàn thuộc phạm vi của dự án....
-
Địa điểm triển khai dự án khu dân cư mới gần 300 tỷ đồng tại thành phố Huế
Sở Tài chính thành phố Huế vừa công bố thông tin dự án Khu dân cư Phú Diên 1 tại xã Phú Diên, huyện Phú Vang, thành phố Huế (nay là xã Phú Vinh, thành phố Huế).
