
Ngôi nhà nằm ở hướng Đông Nam với tầm nhìn ra sông. Trước đó, kiến trúc sư đã dành nhiều thời gian để nghiên cứu và tư vấn một số giải pháp về ngôi nhà đến gia chủ.

Mặc dù ngôi nhà nằm trong khu vực đang phát triển nhưng các nguyên tắc kiến trúc như chiều cao, khoảng lùi đều được tuân thủ theo quy định chung.

Ngoài ra, gia chủ là người tin vào phong thủy, ít nhiều ảnh hưởng đến quan điểm của kiến trúc sư. Tuy nhiên, kiến trúc sư cũng đã áp dụng hài hòa yếu tố phong thủy trong không gian sống như phòng ngủ, tủ quần áo.

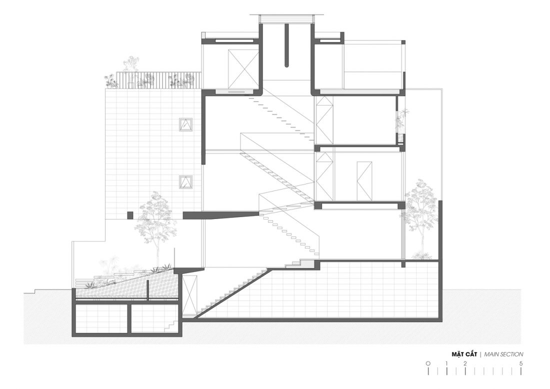
Ngôi nhà có kết cấu gồm 1 tầng hầm, 1 trệt, 2 lầu và sân thượng. Trong đó sân thượng là tập hợp các chức năng vừa là phòng thờ, kho và sân phơi bố trí bao quanh giếng trời.

Các không gian chức năng phía trước và sau nhà được kết nối với nhau qua cầu thang và hành lang bằng gỗ. Do ngôi nhà nằm ở hướng Đông Nam nên không những tránh được ánh nắng chiếu trực tiếp mà còn đón nhận được luồng gió lan vào các không gian bên trong.

Bên cạnh đó, chất liệu cũng là yếu tố quan trọng tạo nên tổng thể kiến trúc trọn vẹn. Đối với ngôi nhà này, tất cả đều sử dụng sàn đá mài, trần bê tông và nội thất bằng gỗ óc chó được kết hợp với nhau một cách hài hòa mang đến không gian ấm áp, gần gũi mà vẫn sang trọng.

Bản vẽ mặt cắt ngôi nhà 3 tầng hướng Đông Nam tại Quận 7

(Nguồn: HAarchitech)
-
Thay áo mới cho nhà hơn 50 năm tuổi gần gũi thiên nhiên tại Hồng Ngự
CafeLand - Ngôi nhà có diện tích 100m2 tọa lạc tại thành phố Hồng Ngự, tỉnh Đồng Tháp.
-
Nhà chung sân 3 thế hệ ở Hà Nội: Nghệ thuật chia không gian tối giản trên đất 58m²
Sống chung trên một mảnh đất với cha mẹ nhưng vẫn muốn có một không gian riêng tư, tiện nghi cho gia đình nhỏ của mình là bài toán phổ biến tại các đô thị lớn. Trên khu đất vỏn vẹn 5,8m x 10m nằm nép mình sau khoảng sân chung tại Hà Nội, một ngôi nhà...
-
Nhà 3 tầng Phan Rang: Hy sinh 30% diện tích thuần hóa nắng gió miền Trung
Phan Rang đón người ta bằng cái nắng gắt của vùng biển vịnh và những ngôi nhà phố hẹp dài thường vô tình trở thành những hộp nhiệt bí bách. Nhưng bước qua cánh cửa của ngôi nhà này là một cảm giác thư thái đến bất ngờ ập tới. Bằng cách cắt lại 30% qu...
-
Nhà gạch cánh bướm Quảng Ninh: Giải pháp vỏ bọc 3 lớp và nông nghiệp thẳng đứng
Nằm tiếp giáp với vùng đô thị mới tại thị trấn Mạo Khê, giữa những mảnh ruộng lâu đời, một khối hộp mang tên CUBE xuất hiện như một lời giải thông minh cho bài toán chuyển dịch nông thôn. Bằng cách dựng đứng những khoảng sân và xếp lớp hệ vỏ bọc, côn...
-
Nhà lô góc Nha Trang: Nghệ thuật phép trừ để sở hữu lõi xanh xuyên suốt
Trong bối cảnh đất chật người đông, đa số chủ nhà thường tìm cách tận dụng từng centimet vuông để xây dựng. Thế nhưng, ngôi nhà 2 mặt tiền này lại chọn cách đi ngược trong sự tiết chế. Thay vì lấp đầy khu đất góc phố bằng bê tông, công trình chấp nhậ...
-
Nhà 5 tầng Thái Bình lột xác với mặt tiền như thảm thực vật bay lơ lửng giữa trời
Ngôi nhà tại Thái Bình đã chọn cách phản kháng mang cả cánh đồng lên cao. Với triết lý không chỉ giải quyết bài toán ở và cho thuê, mà còn kiến tạo một bức rèm thực vật lơ lửng, tự cung tự cấp rau xanh và gắn kết tình làng nghĩa xóm qua những mầm cây...
