
Được xây dựng trên khu đất rộng 300m2 vào năm 2017, ngôi nhà thu hút, tạo ấn tượng người nhìn ngay từ cái nhìn đầu tiên.

Mái dốc của ngôi nhà giúp hạn chế tối đa nắng nóng vào mùa khô ở khu vực miền Nam Việt Nam.

Lấy cảm hứng xây dựng từ những ngôi nhà truyền thống, chủ nhân muốn thiết kế ngôi nhà có cấu trúc 3 không gian riêng biệt và mái dốc nhưng kiến trúc hiện đại và mạnh mẽ.

Để tối đa hiệu quả thông gió, ngôi nhà được chia mái ra làm hai phần và có khoảng sân. Kết nối không gian hai mái này bằng hành lang dọc với các bức tường có lỗ giúp gió lưu thông.

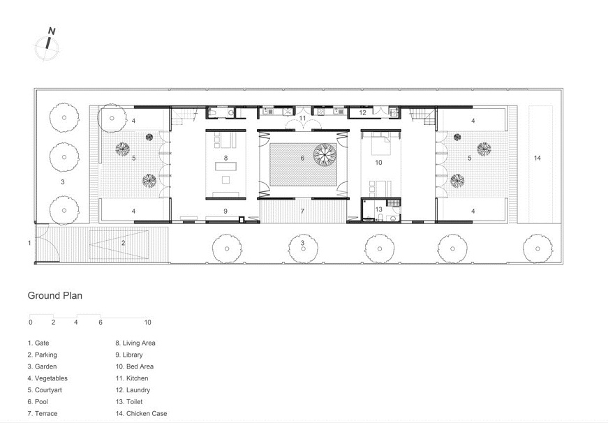
Mặt bằng tầng trệt.


Căn nhà được thiết kế theo không gian mở, các khu vực chức năng liên tục nối tiếp nhau, được phân định bằng ánh sáng với cường độ khác nhau.

Khoảng sân của ngôi nhà được lát bằng gạch nung có tác dụng hấp thụ nước mưa và giảm nhiệt trên sàn. Tiếp đến là một khoảng hiên nhỏ với phòng khách đơn giản.

Phía trên phòng khách có tầng lửng có 2 phòng ngủ, khu thư giãn, đọc sách và một hành lang dài kết nối mọi khu vực trong nhà qua các cầu thang.

Theo chia sẻ của chủ nhân ngôi nhà, họ muốn không gian liên tục để con em có thể chơi, di chuyển tự do mà không bị giới hạn bởi các bức tường.


Khu vực bếp và các không gian chức năng khác nằm ở phía Bắc và đi dọc theo ngôi nhà, thuận tiện cho chủ nhân khi có khách đến thăm.


Hồ bơi nhỏ được thiết kế ở khu vực chuyển đổi giữa phòng khách và phòng bếp.

Một giếng trời được thiết kế phía trên bể bơi giúp không khí thoáng mát. Dọc bức tường được để hổng giúp đón gió và ánh sáng tự nhiên.

Phía trong là khu vực phòng bếp và phòng ngủ đơn giản.

Thiết kế đặc biệt giúp căn nhà luôn thông thoáng quanh năm.


