
Giới thiệu về ngôi nhà
Thể loại công trình: nhà phố vườn 1 trệt
Địa điểm: Khu dân cư thành phố Thủ Đức
Diện tích khu đất: 688m2
Diện tích xây dựng: 180m2
Năm hoàn thành: 2024
Kiến trúc, kết cấu ngôi nhà
Điểm đặc biệt đầu tiên có thể nhận thấy chính là mặt tiền gạch độc đáo. Những viên gạch đất sét mỏng, dài được xếp đặt theo phương pháp "raked", tạo nên những khoảng trống không đều giữa các viên gạch. Kỹ thuật này không chỉ mang lại vẻ đẹp thẩm mỹ mà còn có tác dụng chống nóng hiệu quả.

Không gian nội thất
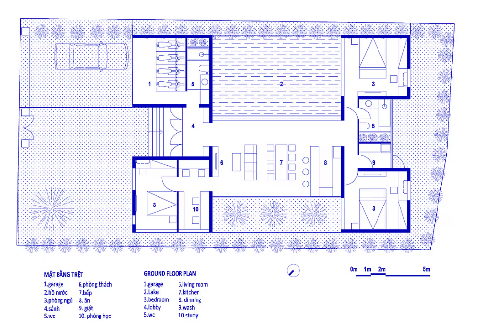
Bước vào bên trong, chúng ta sẽ thấy ngôi nhà được chia thành ba khối chính với các kích thước khác nhau.

Khối đầu tiên bao gồm gara, phòng khách và phòng ngủ phụ.

Khối thứ hai là không gian sinh hoạt chung và nhà bếp, được thiết kế mở với cửa kính từ sàn đến trần.

Cuối cùng là khu vực phòng ngủ Master và phòng ngủ phụ ngăn cách với nhau là phòng tắm và phòng giặt ủi ở phía sau.

Phòng ngủ Master được bố trí hướng Đông, có cửa bên hướng ra hồ nước Đông Nam.

Trong khi đó, phòng ngủ phụ hướng Nam cùng style phòng ngủ Master, chỉ khác khi điểm chút màu hồng trang trí tại tab đầu giường và vị trí bàn làm việc.

Một điểm nhấn đáng chú ý khác của ngôi nhà chính là hệ cửa bao gồm: cửa sổ và cửa ra vào đều tích hợp lam Z thông gió, được bố trí dưới thấp để hút khí lạnh và trên cao để thoát khí nóng ra ngoài một cách dễ dàng.

Điều này giúp ngôi nhà luôn mát mẻ mà không cần sự can thiệp của con người.
Khu vực sân trong là một không gian xanh tuyệt đẹp với hồ nước nhỏ và các loại cây thủy sinh.

Đây không chỉ là nơi thư giãn lý tưởng mà còn đóng vai trò quan trọng trong việc điều hòa nhiệt độ cho toàn bộ ngôi nhà.
Theo các kiến trúc sư, nhiệt độ ở khu vực này có thể thấp hơn 6-8 độ C so với khu vực xây dựng xung quanh.

Chất liệu nội thất và gam màu
Ngôi nhà sử dụng chủ yếu gạch đặc, gạch lỗ, bê tông, kính và gỗ, vừa có chức năng giảm thiểu tác động nhiệt ánh nắng mặt trời vừa thân thiện môi trường.

Tổng thể ngôi nhà là sự kết hợp hài hòa giữa kiến trúc hiện đại và giải pháp thiết kế sinh khí hậu, nhằm tạo ra một môi trường sống thoải mái và bền vững. Từ việc sử dụng vật liệu, thiết kế cửa sổ khoa học đến việc tạo ra các không gian xanh, mọi chi tiết đều được tính toán kỹ lưỡng để thích nghi với tình trạng biến đổi khí hậu và nhiệt độ ngày càng tăng.

Ngôi nhà không chỉ là một không gian sống lý tưởng mà còn là nguồn cảm hứng cho nhiều công trình trong tương lai, hướng tới một cuộc sống chất lượng và thân thiện với môi trường hơn.

Bản vẽ mặt bằng về giải pháp kiến trúc sinh khí hậu vào trong ngôi nhà phố ở Thành phố Thủ Đức.

(Nguồn: CTA – Creative Architects)
-
Nhà phố Cần Thơ như bản giao hưởng giữa truyền thuyết Nhật và kiến trúc hiện đại
Giữa lòng thành phố Cần Thơ, ngôi nhà thu hút mọi ánh nhìn bởi vẻ đẹp vừa lộng lẫy vừa dịu dàng như ánh trăng giữa màn đêm. Từ những nét vẽ ban đầu cho đến khi hoàn thiện, là sự kết hợp tinh tế giữa những ảnh hưởng truyền thống Nhật Bản và các yếu tố kiến trúc hiện đại.
-
Nhà chung sân 3 thế hệ ở Hà Nội: Nghệ thuật chia không gian tối giản trên đất 58m²
Sống chung trên một mảnh đất với cha mẹ nhưng vẫn muốn có một không gian riêng tư, tiện nghi cho gia đình nhỏ của mình là bài toán phổ biến tại các đô thị lớn. Trên khu đất vỏn vẹn 5,8m x 10m nằm nép mình sau khoảng sân chung tại Hà Nội, một ngôi nhà...
-
Nhà 3 tầng Phan Rang: Hy sinh 30% diện tích thuần hóa nắng gió miền Trung
Phan Rang đón người ta bằng cái nắng gắt của vùng biển vịnh và những ngôi nhà phố hẹp dài thường vô tình trở thành những hộp nhiệt bí bách. Nhưng bước qua cánh cửa của ngôi nhà này là một cảm giác thư thái đến bất ngờ ập tới. Bằng cách cắt lại 30% qu...
-
Nhà gạch cánh bướm Quảng Ninh: Giải pháp vỏ bọc 3 lớp và nông nghiệp thẳng đứng
Nằm tiếp giáp với vùng đô thị mới tại thị trấn Mạo Khê, giữa những mảnh ruộng lâu đời, một khối hộp mang tên CUBE xuất hiện như một lời giải thông minh cho bài toán chuyển dịch nông thôn. Bằng cách dựng đứng những khoảng sân và xếp lớp hệ vỏ bọc, côn...
-
Nhà lô góc Nha Trang: Nghệ thuật phép trừ để sở hữu lõi xanh xuyên suốt
Trong bối cảnh đất chật người đông, đa số chủ nhà thường tìm cách tận dụng từng centimet vuông để xây dựng. Thế nhưng, ngôi nhà 2 mặt tiền này lại chọn cách đi ngược trong sự tiết chế. Thay vì lấp đầy khu đất góc phố bằng bê tông, công trình chấp nhậ...
-
Nhà 5 tầng Thái Bình lột xác với mặt tiền như thảm thực vật bay lơ lửng giữa trời
Ngôi nhà tại Thái Bình đã chọn cách phản kháng mang cả cánh đồng lên cao. Với triết lý không chỉ giải quyết bài toán ở và cho thuê, mà còn kiến tạo một bức rèm thực vật lơ lửng, tự cung tự cấp rau xanh và gắn kết tình làng nghĩa xóm qua những mầm cây...
