
Gia chủ đã sống trong ngôi nhà phố thông thường trong một thời gian dài và mong muốn có một trải nghiệm sống mới tại ngôi nhà sau khi cải tạo mới. Vì vậy đối với dự án cải tạo này, kiến trúc sư đã quyết định giữ nguyên khung kết cấu ban đầu chỉ bỏ dỡ các bức tường và cầu thang hiện có để tạo sự lưu thông mới và phân chia lại các phòng.

Đặc biệt kiến trúc sư đã cố gắng thay đổi những cấu trúc vuông vắn của nhà phố thông thường thành những đường xéo giao nhau. Vì vậy mà xuyên suốt ngôi nhà đều xuất hiện những đường xéo.

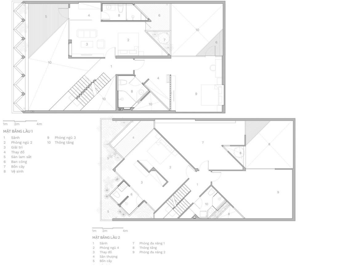
Vì ngôi nhà cũ có bố cục hình chữ nhật với nhiều phòng nhỏ, giải pháp tích hợp các đường chéo 45 độ của hình tam giác tạo ra những bức tường mới cắt ngang mặt bằng theo đường chéo. Điều này không chỉ định hình lại các phòng mà còn mở ra phần giếng trời, sân trong và khoảng thông tầng giúp tối ưu hóa ánh sáng tự nhiên.

Việc phân chia các không gian hình tam giác có cùng điểm giao nhau giúp việc di chuyển các phòng được dễ dàng. Mỗi phòng đều có cửa để mở thông ra khu vực giếng trời tạo điều kiện thông thoáng và linh hoạt hơn.

Ngôn ngữ đường chéo mới cũng được lặp lại trên các bề mặt nội thất và các khoảng trống của ngôi nhà như gạch lát nền, tường gạch terrazzo và đá mài tạo nên sự thống nhất về mặt hình học cho công trình.

Những bức tường được chia xéo 45 độ và mặt tiền cũng được nhấn theo các khối hình tam giác nhô ra.

Ngoài ra, yêu cầu không gian sinh hoạt chung của các thành viên tập trung tại tầng trệt nên kiến trúc sư đã thiết kế trang trí đảm bảo đầy đủ công năng, thông thoáng, đón ánh sáng tự nhiên qua giếng trời và hệ cửa kính xếp lùa – kết nối tối đa khu vực bếp và ngoài sân vườn phía sau thành một không gian lớn. Từ đó mọi người sẽ cảm thấy ngôi nhà rộng hơn và thoải mái hơn.

Ngôi nhà sau cải tạo có 4 phòng ngủ được phân bổ từ tầng trệt đến lầu 2, trong đó phòng ngủ của bố mẹ ưu tiên bố trí tầng trệt, lầu 2 có 2 phòng ngủ thiết kế trước và sau nhà, mỗi phòng ngủ đều mở ra ban công bằng sắt hướng ra khoảng thông tầng. Còn lại 1 phòng ngủ ở lầu 2 kết nối với 2 phòng đa năng khác.

Chính vì phá vỡ cấu trúc vuông vắn thành những đường xéo nghiêng kết hợp với khối hình tam giác từ ngoài vào trong, từ thiết kế đến chất liệu nên đã mang đến một sự trải nghiệm sống mới cho chủ nhà.

Mặt bằng 2D cải tạo nhà cũ thành nhà phố hình tam giác từ ngoài vào trong tại quận Tân Phú.

(Khuôn Studio)
-
Không gian sống thư thái của gia chủ thích sự tối giản ở Biên Hòa
Ngôi nhà thiết kế tối gian mang cảm giác thư thái có diện tích 190m2 ở thành phố Biên Hòa, Đồng Nai.
-
Nhà nông thôn ngoại thành Hà Nội phá vỡ sự phân chia kín đáo của nhà phố
Ngôi nhà nhỏ này được thiết kế dành cho một gia đình ba thế hệ điển hình, bao gồm bố mẹ già, hai vợ chồng trẻ và những đứa con còn nhỏ, mang trong mình sứ mệnh kế thừa kiến trúc nông thôn nhưng vẫn thổi vào đó một hơi thở mới....
-
Nhà 2 tầng Thủ Đức khai mở không gian bằng thiết kế tối giản và nguyên tắc tối thượng
Một không gian sống hiện đại được thiết kế với tinh thần tối giản và sự nhất quán tuyệt đối về màu sắc và vật liệu. Đặc biệt, hãy chiêm ngưỡng cách ánh sáng tự nhiên được kiểm soát qua cửa kính lớn và rèm mềm mại, cùng những khu vực cá nhân hóa đầy c...
-
Xây nhà 70m2 trên đất xiên góc TPHCM ưu tiên thiết kế lùi cấp tăng chiều sâu
Một ngôi nhà với hình dáng xiên góc bất thường, làm thế nào để đảm bảo sự riêng tư tuyệt đối nhưng vẫn ngập tràn ánh sáng tự nhiên? Khám phá giải pháp mặt tiền lùi cấp và lưới thép nhiều lớp, tạo nên một lớp đệm đô thị bí ẩn, vừa che chắn ánh nhìn, v...
-
Nhà Hà Nội với sàn lệch cao độ phá vỡ sự đồng nhất, không thay đổi ngoại thất
Một sự can thiệp thầm lặng nhưng quyết đoán mà không làm thay đổi diện mạo bên ngoài của khu phố. Với cách phá vỡ cấu trúc sàn tầng bằng nhau điển hình của nhà phố đầu những năm 2000, thay thế bằng một hệ thống sàn lệch cao độ tạo ra sự liên tục khôn...
-
Nhà ống đa năng kết hợp hai phòng khám Hà Nội thiết kế thích ứng với thay đổi mọi thời điểm
Một ngôi nhà đứng sừng sững như một ngưỡng không gian kỳ lạ, hòa giải giữa đô thị dày đặc và cảnh quan xung quanh. Đây không chỉ là nơi ở, mà là một sự tái hợp của những ký ức và lễ nghi gia đình qua các thế hệ....
