Theo Kế hoạch số 376/BQLKKT-QHXD, đây là bước đi quan trọng nhằm bảo đảm tính minh bạch, dân chủ trong công tác quy hoạch, đồng thời tiếp thu ý kiến của các cơ quan, tổ chức, cá nhân và cộng đồng dân cư có liên quan, nhất là các hộ dân sinh sống giáp ranh khu vực dự kiến phát triển khu công nghiệp.
Hé lộ vị trí và quy mô khu công nghiệp mới ở Đức Hòa
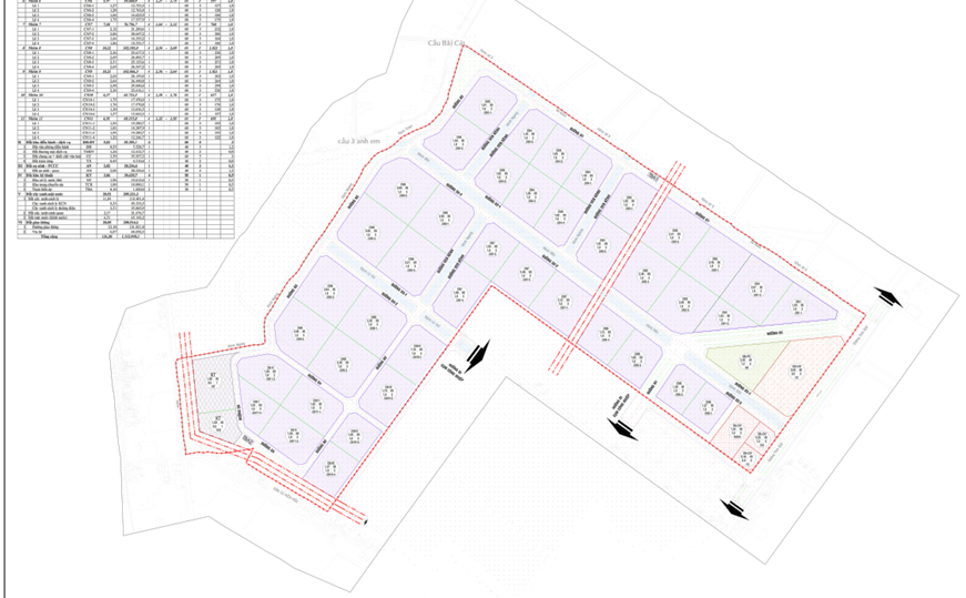
Theo hồ sơ được công bố, khu đất lập quy hoạch Khu công nghiệp Anh Hồng 2 thuộc xã Hiệp Hòa, tỉnh Tây Ninh (trước đây là thị trấn Hiệp Hòa, huyện Đức Hòa, tỉnh Long An, do điều chỉnh địa giới hành chính).
.png)
Ranh giới khu vực nghiên cứu được xác định cụ thể: Phía Đông Bắc giáp Kênh số 9, rộng khoảng 19m; Phía Đông Nam giáp Tỉnh lộ 822, hàng rào Cụm công nghiệp Hiệp Hòa và khu dân cư, tái định cư Anh Hồng; Phía Tây Bắc giáp rạch Thiên (rộng khoảng 30m) và tuyến kênh Ngang; Phía Tây Nam giáp kênh nước, hàng rào Cụm công nghiệp Hiệp Hòa và khu dân cư hiện hữu.
Quy mô khu vực nghiên cứu khoảng 131,20 ha, được định hướng phát triển thành khu công nghiệp đa ngành, ưu tiên thu hút các dự án công nghệ sạch, hiện đại, phù hợp với định hướng công nghiệp bền vững của tỉnh.
Lấy ý kiến cộng đồng trong 20 ngày: Người dân góp ý bằng cách nào?
Theo kế hoạch, hồ sơ đồ án điều chỉnh quy hoạch phân khu sẽ được niêm yết công khai tại:
Trụ sở HĐND – UBND xã Hiệp Hòa;
Cổng thông tin điện tử của Ban Quản lý Khu kinh tế tỉnh Tây Ninh.
Trong thời gian 20 ngày, người dân và các tổ chức liên quan có thể gửi phiếu góp ý trực tiếp qua hòm thư tại UBND xã Hiệp Hòa hoặc gửi ý kiến bằng văn bản, email về Ban Quản lý Khu kinh tế tỉnh Tây Ninh. Toàn bộ ý kiến sẽ được tiếp nhận, tổng hợp và giải đáp theo quy định.
Sau khi kết thúc thời gian lấy ý kiến, UBND xã Hiệp Hòa có trách nhiệm tổng hợp ý kiến cộng đồng, gửi về Ban Quản lý Khu kinh tế để phối hợp với đơn vị tư vấn – Công ty Cổ phần Tư vấn và Đầu tư Nam Quốc tiếp thu, giải trình và hoàn thiện hồ sơ quy hoạch.
Những nội dung chính trong hồ sơ quy hoạch 1/2.000
Nội dung lấy ý kiến tập trung vào dự thảo thuyết minh tóm tắt và các bản vẽ quy hoạch phân khu tỷ lệ 1/2.000, bao gồm:
Phương án bố trí sử dụng đất;
Hệ thống hạ tầng kỹ thuật, giao thông;
Giải pháp bảo vệ môi trường, thoát nước;
Các định hướng tổ chức không gian và giải pháp quy hoạch liên quan.
Đây là những nội dung có tác động trực tiếp đến môi trường sống của người dân khu vực cũng như hiệu quả khai thác, phát triển khu công nghiệp trong dài hạn.
.png)
Từ hồ sơ Long An đến quy hoạch Tây Ninh
Trước đó, Khu công nghiệp Anh Hồng 2 đã được Thủ tướng Chính phủ bổ sung vào quy hoạch phát triển các khu công nghiệp tỉnh Long An từ năm 2020, với diện tích 131,19 ha. Sau khi điều chỉnh địa giới hành chính, dự án được chuyển về tỉnh Tây Ninh và hiện nằm trong danh sách các khu công nghiệp đang hoàn thiện thủ tục quy hoạch.
Theo thông tin quy hoạch, Anh Hồng 2 là một trong 12 khu công nghiệp mới của Tây Ninh, thuộc nhóm các dự án với tổng diện tích hơn 1.700 ha đang được tỉnh tập trung hoàn tất thủ tục để chấp thuận chủ trương đầu tư.
Anh Hồng 2 trong bức tranh phát triển công nghiệp Tây Ninh
Tây Ninh đang đẩy mạnh phát triển công nghiệp theo hướng xanh và bền vững. Quy hoạch tỉnh đến năm 2030, tầm nhìn 2050 dự kiến hình thành 59 khu công nghiệp, với tổng diện tích gần 16.800 ha.
Riêng năm 2025, các khu công nghiệp trên địa bàn đã thu hút 274 dự án mới (gồm 184 dự án FDI và 90 dự án trong nước), cho thuê hơn 219 ha đất, góp phần đưa GRDP tăng trưởng 9,12%, thuộc nhóm cao trong vùng Đông Nam Bộ. Thu ngân sách từ công nghiệp liên tục lập kỷ lục, khẳng định vai trò động lực của lĩnh vực này.

Xem vị trí dự án trên bản đồ quy hoạch
Minh bạch quy hoạch, giảm rủi ro cho giai đoạn triển khai
Việc điều chỉnh quy hoạch phân khu Khu công nghiệp Anh Hồng 2 nhằm cập nhật các định hướng mới, ưu tiên công nghệ cao, thân thiện môi trường, đồng thời tăng cường kết nối hạ tầng với Tỉnh lộ 822 và hệ thống kênh rạch khu vực. Dự án được kỳ vọng tạo thêm việc làm, thúc đẩy đô thị hóa tại xã Hiệp Hòa – nơi đang tập trung nhiều cụm công nghiệp và khu dân cư tái định cư.
Đáng chú ý, hoạt động lấy ý kiến cộng đồng được xem là bước “lọc” quan trọng để giảm thiểu các hệ lụy về môi trường, giao thông và đời sống dân cư trong quá trình triển khai sau này. Ban Quản lý Khu kinh tế tỉnh Tây Ninh khẳng định sẽ tiếp thu các ý kiến hợp lý, làm cơ sở hoàn thiện đồ án quy hoạch trước khi trình phê duyệt.
Trong bối cảnh Tây Ninh liên tục khởi công và mở rộng các khu công nghiệp quy mô lớn thời gian gần đây, Khu công nghiệp Anh Hồng 2 được kỳ vọng sẽ là mảnh ghép quan trọng trong chiến lược phát triển công nghiệp của tỉnh. Người dân và các tổ chức liên quan được khuyến nghị tham gia góp ý đầy đủ trong thời gian từ 30/01 đến 23/02/2026, nhằm bảo đảm dự án được triển khai hài hòa giữa mục tiêu kinh tế, xã hội và môi trường ngay từ khâu quy hoạch.
-
Tây Ninh có 12 khu công nghiệp đang lập quy hoạch
Quy hoạch tỉnh Tây Ninh giai đoạn 2021-2030, tầm nhìn đến năm 2050 xác định có 59 khu công nghiệp với tổng diện tích hơn 16.800ha, trong đó 47 khu công nghiệp đã được thành lập và 12 khu công nghiệp đang lập quy hoạch, chờ chấp thuận chủ trương đầu tư.
-
Toàn cảnh quy hoạch khu công nghiệp tỉnh Tây Ninh đến năm 2030
Theo phương án phát triển hệ thống khu công nghiệp tỉnh Tây Ninh mới nhất, đến năm 2030 tổng diện tích khu công nghiệp vào khoảng 12.050 ha.
-
Long An: Thêm 1 khu công nghiệp ven sông tại Đức Hòa vào quy hoạch phát triển
CafeLand - Thủ tướng Chính phủ đồng ý bổ sung khu công nghiệp Anh Hồng 2 với diện tích 131,19 ha (không bao gồm phần cụm công nghiệp 50 ha) tại thị trấn Hiệp Hòa, huyện Đức Hòa, tỉnh Long An vào quy hoạch phát triển các khu công nghiệp đến năm 2020.
-
Tây Ninh tăng tốc loạt dự án đầu tư công, hơn 32.000 tỷ vốn đang chờ giải ngân
Tây Ninh đang tăng tốc giải ngân hơn 32.000 tỷ đồng vốn đầu tư công năm 2026, đồng thời yêu cầu các sở, ngành, địa phương và chủ đầu tư tập trung cao độ cho công tác chuẩn bị đầu tư, chủ động phối hợp tháo gỡ khó khăn, rút ngắn thời gian thẩm định và...
-
Quy hoạch tỉnh Tây Ninh: Định hình không gian phát triển mới, khẳng định vai trò cửa ngõ phía Tây vùng Đông Nam Bộ
Chủ tịch UBND tỉnh Tây Ninh Lê Văn Hẳn vừa ký ban hành Quyết định số 2968/QĐ-UBND, ngày 26/02/2026 phê duyệt điều chỉnh Quy hoạch tỉnh thời kỳ 2021–2030, tầm nhìn đến năm 2050. Quy hoạch xác định rõ định hướng phát triển không gian kinh tế - xã hội s...
-
ĐT.830E - ĐT.830C - ĐT.827E: Ba “mũi nhọn” hạ tầng đang được Tây Ninh đẩy nhanh tiến độ
Các tuyến ĐT.830E, ĐT.830C và ĐT.827E không chỉ là dự án giao thông, mà là mắt xích quan trọng trong chiến lược phát triển hạ tầng của Tây Ninh. Kiểm tra thực địa, lãnh đạo tỉnh yêu cầu tháo gỡ ngay điểm nghẽn, bảo đảm tiến độ và chất lượng công trìn...
-
Từ cửa ngõ phát triển năng động đến trung tâm kết nối chiến lược
Tỉnh Tây Ninh đứng trước những cơ hội lớn để bứt phá, khẳng định vị thế là một trong những địa phương có nền kinh tế phát triển năng động, bền vững, giữ vai trò trung tâm kết nối chiến lược giữa Đông Nam Bộ, Đồng bằng sông Cửu Long và Campuchia. Với ...
-
Quy hoạch Tây Ninh 2030: Hình thành Khu phức hợp y tế quy mô 100ha giáp ranh TP.HCM
Quy hoạch tỉnh Tây Ninh xác định hình thành 1 Khu phức hợp về y tế quy mô 100ha do Bộ Y tế quản lý, đặt tại địa bàn giáp ranh TP.HCM. Với quy mô lớn và vị trí chiến lược, dự án hứa hẹn tạo nên diện mạo mới cho hạ tầng y tế của tỉnh trong giai đoạn tớ...
.png)

.png)
