-
Thành phố duy nhất ĐBSCL sắp đấu giá hơn 1,1 triệu mét vuông đất
Ủy ban nhân dân thành phố Cần Thơ ban hành Quyết định số 1913/QĐ-UBND phê duyệt Kế hoạch thực hiện đấu giá quyền sử dụng đất năm 2026 trên địa bàn thành phố. Đây là sự kiện quan trọng, đánh dấu bước tiến mạnh mẽ trong việc khai thác quỹ đất công, tăng nguồn thu ngân sách và tạo điều kiện cho các tổ chức, cá nhân đầu tư phát triển kinh tế - xã hội.
-
Toàn cảnh vị trí xây cầu Cần Giờ 13.200 tỷ: Sau động thổ, khu vực này đang ra sao?
Dự án cầu Cần Giờ dài khoảng 6,3km, quy mô 6 làn xe, tổng mức đầu tư hơn 13.200 tỷ đồng đã được động thổ từ ngày 15/1. Khi hoàn thành, công trình không chỉ thay thế phà Bình Khánh mà còn tạo cú hích cho hạ tầng và bất động sản khu Nam TP.HCM.
-
Đồng Nai hé lộ 51 điểm du lịch nghỉ dưỡng hơn 42.000ha
Chủ tịch UBND tỉnh Đồng Nai đã ban hành Quyết định số 1606/QĐ-UBND , phê duyệt Đề án điều chỉnh, bổ sung Đề án Du lịch sinh thái, nghỉ dưỡng, giải quyết Khu Bảo tồn Thiên nhiên - Văn hóa Đồng Nai giai đoạn 2021-2030 . Đây được xem là một bước quan trọng, chính thức “hé lộ” quy hoạch chi tiết 51 điểm du lịch sinh thái cùng 37 tuyến khám phá với tổng chiều dài 1,229 km , mở ra cơ hội phát triển du lịch xanh bền vững gắn liền với bảo trì tồn tại đặc biệt.
-
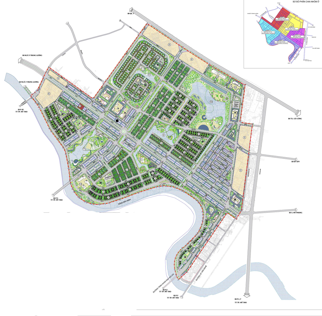
Đồng Tháp thông tin pháp lý về khu đô thị 26.000 tỷ ngay trung tâm tỉnh
UBND tỉnh Đồng Tháp đã ban hành Công văn số 1145/UBND-ĐTQH về việc phát triển Khu đô thị Đông Bắc thành phố Mỹ Tho. Văn bản do Phó Chủ tịch UBND Tỉnh Nguyễn Thành Diệu ký, gửi Sở Xây dựng và UBND phường Đạo Thạnh, có thể hiện quyết tâm khẩn cấp giải quyết vấn đề, hoàn thiện hồ sơ để sớm lựa chọn nhà tư cho siêu dự án này.
-
Thị Trường
-
Tổ chức khánh thành, khởi công nhiều công trình lớn ngày 19/12
05/09/2025 6:30 PM
Thủ tướng yêu cầu mỗi bộ, ngành, địa phương, Tập đoàn, Tổng Công ty, doanh nghiệp tư nhân, doanh nghiệp FDI phấn đấu có ít nhất 2 dự án, công trình đủ điều kiện khánh thành hoặc khởi công vào ngày 19/12 tới.
-
Gia Lai công bố 54 dự án trọng điểm thu hút đầu tư
05/09/2025 5:22 PM
Tỉnh Gia Lai vừa công bố danh mục dự án trọng điểm thu hút đầu tư giai đoạn 2025 – 2030.
-
Giá vàng lập đỉnh: Nếu mua vàng một năm trước, giờ lãi bao nhiêu?
05/09/2025 4:42 PM
Giá vàng thế giới vừa lập kỷ lục mới, khiến giới đầu tư đặt câu hỏi: nếu mua vàng cách đây một năm, nay bán ra sẽ lãi bao nhiêu? Trong bối cảnh vàng liên tiếp bứt phá, nhà đầu tư đang đứng trước lựa chọn: chốt lời ngay hay tiếp tục giữ vàng như kênh trú ẩn an toàn.
-
Tiến độ giải phóng mặt bằng dự án đường Hoàng Sa – Dốc Sỏi 3.500 tỷ đồng tại Quảng Ngãi
05/09/2025 4:15 PM
Ông Nguyễn Ngọc Sâm, Phó Chủ tịch UBND tỉnh Quảng Ngãi vừa chủ trì buổi làm việc với Trung tâm Phát triển quỹ đất tỉnh để nghe báo cáo tình hình thực hiện công tác bồi thường, giải phóng mặt bằng dự án đường Hoàng Sa – Dốc Sỏi.
-
UBND TP.HCM vừa có chỉ đạo mới liên quan các dự án đường sắt đô thị do Vinspeed, Thaco, Sovico, Becamex đề xuất
05/09/2025 3:43 PM
Lãnh đạo TP.HCM yêu cầu các sở, ngành làm việc với nhà đầu tư, tổng hợp ý kiến để tham mưu về các đề xuất của Vinspeed, Thaco, Sovico, Becamex thực hiện các dự án đường sắt đô thị (metro).
-
Cổ phiếu của một doanh nghiệp địa ốc bị nhắc nhở
05/09/2025 3:19 PM
Ngày 4/9, Sở Giao dịch Chứng khoán TP.HCM (HoSE) đã phát đi thông báo nhắc nhở CTCP Tập đoàn Bamboo Capital (BCG) về việc chậm công bố báo cáo tài chính soát xét bán niên 2025 (riêng và hợp nhất).
-
Ông Trump tuyên bố sắp áp thuế mạnh với chip nhập khẩu, nhưng Apple và một số hãng có thể “thoát hiểm”
05/09/2025 3:02 PM
Tổng thống Mỹ Donald Trump ngày 4/9 tuyên bố sẽ sớm áp mức thuế “khá đáng kể” đối với chip và chất bán dẫn nhập khẩu từ các công ty không đưa sản xuất về Mỹ. Tuy nhiên, những tập đoàn công nghệ như Apple – vốn đã cam kết gia tăng đầu tư trong nước – sẽ ít chịu tác động.
-
Bắc Ninh xin ý kiến triển khai khu công nghệ thông tin gần 11.000 tỷ đồng
05/09/2025 2:27 PM
UBND tỉnh Bắc Ninh vừa có công văn gửi Bộ Tài chính, Bộ Xây dựng và Bộ Nông nghiệp & Môi trường để xin ý kiến về chủ trương đầu tư dự án Khu công nghệ thông tin tập trung do CTCP Xuân Cầu Holdings đề xuất với tổng mức đầu tư lên tới 10.765 tỷ đồng.
-
UBND tỉnh Quảng Trị chỉ đạo tăng cường công tác quản lý nhà nước đối với hoạt động đấu giá tài sản
05/09/2025 1:59 PM
UBND tỉnh Quảng Trị cho biết, thời gian qua hoạt động đấu giá tài sản nói chung và đấu giá quyền sử dụng đất nói riêng trên địa bàn tỉnh đã đi vào nề nếp và đạt được nhiều kết quả.
-
Bỏ đề xuất đánh thuế 20% tiền lãi bán chứng khoán
05/09/2025 1:33 PM
Bộ Tài chính đã bỏ phương án tính thuế 20% trên phần lãi khi nhà đầu tư cá nhân bán chứng khoán.
-
Trình Chính phủ sửa biểu thuế thu nhập cá nhân còn 5 bậc, mức thuế cao nhất 35%
05/09/2025 1:17 PM
Bộ Tài chính vừa trình dự thảo Luật Thuế thu nhập cá nhân (sửa đổi), đề xuất rút gọn biểu thuế lũy tiến từ 7 bậc xuống 5, mức cao nhất 35%.
-
TP.HCM yêu cầu đẩy nhanh tiến độ xây trung tâm tài chính quốc tế 172.000 tỷ đồng
05/09/2025 1:03 PM
UBND TP.HCM yêu cầu các sở, ngành gấp rút triển khai các bước chuẩn bị trong tháng 9, nhằm hoàn tất báo cáo xây Trung tâm tài chính quốc tế.
-
Lộ diện ga đường sắt cao tốc “siêu khủng” tại Ninh Bình, quy hoạch hơn 3.400 ha
05/09/2025 1:00 PM
Dự án đường sắt tốc độ cao Bắc – Nam đoạn qua tỉnh Ninh Bình đang hé lộ những thông số quy mô chưa từng có, hứa hẹn tạo nên bước ngoặt phát triển hạ tầng – đô thị toàn vùng.
-
Cổ phiếu TDH của Thủ Đức House chuyển từ diện kiểm soát sang diện cảnh báo
05/09/2025 12:05 PM
Sở Giao dịch Chứng khoán TP. HCM (HOSE) vừa ra quyết định chuyển cổ phiếu của Công ty Cổ phần Phát triển Nhà Thủ Đức (mã chứng khoán: TDH) từ diện kiểm soát sang diện cảnh báo, có hiệu lực từ ngày 08/09/2025.
-
Tổng thống Trump tiếp “ông lớn” công nghệ tại Nhà Trắng: AI trở thành trung tâm bàn tiệc
05/09/2025 11:30 AM
Tổng thống Mỹ Donald Trump ngày 4/9 đã tiếp đón một nhóm các lãnh đạo công ty công nghệ hàng đầu tại Nhà Trắng, nhân dịp ông giới thiệu những nghiên cứu mới về trí tuệ nhân tạo (AI) và nhấn mạnh các khoản đầu tư mà các công ty này đang triển khai trên khắp nước Mỹ.

















