Cụ thể, HĐQT Khang Điền thông qua phương án góp 659,34 tỉ đồng vào Công ty TNHH Tư vấn Quốc Tế (công ty con do Khang Điền sở hữu 99,9% vốn) để Quốc Tế tăng vốn điều lệ của Công ty TNHH Đầu tư Kinh doanh Bất động sản Bình Trưng nhằm đầu tư gia tăng quỹ đất tại quận 2.
Hiện Bình Trưng có vốn điều lệ 200 tỉ đồng, trong đó Quốc Tế góp 199,8 tỉ đồng (tương ứng tỉ lệ sở hữu 99,9%).

Sau 2 năm triển khai, Verosa Park Khang Điền sẽ được bàn giao trong quý 2/2021
Đồng thời, HĐQT Khang Điền cũng thông qua phương án góp 399,6 tỉ đồng vào Công ty TNHH Đầu tư Kinh doanh Bất động sản Kim Phát (công ty con do Khang Điền sở hữu 99,9% vốn).
Mục đích là để Kim Phát tăng vốn điều lệ của Công ty TNHH Phát triển Bất động sản Phú Hải nhằm đầu tư gia tăng quỹ đất tại quận 2. Phú Hải hiện có vốn điều lệ 100 tỉ đồng, trong đó Kim Phát sở hữu 99,9% vốn, tương ứng số tiền 99,9 tỉ đồng.
Một phần tiền sử dụng để Khang Điền tăng vốn cho hai công ty con sẽ được lấy từ nguồn tiền của đợt phát hành cổ phiếu ra công chúng năm 2017.
HĐQT giao quyền cho Tổng Giám đốc Nhà Khang Điền ký kết các văn bản, tài liệu, chứng từ liên quan đến việc điều chuyển tiền tăng vốn với cho Quốc Tế và Kim Phát theo quy định.
Hạn mức điều chuyển tiền mỗi lần không vượt quá 100 tỉ đồng thông qua việc ký kết hợp đồng vay tiền, hợp đồng mượn tiền được quy định tại Nghị quyết số 01/NQ-HĐQT.
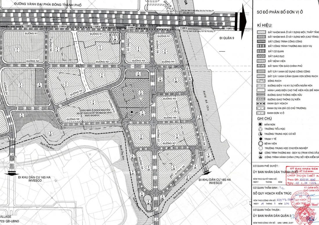
Được biết, Bình Trưng là chủ đầu tư dự án Khu nhà ở phường Bình Trưng Đông, Quận 2 (tên thương mại: Clarita) đã được UBND TP.HCM chấp thuận đầu tư tại Quyết định số 6294/QĐ-UBND ngày 30/11/2015.
Theo quy hoạch, dự án có tổng diện tích 57.000 m2 (mật độ xây dựng 26,97%) với tổng số 159 căn nhà liên kế có sân vườn và biệt thự, đáp ứng nhu cầu an cư cho khoảng 636 người. Hiện dự án đang trong giai đoạn san lắp mặt bằng và dự kiến ra mắt thị trường trong thời gian tới.

Mặt bằng quy hoạch Khu nhà ở phường Bình Trưng Đông, Quận 2
Ngoài ra, theo kế hoạch năm 2020, Khang Điền cũng đã thông qua việc triển khai dự án Bình Trưng Phú Hữu (tên thương mại: Thành Phố Xanh) có vị trí tại đường Võ Chí Công (P.Phú Hữu,Q.9).
Theo quy hoạch, dự án được thực hiện trên khu đất rộng 4,3 ha, với tổng số 180 căn nhà phố, biệt thự có diện tích từ 101,75 – 265 m2. Hiện dự án cũng đã san lắp mặt bằng, hạ tầng cơ bản và dự kiến ra mắt trong thời gian tới.
-
Khang Điền bổ nhiệm Tổng giám đốc 36 tuổi
CafeLand - Ông Vương Văn Minh sinh năm 1985 được bổ nhiệm vị trí Tổng giám đốc thay cho ông Lê Quang Minh, người vừa từ nhiệm vì lý do cá nhân.
.jpg)


