Khu nghỉ dưỡng Hội Vân có tổng diện tích khoảng 24ha, nằm tại tiểu khu 3 và tiểu khu 4 thuộc đồ án quy hoạch phân khu tỉ lệ 1/2000 Khu du lịch nghỉ dưỡng, chăm sóc sức khỏe và dân cư khu vực suối nước nóng Hội Vân, xã Cát Hiệp.

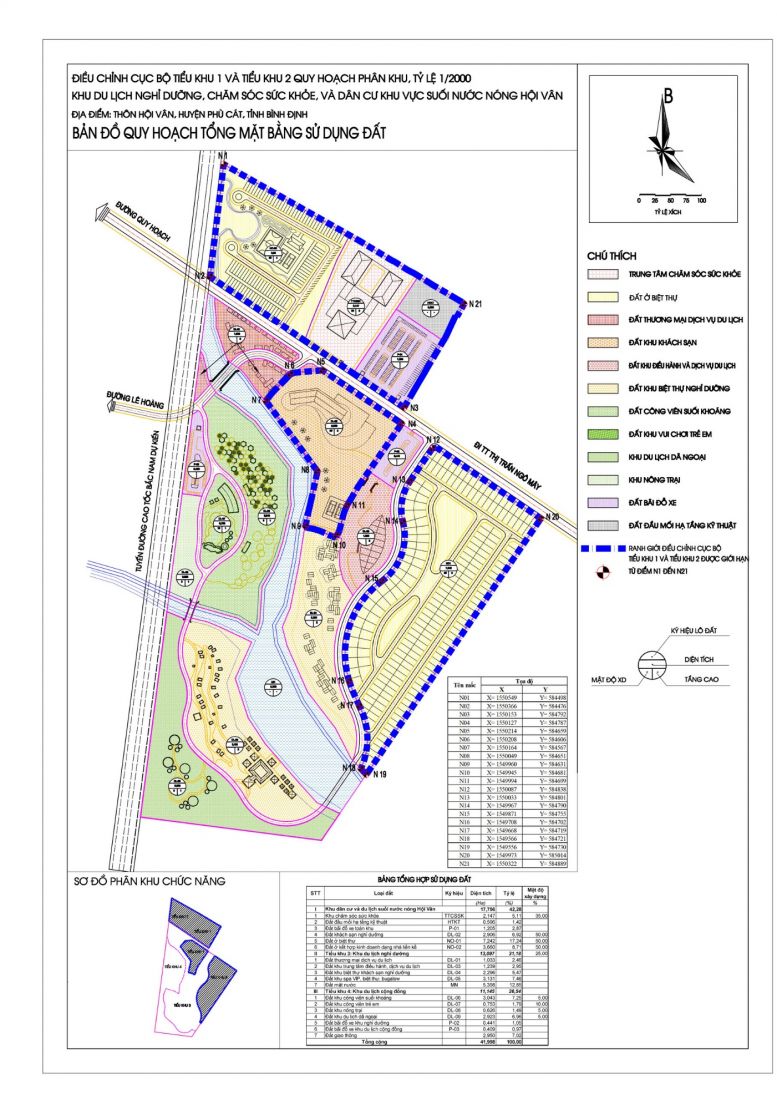
Quy hoạch phân khu tỷ lệ 1/2000 Khu du lịch nghỉ dưỡng, chăm sóc sức khỏe và dân cư khu vực suối nước nóng Hội Vân
Theo quy hoạch, dự án sẽ bao gồm các hạng mục như khu biệt thự nghỉ dưỡng, spa, trung tâm điều hành dịch vụ, công viên suối khoáng, khu du lịch dã ngoại, khu nông trại,…
Dự án Hội Vân được UBND tỉnh Bình Định chấp thuận chủ trương đầu tư từ tháng 2/2020, với tổng vốn đầu tư 629,62 tỉ đồng. Đây là một trong bốn dự án thuộc danh mục bất động sản nghỉ dưỡng của Tập đoàn Trường Thành tại Bình Định.
Trường Thành là ai?
Công ty cổ phần Trường Thành Bình Định được thành lập vào ngày 1/11/2018, có trụ sở tại số 592 đường Tây Sơn, TP.Quy Nhơn, tỉnh Bình Định, do ông Đặng Trung Kiên là người đại diện pháp luật.
Ông Kiên còn được biết đến là Chủ tịch HĐQT và đại diện pháp luật cho các doanh nghiệp: Công ty cổ phần năng lượng và bất động sản Trường Thành, Công ty cổ phần đầu tư Videc – Trường Thành, Công ty cổ phần Tập đoàn Trường Thành Việt Nam, Công ty cổ phần đầu tư Trường Thành Quy Nhơn, Công ty cổ phần dịch vụ và đầu tư bất động sản Việt View và Công ty TNHH UCA Hà Nam.

Ông Đặng Trung Kiên – Chủ tịch HĐQT TTVN Group
Trong đó, Công ty cổ phần Tập đoàn Trường Thành Việt Nam (TTVN Group) là doanh nghiệp chủ chốt đứng đầu hệ thống Trường Thành. Doanh nghiệp được thành lập từ ngày 19/12/2012 với vốn điều lệ 30 tỉ đồng, sau đó chuyển đổi từ mô hình Công ty TNHH MTV sang mô hình công ty cổ phần vào năm 2017.
Doanh nghiệp đa ngành
TTVN Group hoạt động đa ngành nhưng tập trung chủ yếu vào lĩnh vực năng lượng tái tạo, bất động sản và công nghệ cao.
Tại Bình Định, ngoài Khu nghỉ dưỡng Hội Vân, TTVN Group còn là chủ đầu tư của 3 khu nghỉ dưỡng khác thông qua pháp nhân là Công ty cổ phần đầu tư Trường Thành Quy Nhơn với dự án Khu du lịch biển Casa Marina Island quy mô khoảng 41,3ha và Khu du lịch nghỉ dưỡng biển Quốc Tế Bãi Xép quy mô 18,87ha; thông qua doanh nghiệp Công ty cổ phần công nghiệp Trường Thành Việt Nam với dự án Khu biệt thự biển nghỉ dưỡng Bãi Xép có tổng diện tích 2,7ha.

Phối cảnh Khu du lịch biển Casa Marina Island Bình Định
Tại Phú Yên, TTVN Group triển khai đầu tư Khu nghỉ dưỡng biển cao cấp Bãi Bàng thông qua chủ đầu tư Công ty cổ phần đầu tư Trường Thành Phú Yên. Dự án được xây dựng trên tổng diện tích 14,6ha với tổng vốn đầu tư 476 tỉ đồng. Dự án được triển khai từ quý 1/2018 đến quý 4/2019.
Mới đây, vào tháng 7/2020, TTVN Group đã thông qua chủ trương đầu tư dự án Tổ hợp khách sạn 5 sao, khu vui chơi thể thao và dịch vụ tổng hợp Trường Thành tại Hưng Yên do Công ty cổ phần năng lượng và bất động sản Trường Thành làm chủ đầu tư, với tổng vốn đầu tư 300 tỉ đồng.
TTVN Group còn đầu tư xây dựng các dự án bất động sản nhà ở tại một số tỉnh thành trên cả nước như Khu nhà ở nông thôn kết hợp thương mại dịch vụ Nghĩa An quy mô 27,9ha tại Quảng Ngãi, Khu dân cư và du lịch sinh thái Vàm Cỏ Tây quy mô 99ha tại Long An, Khu đô thị mới Xuân An quy mô 92,7ha tại Hà Tĩnh, Căn hộ chung cư Galaxy Tower Nguyễn Xiển tại Hà Nội.
Bên cạnh mảng bất động sản, doanh nghiệp do ông Kiên điều hành còn liên doanh, liên kết với các doanh nghiệp trong và ngoài nước trong mảng năng lượng mặt trời.
Các dự án điện mặt trời (ĐMT) trên đất tập trung chủ yếu tại các tỉnh miền Trung gồm Nhà máy ĐMT Bình Nguyên (Quảng Ngãi) có quy mô 49,61MW do TTVN Group hợp tác đầu tư với Sermsang International của Thái Lan; Nhà máy ĐMT Hòa Hội (Phú Yên) có tổng vốn đầu tư 5.000 tỉ đồng cũng do TTVN Group hợp tác với TTP Phú Yên (thuộc B.Grimm Power của Thái Lan) làm chủ đầu tư; Nhà máy ĐMT Cát Hiệp (Bình Định) được hợp tác đầu tư phát triển bởi TTVN Group, QAIR International (Pháp) và Kumagai Gumi (Nhật),…

Nhà máy ĐMT Bình Nguyên (Quảng Ngãi) được khánh thành vào ngày 4/6/2019
TTVN Group cũng đầu tư các dự án điện gió và điện mặt trời trên mái như ĐMT trên mái Đức Nhân (Bình Dương), cụm dự án ĐMT áp mái tại Đức Hòa (Long An), cụm dự án ĐMT áp mái Depot (Nhà Bè), nhà máy điện gió V1-2 (Trà Vinh).
Trong đó, Nhà máy điện gió V1-2 là dự án thứ 2 do TTVN Group hợp tác với Sermsang International của Thái Lan đầu tư xây dựng với tổng vốn đầu tư 2.232 tỉ đồng.
Ở mảng công nghệ cao, TTVN Group đầu tư vào công nghiệp số với các dự án: ứng dụng tích điểm Sen Point, sàn giao dịch tài sản số Sencoinex, nền tảng cho vay ngang hàng Falo và các ứng dụng khác trong lĩnh vực Fintech.
Tại cuộc họp hồi tháng 5/2020, TTVN Group cho biết sẽ tiếp tục lấn sân sang mảng bán lẻ thông qua bắt tay hợp tác với Central Retail thuộc Tập đoàn Central Group (Thái Lan) để phát triển xây dựng Trung tâm thương mại Go! Mall.
-
Bình Định: 7 dự án dọc tuyến Quy Nhơn – Sông Cầu sai phạm xây dựng
CafeLand – Dự án có nhiều sai phạm nghiêm trọng nhất là khu du lịch nghỉ dưỡng quốc tế Bãi Xếp do Công ty cổ phần đầu tư Trường Thành Quy Nhơn làm chủ đầu tư.
-
Quy hoạch mới khu công nghiệp hơn 124 ha tại Gia Lai
UBND tỉnh Gia Lai vừa phê duyệt Nhiệm vụ Quy hoạch chi tiết tỷ lệ 1/500 Khu công nghiệp Hòa Hội (mở rộng giai đoạn 2).
-
Gia Lai sắp mở bán 378 căn nhà ở xã hội, giá từ 12,1 triệu đồng/m2
Mới đây, Sở Xây dựng tỉnh Gia Lai đã có thông báo về việc cho phép đưa 378 căn hộ tại tòa CT2, Dự án Nhà ở thuộc quy hoạch Khu thiết chế công đoàn tỉnh Bình Định (tên thương mại: IEC Residences Quy Nhơn) vào kinh doanh....
-
“Ông lớn” mảng năng lượng tái tạo mang luồng gió mới cho thị trường bất động sản
Khác những ông lớn chuyên phát triển các dự án bất động sản, TTVN Group từ lâu nổi tiếng với những dự án năng lượng tái tạo như điện gió, điện mặt trời, từng chiếm tới khoảng 8% thị phần tại Việt Nam. Là một doanh nghiệp sản xuất với nhiều dự án điện...
-
Doanh nghiệp nào trúng đấu giá dự án Khu đô thị phía Tây Nam cầu Long Vân tại Gia Lai?
UBND tỉnh Gia Lai vừa công nhận kết quả trúng đấu giá quyền sử dụng đất dự án Khu đô thị phía Tây Nam cầu Long Vân tại phường Quy Nhơn Bắc.
-
Công bố thông tin về dự án nhà ở xã hội hơn 1.251 tỷ đồng tại Gia Lai
UBND tỉnh Gia Lai vừa công bố thông tin dự án nhà ở xã hội Long Vân 1 để lựa chọn nhà đầu tư thực hiện dự án.

.png)

