122 trường hợp chưa được bồi thường
Thanh tra tỉnh Đồng Nai vừa có Kết luận thanh tra số 67/KL-TT về việc chấp hành các quy định pháp luật về xác định giá đất cụ thể đối với dự án Khu dân cư – Dịch vụ Giang Điền (KDC-DV Giang Điền), xã Giang Điền, huyện Trảng Bom.
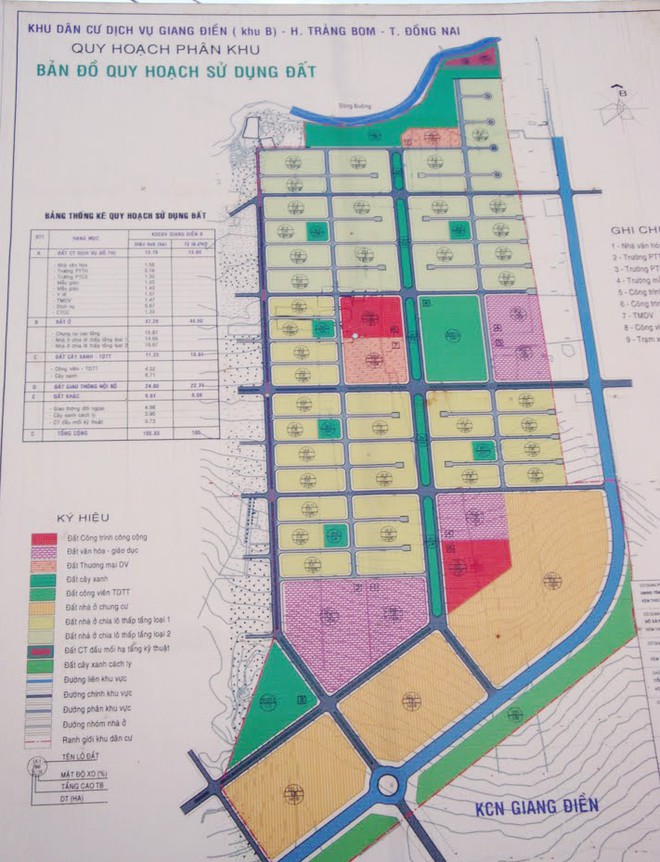
Dự án KDC - DV Giang Điền có tổng diện tích 234ha, được chia làm 2 khu A và B. Khu A có quy mô 94ha do Công ty CP Đầu tư LDG làm chủ đầu tư (Công ty LDG). Công ty này đã giải toả được 87ha; còn 6,6ha không thoả thuận đền bù được với người dân nên đề nghị cơ quan nhà nước làm công tác bồi thường, hỗ trợ để bàn giao mặt bằng.
Đến thời điểm thanh tra, UBND huyện Trảng Bom đã ban hành 18 quyết định phê duyệt phương án bồi thường cho các hộ dân; hội đồng bồi thường của huyện đã chi trả tiền bồi thường cho 2 hộ dân và 3 hộ dân Công ty LDG tiếp tục thoả thuận được. Hiện còn 13 trường hợp với tổng diện tích 4,45ha chưa nhận tiền và chưa bàn giao mặt bằng.

Nhiều tồn tại, thiếu sót trong việc xác định giá đất cụ thể tại dự án KDC – DV Giang Điền
Khu B của dự án có quy mô 104ha do Công ty CP SONASEZI Giang Điền làm chủ đầu tư, với 170 hộ dân và 1 tổ chức bị ảnh hưởng. Thời điểm thanh tra, hội đồng bồi thường huyện Trảng Bom đã chi trả tiền bồi thường cho 62 trường hợp với diện tích 32,8ha, còn lại 109 hộ dân chưa nhận tiền và chưa giao mặt bằng với 71,2ha.
Cả 2 khu A và B thuộc dự án KDC – DV Giang Điền đều thực hiện xác định giá đất cụ thể để làm căn cứ bồi thường cho các hộ dân khi thực hiện dự án. Tuy vậy, qua thanh tra, cơ quan chức năng đã xác định có nhiều tồn tại và thiếu sót.
Theo đó, đối với việc chuẩn bị thẩm định giá đất cụ thể đối với Khu B dự án này, hồ sơ chuẩn bị thực hiện thẩm định giá đất không thể hiện vị trí, diện tích, loại đất và thời hạn sử dụng của thửa đất cần định giá.
Các cá nhân và tổ chức liên quan được giao nhiệm vụ chuẩn bị công tác xác định giá đất cụ thể để bồi thường không cung cấp hồ sơ đầy đủ cho đơn vị tư vấn theo quy định, thiếu kiểm tra, dẫn đến công tác tư vấn giá đất gặp khó khăn.
Thanh tra Đồng Nai nêu rõ, trách nhiệm nói trên thuộc về cán bộ làm công tác bồi thường, lãnh đạo Trung tâm Phát triển quỹ đất huyện Trảng Bom, Văn phòng UBND huyện, Chủ tịch và Phó Chủ tịch UBND huyện phụ trách công tác bồi thường, Chi cục quản lý đất đai, lãnh đạo Sở TN&MT tỉnh.
Trong quá trình thực hiện tư vấn giá đất cụ thể, đơn vị tư vấn là Công ty CP Thẩm định giá và Tư vấn đầu tư xây dựng Thế Hệ Mới (Công ty Thế Hệ Mới) và Trung tâm Kỹ thuật TN&MT Đồng Nai chưa thực hiện đúng quy định của pháp luật, dẫn đến sai phạm và thiếu sót.
“Sở TN&MT là đơn vị thuê tư vấn giá đất tuy nhiên đã thiếu trách nhiệm trong công tác kiểm tra, đôn đốc các đơn vị tư vấn giá đất dẫn đến việc tư vấn giá đất chậm về thời gian và có các sai phạm, thiếu sót nêu trên”, kết luận thanh tra nêu.
Định giá đất trễ gần 11 tháng
Thanh tra Đồng Nai cho hay, việc trình UBND tỉnh phê duyệt giá đất cụ thể để bồi thường khi dự thực hiện đầu tư dự án KDC – DV Giang Điền tại 2 quyết định có thời hạn chậm trễ từ 17 – 23 ngày làm việc. Qua kiểm tra hồ sơ, việc quyết định giá đất cụ thể của UBND tỉnh Đồng Nai tại dự án này cũng được Thanh tra tỉnh xác định bị chậm trễ từ 15 – 30 ngày làm việc.
Đối với khu A và B dự án KDC – DV Giang Điền, từ khi tổ chức thực hiện định giá đất, thẩm định phương án giá đất, hoàn thiện dự thảo phương án giá đất, quyết định giá đất có thời gian chậm trễ từ 56 – 242 ngày làm việc (gần 11 tháng).
Như vậy, công tác thực hiện định giá đất kéo dài, giá đất có nhiều biến động dẫn đến kết quả xác định giá đất cụ thể khi hoàn thành không còn phù hợp với thực tế, dẫn đến việc tư vấn giá đất và trình phương án giá đất cụ thể phải làm lại nhiều lần.
“Trách nhiệm dẫn đến tồn tại và thiết sót nêu trên thuộc về Công ty Thế Hệ Mới, Trung tâm Kỹ thuật TN&MT Đồng Nai, UBND huyện Trảng Bom, Sở TN&MT, Sở Tài chính và Văn phòng UBND tỉnh”, Thanh tra tỉnh kết luận.
Từ những nội dung này, Thanh tra Đồng Nai kiến nghị Chủ tịch UBND tỉnh làm rõ nguyên nhân, xác định trách nhiệm đối với từng tổ chức, cá nhân của các sở, ban, ngành thuộc thẩm quyền của mình liên quan đến các tồn tại, thiếu sót được nêu trong kết luận.
-
Đồng Nai: Hơn 6.600 tỉ đồng xây đường liên kết vùng
CafeLand - Chiều dài toàn tuyến đường này là 45km, chiều rộng mặt đường là 40m. Trong đó, đoạn từ đường Vành đai 3 đến quốc lộ 51 có chiều dài 13 km tổng vốn đầu tư hơn 6.600 tỉ đồng.

.png)

