-
Cụm công nghiệp Văn Tố Hải Phòng
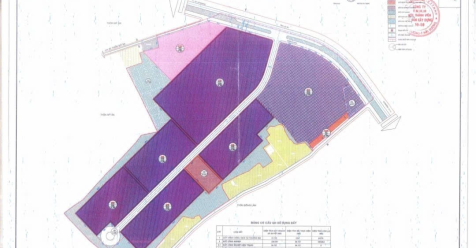
03/02/2026 9:41 AMCụm công nghiệp Văn Tố tọa lạc tại xã Chí Minh, TP.Hải Phòng (xã Văn Tố, huyện Tứ Kỳ, tỉnh Hải Dương cũ). Dự án có tổng diện tích hơn 35ha, trong đó, diện tích đất thực hiện dự án là hơn 27ha, gồm đất công nghiệp; đất hành chính, dịch vụ thương mại; đất hạ tầng kỹ thuật; đất cây xanh; đất giao thông…
.png)