Click vào để biết vị trí, tiện ích, quy hoạch... của dự án
Ranh giới và kết nối liên vùng của CCN Văn Tố Hải Phòng
Khu vực nghiên cứu dự án thuộc địa bàn xã Chí Minh, TP.Hải Phòng (xã Văn Tố, huyện Tứ Kỳ, tỉnh Hải Dương cũ).
Kết nối vùng:
- Cách trung tâm Hải Phòng khoảng 51km
- Cách trung tâm Hà Nội khoảng 75km
- Cách sân bay quốc tế Nội Bài khoảng 90km
- Cách sân bay Cát Bi khoảng 55km
- Cách cảng biển Hải Phòng khoảng 60km
Quy mô dự án CCN Văn Tố Hải Phòng

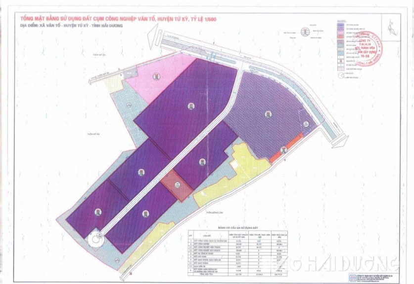
Mặt bằng sử dụng đất CCN Văn Tố
|
Tổng diện tích |
351.780m2 |
|
Ngành nghề thu hút |
- Chế biến nông sản, thực phẩm - Các ngành công nghiệp hỗ trợ, các ngành nghề truyền thống của địa phương - Những ngành nghề có công nghệ cao, tiên tiến, không gây ô nhiễm môi trường... |
Quy mô CCN Văn Tố
Hệ thống cơ sở hạ tầng CCN Văn Tố Hải Phòng
Hệ thống cấp điện
Nguồn điện cấp từ lưới trung áp (10-22 kV) được đấu nối trực tiếp vào cụm. Tại cụm có trạm biến áp chuyên dụng để cung cấp đủ điện cho các doanh nghiệp - thường theo từng dự án cụ thể.
Hệ thống cấp nước
Công suất cấp nước khoảng 3.000 m3/ngày.đêm.
Hệ thống xử lý nước thải
Trạm xử lý nước thải có công suất khoảng 1.000 m3/ngày.đêm
Hệ thống viễn thông
Được trang bị hệ thống viễn thông thụ động với tối thiểu 33 đường dây thuê bao, đảm bảo kết nối điện thoại, dữ liệu.
Pháp lý CCN Văn Tố Hải Phòng
Dự án được thành lập theo Quyết định số 1670/QĐ-UBND ngày 30/6/2015 của UBND tỉnh Hải Dương.
Ngày 24/1/2026, UBND tỉnh đã ban hành quyết định về việc điều chỉnh Quyết định thành lập cụm công nghiệp Văn Tố (Tứ Kỳ).
Tiến độ CCN Văn Tố Hải Phòng
Cập nhật tháng 10/2025, dự án đang triển khai bồi thường, giải phóng mặt bằng thực hiện dự án.
Giá thuê dự kiến CCN Văn Tố Hải Phòng
- Giá thuê cơ sở hạ tầng: 90 USD/m2 (chưa bao gồm VAT).
- Giá nước sạch: Theo quy định của nhà cung cấp
- Giá điện: Theo quy định của nhà cung cấp
- Đơn giá xử lý nước thải và rác thải: Theo quy định của nhà cung cấp
- Cước viễn thông: Theo quy định của nhà cung cấp
- Phí quản lý, bảo dưỡng hạ tầng: 0,5 USD/m2/năm (chưa bao gồm VAT)
Lưu ý: Các mức phí trên chỉ mang tính tham khảo và có thể thay đổi theo chính sách của chủ đầu tư và thời điểm cụ thể.
Thông tin chủ đầu tư dự án CCN Văn Tố Hải Phòng
Chủ đầu tư dự án là Công ty TNHH MTV Tuấn Kiệt – TK hoạt động từ năm 2016, địa chỉ trụ sở là thôn Mỹ Ân, xã Chí Minh, TP.Hải Phòng. Người đại diện pháp luật là ông Nguyễn Công Băng. Doanh nghiệp hoạt động chính trong lĩnh vực bán buôn vật liệu, thiết bị lắp đặt khác trong xây dựng.
Thông tin nhanh dự án CCN Văn Tố Hải Phòng
|
Dự án: CCN Văn Tố |
Ngày khởi công: |
|
Vị trí: Xã Chí Minh, TP.Hải Phòng |
Thời hạn vận hành: |
|
Tổng diện tích: 351.780m2 |
Tổng vốn đầu tư: 343,362 tỷ đồng |
|
Chủ đầu tư: Công ty TNHH MTV Tuấn Kiệt – TK |
Tỷ lệ lấp đầy: |
Đăng ký kênh Youtube CafeLand để theo dõi các video bất động sản mới nhất!
- Mua bán cho thuê dự án
- Tin rao bán Khu công nghiệp Cụm công nghiệp Văn Tố
- Tin rao cho thuê Khu công nghiệp Cụm công nghiệp Văn Tố
trên toàn quốc và một số ngân hàng
để hỗ trợ bạn tìm một ngôi nhà phù hợp.
| Thông Tin chi tiết Dự Án | ||||||||||||||||||||||||||||||||
|
|
|||||||||||||||||||||||||||||||
-
Tiềm lực tài chính, uy tín và thương hiệu chủ đầu tư5
-
Vị trí thuận tiện, tiềm năng phát triển trong tương lai.5
-
Tiện ích dự án, thiết kế5
-
Pháp lý dự án đầy đủ, minh bạch, đáng tin cậy5
-
Mức giá bán hợp lý5
-
Tiềm năng tăng giá tương lai5
Giá dự án cùng khu vực
Dự án xung quanh
