Click vào để biết vị trí, tiện ích, quy hoạch... của dự án
Dự án An Bình có phía Đông giáp Rạch Cái Sơn, phía Tây giáp Rạch Rau Râm, phía Nam giáp sông Cần Thơ và phía Bắc giáp khu dân cư hiện hữu.
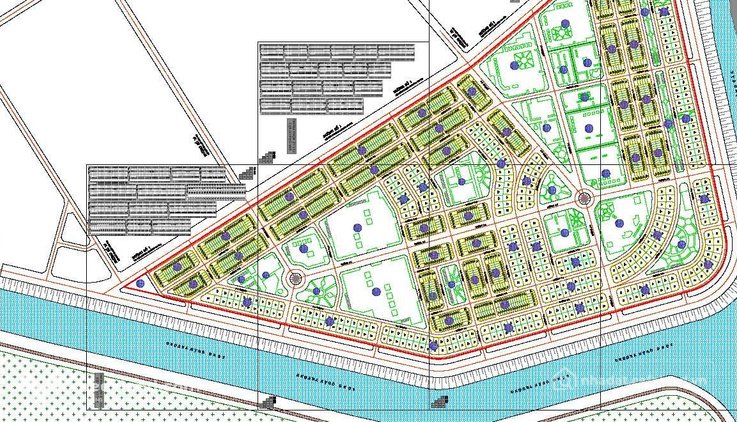
Quy mô dự án khu đô thị An Bình
Dự án khu đô thị An Bình được triển khai trên quỹ đất có tổng diện tích khoảng 178.190,75m2 trong đó, công trình giao thông, vỉa hè 43.035m2; công trình đa chức năng 10.537m2, mật độ xây dựng 34,6%.
Dự kiến dự án khu đô thị An Bình cung cấp ra thị trường khoảng 700 lô đất nền với diện tích đa dạng 5x20m, 5x26m và 5x28m, với thiết kế 1 trệt + 2 lầu.
Khu đô thị An Bình sở hữu những tiện ích nội khu gồm: công viên cây xanh, khuôn viên dạo bộ, trung tâm thương mại, nhà hàng, khu vui chơi dành cho trẻ em, khu vực tập thể dục, khu vực tập gym – yoga, hệ thống an ninh,…
Từ khu đô thị An Bình cư dân có thể dễ dàng di chuyển sang các khu vực lân cận, chẳng hạn: đến Trường Đại học FPT Cần Thơ 1,1km; cách Trường Tiểu học An Bình 1 3,2km; đến Bệnh viện Nhi Đồng Cần Thơ 1,2km; cách chợ An Bình 3,3k; đến Tòa an Nhân Dân thành phố Cần Thơ 1,9km; cách UBND phường Bình An 3,7km; di chuyển đến chợ nổi Cái Răng 6,2km,…
Thông tin chung dự án khu đô thị An Bình
Khu đô thị An Bình được đầu tư bởi Công ty Cổ phần Đầu tư Xây dựng Hồng Phát, được thành lập vào ngày 14.08.2002, đặt trụ sở tại: 212A, đường 3/2, phường Hưng Lợi, quận Ninh Kiều, thành phố Cần Thơ, do Võ Ngọc Diệp và Nguyễn Minh Hải là người đại diện pháp luật của doanh nghiệp.
Ngày 28.10.2019, UBND thành phố Cần Thờ ra quyết định số 2582/QĐ-UBND về việc chấp thuận chủ trương đầu tư dự án khu đô thị An Bình cho Công ty Cổ phần Đầu tư Xây dựng Hồng Phát.
Giá đất nền, nhà phố tại dự án khu đô thị An Bình được tham khảo trên thị trường dao động ở mức 32 triệu/m2. Dự án được triển khai vào quý VI.2020 và đang trong giai đoạn hoàn thiện cơ sở hạ tầng.
Thông tin nhanh dự án khu đô thị An Bình
Dự án: Khu đô thị An Bình | Tổng diện tích: 178.190,75m2 |
Vị trí: đường Nguyễn Văn Cừ, phường An Bình, quận Ninh Kiều, thành phố Cần Thơ | Tổng vốn đầu tư: 225 tỷ đồng |
Loại hình: Đất nền | Năm khởi công: Quý VI.2020 |
Đơn vị đầu tư: Công ty Cổ phần Đầu tư Xây dựng Hồng Phát | Năm hoàn thành: |
Hòa Bình

- Mua bán cho thuê dự án
- Tin rao bán Khu Đô Thị Khu đô thị An Bình
- Tin rao cho thuê Khu Đô Thị Khu đô thị An Bình








trên toàn quốc và một số ngân hàng
để hỗ trợ bạn tìm một ngôi nhà phù hợp.
Thông Tin chi tiết Dự Án | ||||||||||||||||||||||||||||||||
|
|
- Tiềm lực tài chính, uy tín và thương hiệu chủ đầu tư4
- Vị trí thuận tiện, tiềm năng phát triển trong tương lai.4
- Tiện ích dự án, thiết kế4
- Pháp lý dự án đầy đủ, minh bạch, đáng tin cậy3
- Mức giá bán hợp lý4
- Tiềm năng tăng giá tương lai4