Click vào để biết vị trí, tiện ích, quy hoạch... của dự án
Quy mô dự án FUTA Kim Phát Đà Nẵng

Phối cảnh dự án FUTA Kim Phát
|
Tổng diện tích |
28.713m2 |
|
Số lượng sản phẩm |
171 căn |
Quy mô dự án FUTA Kim Phát

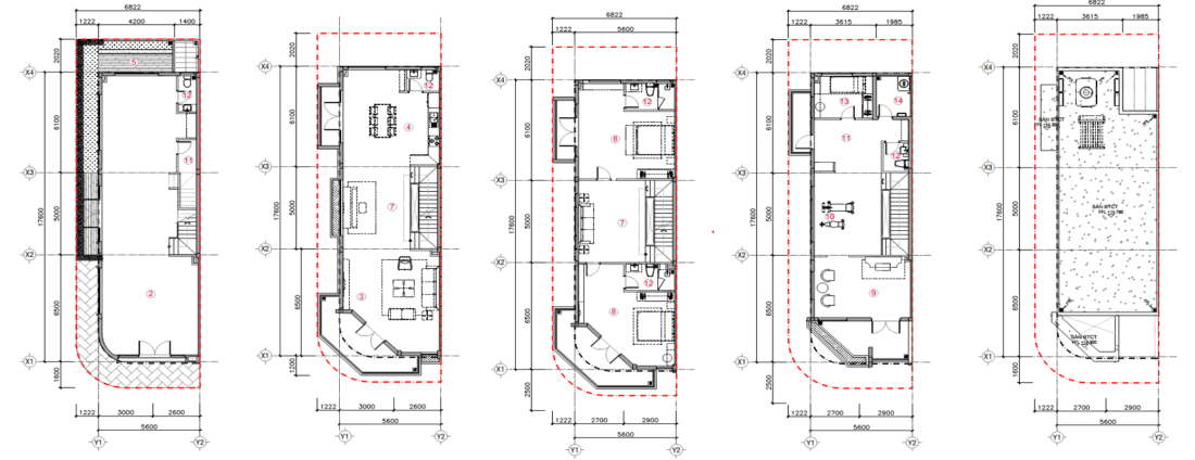
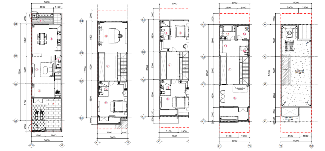
Mặt bằng dự án FUTA Kim Phát
Sản phẩm dự án FUTA Kim Phát Đà Nẵng
Shophouse
Diện tích: 82-247,28m2


Thiết kế shophouse
Townhouse
Diện tích: 92,5-186,19m2


Thiết kế townhouse
Tiện ích dự án FUTA Kim Phát Đà Nẵng
- Hệ công viên cây xanh
- Đường dạo bộ
- Khu vui chơi…

Phối cảnh tiện ích tại dự án
Pháp lý dự án FUTA Kim Phát Đà Nẵng
FUTA Kim Phát có tên pháp lý là Khu phức hợp đô thị, thương mại cao tầng Phương Trang – Khu C5B.
Ngày 23/3/2011, UBND TP. Đà Nẵng ban hành Quyết định số 2290/QĐ-UBND về việc phê duyệt quy hoạch chi tiết tỷ lệ 1/500 Khu phức hợp đô thị thương mại cao tầng Phương Trang.
Ngày 26/6/2020, UBND TP.Đà Nẵng ban hành Quyết định số 4147/QĐ-UBND về việc hấp thuận chủ trương đầu tư dự án Khu phức hợp đô thị, thương mại cao tầng Phương Trang - Khu C5b, khu E, khu F.
Ngày 28/6/2021, UBND quận Liên Chiểu ban hành Quyết định số 0244/QĐ-UBND về việc phê duyệt bổ sung quy hoạch chi tiết TL 1/500 hạng mục hạ tầng kỹ thuật dự án Khu phức hợp đô thị thương mại cao tầng Phương Trang - Khu C5b.
Tiến độ dự án FUTA Kim Phát Đà Nẵng
Cập nhật tháng 4/2026, dự án đang thi công ép cọc đại trà.
Giá bán tham khảo: 80-100 triệu đồng/m2


Tiến độ dự án cập nhật tháng 4/2026
Thông tin chủ đầu tư dự án FUTA Kim Phát Đà Nẵng
Chủ đầu tư dự án là Công ty Cổ phần Đầu tư Phương Trang hoạt động từ năm 2003, địa chỉ trụ sở là 486-486A Lê Văn Lương, phường Tân Hưng, TP.HCM. Người đại diện pháp luật là ông Nguyễn Hữu Luận. Doanh nghiệp hoạt động chính trong lĩnh vực kinh doanh bất động sản, quyền sử dụng đất thuộc chủ sở hữu, chủ sử dụng hoặc đi thuê.
Thông tin nhanh dự án FUTA Kim Phát Đà Nẵng
|
Dự án: FUTA Kim Phát |
Tổng diện tích: 28.713m2 |
|
Vị trí: Phường Hòa Khánh, TP.Đà Nẵng |
Tổng vốn đầu tư: |
|
Loại hình: Nhà phố, shophouse |
Năm khởi công: |
|
Chủ đầu tư: Công ty Cổ phần Đầu tư Phương Trang |
Năm hoàn thành: |
Đăng ký kênh Youtube CafeLand để theo dõi các video bất động sản mới nhất!
- Mua bán cho thuê dự án
- Tin rao bán Nhà Phố - Biệt Thự FUTA Kim Phát
- Tin rao cho thuê Nhà Phố - Biệt Thự FUTA Kim Phát
trên toàn quốc và một số ngân hàng
để hỗ trợ bạn tìm một ngôi nhà phù hợp.
| Thông Tin chi tiết Dự Án | |||||||||||||||||||||||||||||||||||||||||
|
|
||||||||||||||||||||||||||||||||||||||||
-
Tiềm lực tài chính, uy tín và thương hiệu chủ đầu tư5
-
Vị trí thuận tiện, tiềm năng phát triển trong tương lai.5
-
Tiện ích dự án, thiết kế5
-
Pháp lý dự án đầy đủ, minh bạch, đáng tin cậy5
-
Mức giá bán hợp lý5
-
Tiềm năng tăng giá tương lai5
Giá dự án cùng khu vực
Dự án xung quanh
