Chia sẻ thông tin dự án tại đây
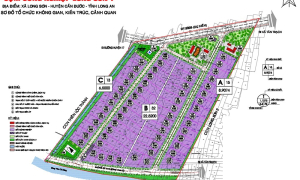
Tiến Độ Ccn Long Sơn 1 - Dự án bất động sản, Các bài viết về tiến độ CCN Long Sơn 1 - Tin nhanh bất động sản, nhà đất, mua bán nhà đất CafeLand