Click vào để biết vị trí, tiện ích, quy hoạch... của dự án
Quy mô dự án Thiện Kế Xanh Phú Thọ

Phối cảnh dự án Thiện Kế Xanh
| Tổng diện tích | 10,95ha |
| Số lượng sản phẩm | 507 căn hộ 306 nhà ở xã hội thấp tầng 99 shophouse |
Quy mô dự án Thiện Kế Xanh

Mặt bằng dự án Thiện Kế Xanh
Sản phẩm dự án Thiện Kế Xanh Phú Thọ
Căn hộ
Số lượng: 507 căn
Diện tích: 42-69m2
Loại hình: 1-2 phòng ngủ

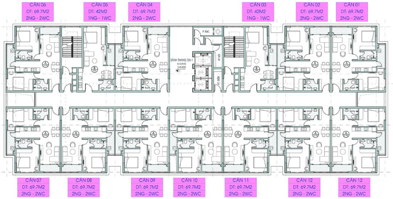
Mặt bằng căn hộ điển hình tại dự án
Nhà liền kề
Số lượng: 306 căn
Diện tích: 70m2
Quy mô xây dựng: 2,5 tầng

Phối cảnh nhà liền kề
Shophouse
Số lượng: 99 căn
Diện tích: 100-141m2
Quy mô xây dựng: 5 tầng

Phối cảnh shophouse
Tiện ích dự án Thiện Kế Xanh Phú Thọ
- Trường học liên cấp
- Trạm y tế
- Nhà văn hóa
- Công viên cây xanh
- Sân thể thao
- Bãi đỗ xe thông minh


Phối cảnh tiện ích tại dự án
Pháp lý dự án Thiện Kế Xanh Phú Thọ
Dự án Thiện Kế Xanh có tên pháp lý là dự án khu nhà ở xã hội tại thôn Rừng Cuông.
Ngày 28/10/2019, UBND tỉnh Vĩnh Phúc ban hành Quyết định số 2699/QĐ-UBND về việc phê duyệt Quy hoạch chi tiết tỷ lệ 1/500.
Dự án được phê duyệt chủ trương đầu tư tại Quyết định số 1221/QĐ-UBND ngày 28/5/2020.
Tiến độ dự án Thiện Kế Xanh Phú Thọ
Dự án khởi công ngày 19/5/2025.
Cập nhật tháng 10/2025, dự án đang triển khai phần móng và phần cọc.
Giá bán tham khảo: 15-18 triệu đồng/m2
Tiến độ dự án cập nhật tháng 10/2025
Thông tin chủ đầu tư dự án Thiện Kế Xanh Phú Thọ
Chủ đầu tư dự án Thiện Kế Xanh là Công ty Cổ phần Kehin thành lập ngày 4/1/2005, địa chỉ trụ sở là toà nhà Kết Hiền, đường Mê Linh, phường Vĩnh Phúc, tỉnh Phú Thọ. Người đại diện pháp luật là ông Nguyễn Văn Kết.
Doanh nghiệp hoạt động chính trong lĩnh vực bán buôn vật liệu, thiết bị lắp đặt khác trong xây dựng.
Thông tin nhanh dự án Thiện Kế Xanh Phú Thọ
| Dự án: Thiện Kế Xanh | Tổng diện tích: 10,95ha |
| Vị trí: Thôn Rừng Cuông, xã Bình Xuyên, tỉnh Phú Thọ | Tổng vốn đầu tư: 1.658 tỷ đồng |
| Loại hình: Nhà ở xã hội | Năm khởi công: 19/5/2025 |
| Chủ đầu tư: Công ty Cổ phần Kehin | Năm hoàn thành: |
Đăng ký kênh Youtube CafeLand để theo dõi các video bất động sản mới nhất! - Mua bán cho thuê dự án
- Tin rao bán Căn hộ chung cư Thiện Kế Xanh
- Tin rao cho thuê Căn hộ chung cư Thiện Kế Xanh
trên toàn quốc và một số ngân hàng
để hỗ trợ bạn tìm một ngôi nhà phù hợp.
| Thông Tin chi tiết Dự Án | ||||||||||||||||||||||||||||||||||||||||||||||||
|
| |||||||||||||||||||||||||||||||||||||||||||||||
- Tiềm lực tài chính, uy tín và thương hiệu chủ đầu tư3.5
- Vị trí thuận tiện, tiềm năng phát triển trong tương lai.3.5
- Tiện ích dự án, thiết kế4
- Pháp lý dự án đầy đủ, minh bạch, đáng tin cậy4.5
- Mức giá bán hợp lý3.5
- Tiềm năng tăng giá tương lai4
Giá dự án cùng khu vực
Dự án xung quanh
