Click vào để biết vị trí, tiện ích, quy hoạch... của dự án
Quy mô dự án The Pearl - Waterpoint Tây Ninh

Phối cảnh phân khu The Pearl
|
Tổng diện tích |
24,3ha |
|
Diện tích mặt nước |
3ha |
|
Mật độ xây dựng |
17% |
Quy mô phân khu The Pearl

Vị trí phân khu The Pearl trong khu đô thị Waterpoint

Mặt bằng phân khu The Pearl
Sản phẩm dự án The Pearl - Waterpoint Tây Ninh
Garden Villa
Diện tích: 256-373m2
Diện tích sàn sử dụng: 234-276m2
Số phòng ngủ: 3-4 phòng


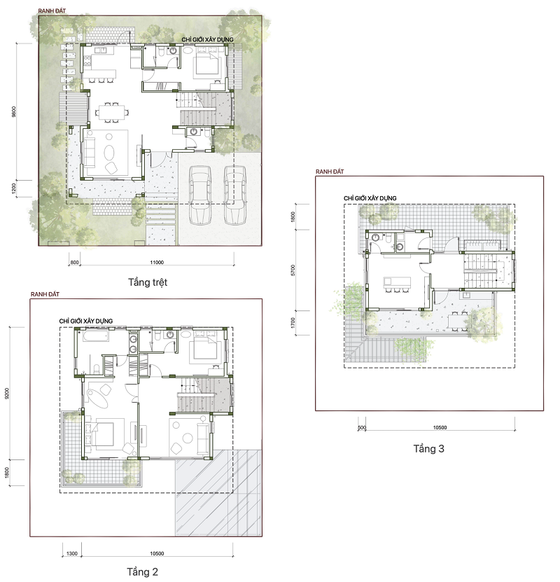
Thiết kế căn Garden Villa
Canal Villa
Diện tích: 398-573m2
Diện tích sàn sử dụng: 370-437m2
Số phòng ngủ: 4-5 phòng


Thiết kế căn Canal Villa
Tiện ích dự án The Pearl - Waterpoint Tây Ninh
- Hồ bơi tràn bờ
- Sunset Clubhouse
- Khu vui chơi trẻ em
- Khu BBQ bên sông
- Lounge Bar
- Khu picnic ngoài trời…


Phối cảnh tiện ích tại dự án
Pháp lý dự án The Pearl - Waterpoint Tây Ninh
The Pearl là phân khu thuộc dự án Waterpoint, tên pháp lý là tiểu khu B2 thuộc phân khu B, khu đô thị mới Vàm Cỏ Đông Southgate.
Ngày 26/6/2020, UBND huyện Bến Lức ban hành Quyết định số 3802/QĐ-UBND về việc phê duyệt đồ án quy hoạch chi tiết tỷ lệ 1/500 tiểu khu B2 thuộc phân khu B – khu đô thị Vàm Cỏ Đông, phê đuyệt điều chỉnh tại Quyết định số 12324/QĐ-UBND ngày 20/10/2022.
Ngày 10/1/2024, UBND tỉnh Long An ban hành Quyết định số 308/QĐ-UBND về việc quyết định chấp thuận điều chỉnh chủ trương đầu tư dự án.
Tiến độ dự án The Pearl - Waterpoint Tây Ninh
Cập nhật tháng 8/2025, những căn biệt thự đầu tiên đã hình thành.
Giá bán tham khảo: từ 13,5-71,3 tỷ đồng/căn


Tiến độ dự án cập nhật tháng 8/2025
Thông tin chủ đầu tư dự án The Pearl - Waterpoint Tây Ninh
Chủ đầu tư dự án The Pearl là Công ty Cổ phần Đầu tư Nam Long hợp tác cùng Nishi Nippon Railroad.
Nam Long Group thành lập từ năm 1992, trụ sở là số 6 đường Nguyễn Khắc Viện, phường Tân Thuận Đông, TP.HCM. Doanh nghiệp hoạt động chính trong lĩnh vực đầu tư bất động sản, phát triển quỹ đất, nhà ở, khu thương mại... Một số dự án nổi bật: Waterpoint, Izumi City, Akari City...
Nishi Nippon Railroad có trụ sở chính tại Fukuoka, chuyên về lĩnh vực xe buýt địa phương, đường cao tốc, siêu thị, đại lý bất động sản, du lịch, đường sắt.
Thông tin nhanh dự án The Pearl - Waterpoint Tây Ninh
|
Dự án: The Pearl |
Tổng diện tích: 24,3ha |
|
Vị trí: Khu đô thị Waterpoint, xã Bến Lức, tỉnh Tây Ninh |
Tổng vốn đầu tư: |
|
Loại hình: Villa |
Năm khởi công: |
|
Chủ đầu tư: Công ty Cổ phần Đầu tư Nam Long hợp tác cùng Nishi Nippon Railroad |
Năm hoàn thành: |
Đăng ký kênh Youtube CafeLand để theo dõi các video bất động sản mới nhất!
- Mua bán cho thuê dự án
- Tin rao bán Nhà Phố - Biệt Thự The Pearl
- Tin rao cho thuê Nhà Phố - Biệt Thự The Pearl
-
Dự án khu đô thị Waterpoint Long An tọa lạc ngay mặt tiền Tỉnh lộ 824, thuộc xã An Thạnh, huyện Bến Lức, tỉnh Long An. Tỉnh lộ 824 kéo dài từ thị trấn Đức Hoà, Long An đến cao tốc TP.HCM – Trung Lương và Quốc lộ 1, nên từ vị trí dự án, cư dân...
-
The Aqua: Phân khu biệt thự tại Waterpoint
The Aqua là một phân khu thuộc dự án Waterpoint, dự án có vị trí nằm tại đường ĐT 824, xã An Thạnh, huyện Bến Lức, tỉnh Long An. Dự án The Aqua nằm trên tuyến đường trọng điểm, thuận tiện di chuyển đến, Quốc lộ 1, cao tốc Sài Gòn – Trung Lương và huy...
-
Park Village: Phân khu biệt thự tại Khu đô thị Waterpoint
Park Village là phân khu tại dự án Khu đô thị Waterpoint, tọa lạc tại xã An Thạnh, huyện Bến Lức, tỉnh Long An. Dự án liền kề vòng xoay An Thạnh và đường DT 824, cách cao tốc Hồ Chí Minh – Trung Lương chỉ khoảng 1 km. ...
-
Dự án Khu đô thị Waterpoint Long An
Khu đô thị Waterpoint Long An có vị trí tại mặt tiền Tỉnh lộ 824, thuộc xã An Thạnh, huyện Bến Lức, tỉnh Long An. Tỉnh lộ 824 kéo dài từ thị trấn Đức Hoà, Long An đến cao tốc TP.HCM – Trung Lương và Quốc lộ 1, nên từ vị trí dự án, cư dân có thể kết n...
-
Solaria Rise: Phân khu căn hộ thuộc Khu đô thị Water Point
Solaria Rise là phân khu căn hộ cao tầng tọa lạc tại Khu đô thị Water Point, tỉnh lộ 824, xã Bến Lức, tỉnh Tây Ninh (trước thuộc xã An Thạnh, huyện Bến Lức, tỉnh Long An). Dự án kết nối trực tiếp với cao tốc TP.HCM – Trung Lương giúp cư dân thuận tiệ...
trên toàn quốc và một số ngân hàng
để hỗ trợ bạn tìm một ngôi nhà phù hợp.
| Thông Tin chi tiết Dự Án | ||||||||||||||||||||||||||||||||||||
|
|
|||||||||||||||||||||||||||||||||||
-
Tiềm lực tài chính, uy tín và thương hiệu chủ đầu tư4.5
-
Vị trí thuận tiện, tiềm năng phát triển trong tương lai.3.5
-
Tiện ích dự án, thiết kế4
-
Pháp lý dự án đầy đủ, minh bạch, đáng tin cậy3.5
-
Mức giá bán hợp lý4
-
Tiềm năng tăng giá tương lai4.5
Giá dự án cùng khu vực
Dự án xung quanh





